Gordon Road, Haywards Heath, RH16
By Mansell McTaggart
£ 400,000
Reviews
3 out of 5 stars
Mansell McTaggart says ..
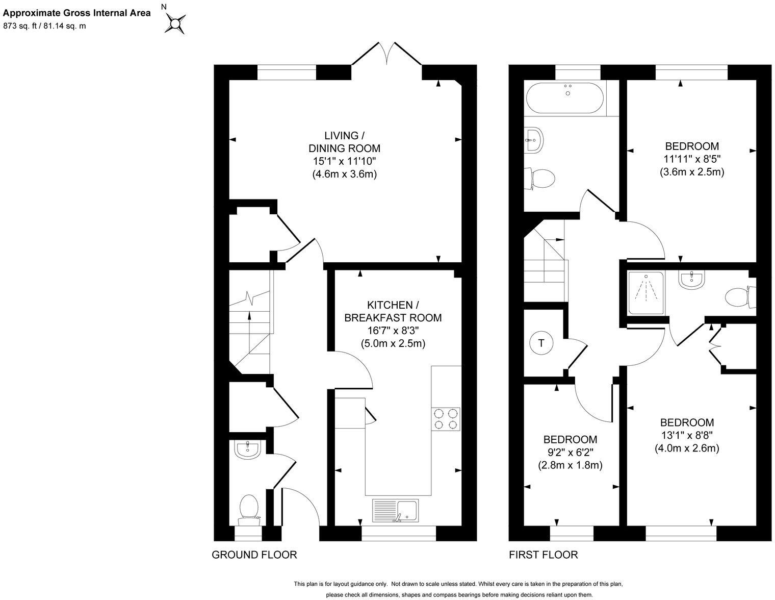
GUIDE PRICE … £400,000-£425,000 … FREEHOLD PLEASE WATCH THE VIDEO BEFORE BOOKING AN APPOINTMENT A 3 bedroom terraced house with a 37‘ x 16‘ rear garden and 2 allocated parking spaces directly behind situated in one of the quieter roads near the railway station. On sale with no onward chain.
Property Oracle says ..
This is a three-bedroom terraced house on Gordon Road, Haywards Heath. The property benefits from its proximity to Haywards Heath station and local schools, making it suitable for commuters and families. The house appears to be in good condition, with a modern kitchen and bathrooms, and a well-maintained garden. The price per square foot is slightly above the local average, but the overall asking price seems reasonable given the property’s location and condition. The property offers a blend of modern living with convenient access to amenities and transport links.
Therefore, we give this property 6 / 10. *Disclaimer: This is our option and does constitute a recommendation or financial advice. Do your own research. *
- Price
- 7
- Condition
- 7
- Location
- 7
- Land
- 6
- Bedrooms
- 3
- Bathrooms
- 2
- Sqft (est)
- 586.00
The heatmap indicates the level of crime in the area. The color of the heatmap indicates the crime severity and recency.
Metrics Year-on-Year
- Average area value
- 890,625.00 £Increased by 35.96 %
- Est sale value
- 334,020.00 £Increased by 58.77 %
- Average area rental value
- 1,412.00 £/moDecreased by 13.11 %
- Est letting value
- 0.00 £/mo
- Est rental Yield
- 1.90 %Decreased by 36.24 %
- Crime Rate
- 3.00 %Unchanged by 0.00 %
Agent Activity
Mansell McTaggart created the listing.
Nearby Schools
| Name | Type | Ofsted | Distance |
|---|---|---|---|
| My Choice School - Oak House | Other Independent Special School | Requires improvement | 0.58 KM |
| Oathall Community College | Community School | Good | 0.68 KM |
| Warden Park Primary Academy | Academy Sponsor Led | Good | 0.94 KM |
| Central Education Ltd | Other Independent Special School | Requires improvement | 0.98 KM |
| St Joseph'S Catholic Primary School | Academy Converter | 1.18 KM |
Images
Nearby Streets
| Name | Average Price | Average Sqft | Distance |
|---|---|---|---|
| French Gardens | £ 0 | 0 | 0.00 KM |
| Perrymount Road | £ 0 | 0 | 0.00 KM |
| Alder Way | £ 1,250,000 | 0 | 0.00 KM |
| Church Road | £ 0 | 0 | 0.00 KM |
| Foxes Mews | £ 0 | 0 | 0.00 KM |
Nearby Transport
| Name | NLC | TLC | Distance |
|---|---|---|---|
| Haywards Heath | 5490 | HHE | 0.81 KM |
| Wivelsfield | 5341 | WVF | 5.48 KM |
| Balcombe | 5492 | BAB | 6.80 KM |
| Burgess Hill | 5483 | BUG | 6.87 KM |
| Plumpton | 5332 | PMP | 9.79 KM |
Nearby Listings
| Address | Price | Type | Score | Distance |
|---|---|---|---|---|
| Gordon Road, Haywards Heath, RH16 | £ 400,000 | BUY | 6 / 10 | 0.00 KM |
| Gordon Road, Haywards Heath, RH16 | £ 425,000 | BUY | 6 / 10 | 0.01 KM |
| Gordon Road, Princess Court Gordon Road, RH16 | £ 250,000 | BUY | Unknown | 0.06 KM |
| Gordon Road, Haywards Heath, West Sussex, RH16 | £ 600,000 | BUY | 7 / 10 | 0.07 KM |
| Gordon Road, Haywards Heath, West Sussex | £ 132,500 | BUY | Unknown | 0.08 KM |
Nearby Properties
| Address | Price | Distance |
|---|---|---|
| 60 Queens Road | £ 228,000 | 0.14 KM |
| 40 Queens Road | £ 630,000 | 0.14 KM |
| 64 Queens Road | £ 320,000 | 0.14 KM |
| 52 Queens Road | £ 280,000 | 0.14 KM |
| 80 Queens Road | £ 380,000 | 0.14 KM |