Oakroyd, Broad Street, Cuckfield, West Sussex, RH17
By Harman Group
£ 675,000
Reviews
3 out of 5 stars
Harman Group says ..
Price Guide £675,000 to £700,000. A home full of warmth, character, and style — perfectly designed for modern family life in the heart of Cuckfield.
Property Oracle says ..
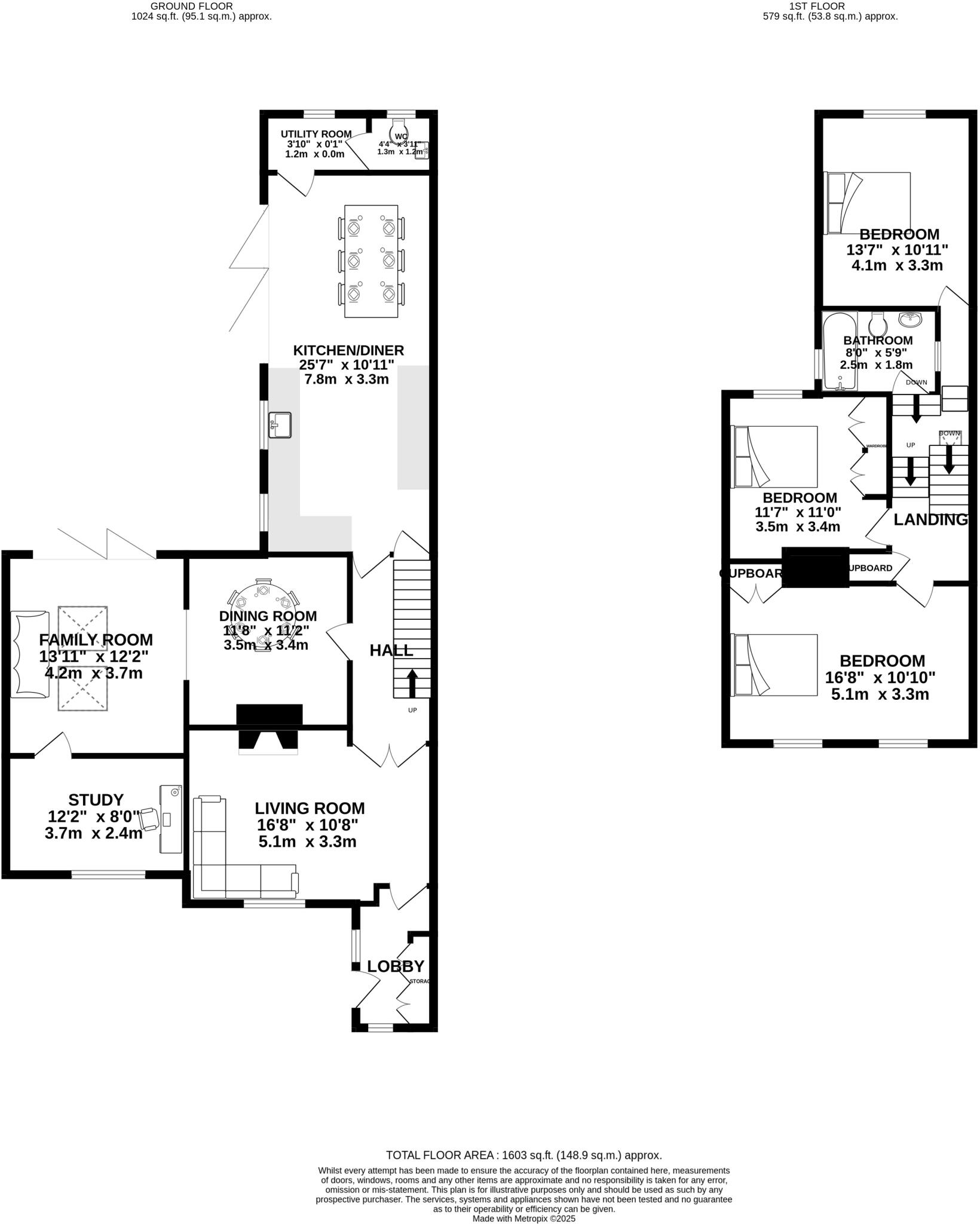
This semi-detached property on Broad Street, Cuckfield, presents a well-maintained family home in a sought-after location. The interior boasts a modern kitchen and bathroom, while the exterior includes a garden. Its proximity to reputable schools and transportation links enhances its appeal. While the square footage is not provided, the property offers three bedrooms and appears to be adequately sized for a family. The asking price of £675,000 seems reasonable given the property’s condition, location, and the average property prices in the area. Overall, this property represents a good opportunity for prospective buyers seeking a comfortable and conveniently located home in West Sussex.
Therefore, we give this property 7 / 10. *Disclaimer: This is our option and does constitute a recommendation or financial advice. Do your own research. *
- Price
- 7
- Condition
- 8
- Location
- 7
- Land
- 6
- Bedrooms
- 3
- Bathrooms
- 1
The heatmap indicates the level of crime in the area. The color of the heatmap indicates the crime severity and recency.
Metrics Year-on-Year
- Average area value
- 890,625.00 £Increased by 35.96 %
- Average area rental value
- 1,412.00 £/moDecreased by 13.11 %
- Est rental Yield
- 1.90 %Decreased by 36.24 %
- Crime Rate
- 93.00 %Unchanged by 0.00 %
Agent Activity
Harman Group created the listing.
Nearby Schools
| Name | Type | Ofsted | Distance |
|---|---|---|---|
| Warden Park Secondary Academy | Academy Converter | Good | 0.27 KM |
| Holy Trinity Cofe Primary School, Cuckfield | Voluntary Aided School | Good | 0.36 KM |
| Bolnore Village Primary School | Foundation School | Good | 2.56 KM |
| Harlands Primary School | Academy Converter | Good | 2.56 KM |
| Central Education Ltd | Other Independent Special School | Requires improvement | 3.01 KM |
Images
Nearby Streets
| Name | Average Price | Average Sqft | Distance |
|---|---|---|---|
| The Brambles | £ 0 | 0 | 0.00 KM |
| Cuckfield Bypass | £ 0 | 0 | 0.00 KM |
| Tylers Green | £ 2,025,000 | 0 | 0.00 KM |
| Horsgate Rise | £ 960,000 | 0 | 0.00 KM |
| Brainsmead | £ 400,000 | 0 | 0.00 KM |
Nearby Transport
| Name | NLC | TLC | Distance |
|---|---|---|---|
| Haywards Heath | 5490 | HHE | 3.14 KM |
| Wivelsfield | 5341 | WVF | 4.91 KM |
| Balcombe | 5492 | BAB | 5.46 KM |
| Burgess Hill | 5483 | BUG | 5.93 KM |
| Hassocks | 5489 | HSK | 9.23 KM |
Nearby Listings
| Address | Price | Type | Score | Distance |
|---|---|---|---|---|
| Oakroyd, Broad Street, Cuckfield, West Sussex, RH17 | £ 675,000 | BUY | 7 / 10 | 0.00 KM |
| Horsgate Lane, Cuckfield, RH17 | £ 575,000 | BUY | 7 / 10 | 0.11 KM |
| Horsgate Lane, Cuckfield, Haywards Heath | £ 700,000 | BUY | 6 / 10 | 0.11 KM |
| Horsgate Lane, Cuckfield | £ 675,000 | BUY | 7 / 10 | 0.13 KM |
| Woodbine Close, Cuckfield, RH17 | £ 475,000 | BUY | 7 / 10 | 0.16 KM |
Nearby Properties
| Address | Price | Distance |
|---|---|---|
| Westways | £ 330,000 | 0.01 KM |
| Oakroyd | £ 360,000 | 0.01 KM |
| Holly Tree House | £ 407,500 | 0.01 KM |
| Woodbine Cottage | £ 354,000 | 0.01 KM |
| Dyalls | £ 290,000 | 0.01 KM |