Jenkinson Estates says ..
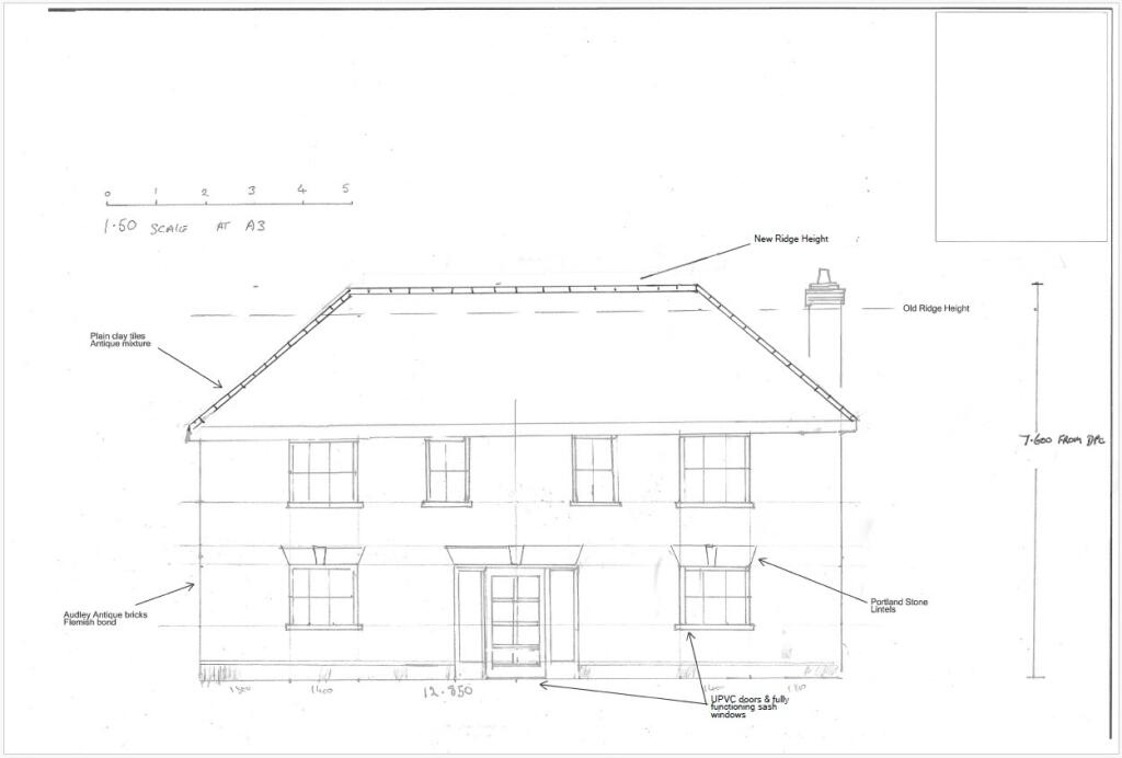
** TWO PLOTS AT THIS PRICE ** Jenkinson Estates are pleased to bring to the market this building plot in the semi rural location of Mill Bank, Mill Lane, Eastry. Approved Planning Permission with Dover District Council application number 21/01827. This planning has been approved for two detached ...
Property Oracle says ..
This is a plot of land in Eastry Rural with planning permission for a new build. The location offers a quiet, rural setting but is somewhat isolated. The property’s condition is currently undeveloped, requiring significant investment to build. The plot appears to offer a decent amount of land for a garden. The asking price seems reasonable for the plot itself, but potential buyers need to factor in substantial construction costs. The nearest primary school requires improvement. The nearest train station is almost 6km away.
Therefore, we give this property 5 / 10. *Disclaimer: This is our option and does constitute a recommendation or financial advice. Do your own research. *
- Price
- 7
- Condition
- 1
- Location
- 6
- Land
- 7
- Bedrooms
- 1
- Bathrooms
- 0
The heatmap indicates the level of crime in the area. The color of the heatmap indicates the crime severity and recency.
Metrics Year-on-Year
- Average area value
- 488,899.00 £Increased by 18.65 %
- Average area rental value
- 1,850.00 £/moIncreased by 36.23 %
- Est rental Yield
- 4.54 %Increased by 14.94 %
- Crime Rate
- 18.00 %Unchanged by 0.00 %
Agent Activity
Jenkinson Estates created the listing.
Nearby Schools
| Name | Type | Ofsted | Distance |
|---|---|---|---|
| Eastry Church Of England Primary School | Voluntary Controlled School | Requires improvement | 0.73 KM |
| The Davenport School | Other Independent Special School | Requires improvement | 1.70 KM |
| Northbourne Park School | Other Independent School | 2.33 KM | |
| Northbourne Church Of England Primary School | Academy Converter | 4.05 KM | |
| St Faith'S At Ash School Limited | Other Independent School | 4.73 KM |
Images
Nearby Streets
| Name | Average Price | Average Sqft | Distance |
|---|---|---|---|
| Dover Road | £ 0 | 0 | 0.00 KM |
| Shemara Court | £ 0 | 0 | 0.00 KM |
| Kiln Drive | £ 1,250,000 | 0 | 0.00 KM |
| Paddock Court | £ 0 | 0 | 0.00 KM |
Nearby Transport
| Name | NLC | TLC | Distance |
|---|---|---|---|
| Sandwich | 5026 | SDW | 5.76 KM |
| Shepherds Well | 5186 | SPH | 9.70 KM |
| Minster | 5019 | MSR | 9.76 KM |
| Snowdown | 5185 | SWO | 9.81 KM |
| Martin Mill | 5040 | MTM | 9.86 KM |
Nearby Listings
| Address | Price | Type | Score | Distance |
|---|---|---|---|---|
| Mill Lane, Eastry, CT13 | £ 260,000 | BUY | 5 / 10 | 0.00 KM |
| Mill Lane, Eastry, CT13 | £ 395,000 | BUY | 6 / 10 | 0.00 KM |
| Mill Lane, Eastry, CT13 | £ 185,000 | BUY | 5 / 10 | 0.00 KM |
| Heronden View, Sandwich, Deal, Kent, CT13 | £ 345,000 | BUY | 6 / 10 | 0.11 KM |
| Heronden View, Eastry, Sandwich, Kent | £ 231,500 | BUY | Unknown | 0.12 KM |
Nearby Properties
| Address | Price | Distance |
|---|---|---|
| New Horizon | £ 239,000 | 0.06 KM |
| 17 Heronden View | £ 202,500 | 0.12 KM |
| 21 Heronden View | £ 238,000 | 0.12 KM |
| 9 Heronden View | £ 275,000 | 0.12 KM |
| 19 Heronden View | £ 287,500 | 0.12 KM |