TH
Redcliffe Street, Rodbourne, Swindon, SN2
By The House Group
£ 210,000
Reviews
3 out of 5 stars
The House Group says ..
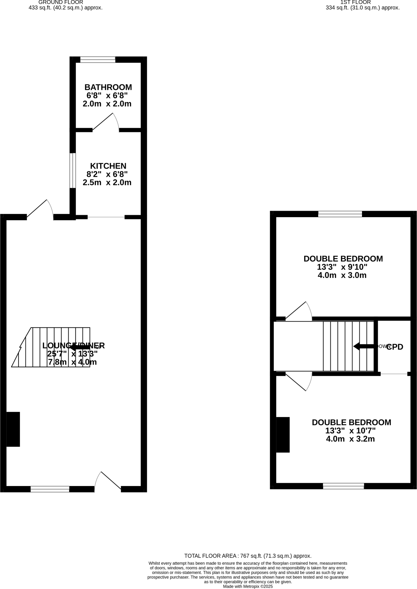
A two double bedroom end of terrace home, with a GARAGE, for sale with NO ONWARD CHAIN. The property benefits from a lovely open plan feel downstairs, with the living and dining rooms being opened up into one, yet still slightly separated by the staircase. Theres a fitted kitchen, a...
Property Oracle says ..
Therefore, we give this property 6 / 10. *Disclaimer: This is our option and does constitute a recommendation or financial advice. Do your own research. *
- Price
- 7
- Condition
- 6
- Location
- 7
- Land
- 5
- Bedrooms
- 2
- Bathrooms
- 1
- Sqft (est)
- 699.65
The heatmap indicates the level of crime in the area. The color of the heatmap indicates the crime severity and recency.
Metrics Year-on-Year
- Average area value
- 245,600.00 £Increased by 19.16 %
- Est sale value
- 199,400.25 £Increased by 13.10 %
- Average area rental value
- 978.00 £/moDecreased by 9.78 %
- Est letting value
- 699.65 £/moUnchanged by 0.00 %
- Est rental Yield
- 4.78 %Decreased by 24.25 %
- Crime Rate
- 4.00 %Unchanged by 0.00 %
from 206,103.00 £
from 176,311.80 £
from 1,084.00 £/mo
from 699.65 £/mo
from 6.31 %
from 4.00 %
Agent Activity
The House Group created the listing.
Nearby Schools
| Name | Type | Ofsted | Distance |
|---|---|---|---|
| Robert Le Kyng Primary School | Community School | Good | 0.66 KM |
| Utc Swindon | University Technical College | Requires improvement | 0.69 KM |
| Even Swindon Primary School | Community School | Good | 0.75 KM |
| Ferndale Primary School & Nursery | Academy Converter | Good | 1.36 KM |
| St Mary'S Catholic Primary School | Academy Converter | Good | 1.37 KM |
Images
Nearby Streets
| Name | Average Price | Average Sqft | Distance |
|---|---|---|---|
| Church Place | £ 0 | 0 | 0.00 KM |
| Marlborough Street | £ 0 | 0 | 0.00 KM |
| Turner Street | £ 0 | 0 | 0.00 KM |
| Joseph Street | £ 0 | 0 | 0.00 KM |
| Canal Cottages | £ 0 | 0 | 0.00 KM |
Nearby Transport
| Name | NLC | TLC | Distance |
|---|---|---|---|
| Swindon (Wilts) | 3333 | SWI | 1.63 KM |
Nearby Listings
| Address | Price | Type | Score | Distance |
|---|---|---|---|---|
| Redcliffe Street, Rodbourne, Swindon, SN2 | £ 210,000 | BUY | 6 / 10 | 0.00 KM |
| Redcliffe Street, Swindon, SN2 | £ 250,000 | BUY | Unknown | 0.03 KM |
| Rodbourne, Swindon, Wiltshire, SN2 | £ 240,000 | BUY | Unknown | 0.05 KM |
| Redcliffe Street, Swindon, SN2 2DA | £ 200,000 | BUY | 6 / 10 | 0.09 KM |
| Redcliffe Street, Swindon, SN2 2DA | £ 193,500 | BUY | 6 / 10 | 0.09 KM |
Nearby Properties
| Address | Price | Distance |
|---|---|---|
| 213 Rodbourne Road | £ 184,000 | 0.03 KM |
| 212 Rodbourne Road | £ 150,000 | 0.03 KM |
| 162 Redcliffe Street | £ 110,000 | 0.11 KM |
| 20 Redcliffe Street | £ 145,500 | 0.11 KM |
| 16 Redcliffe Street | £ 125,000 | 0.11 KM |