Tudor & Co says ..
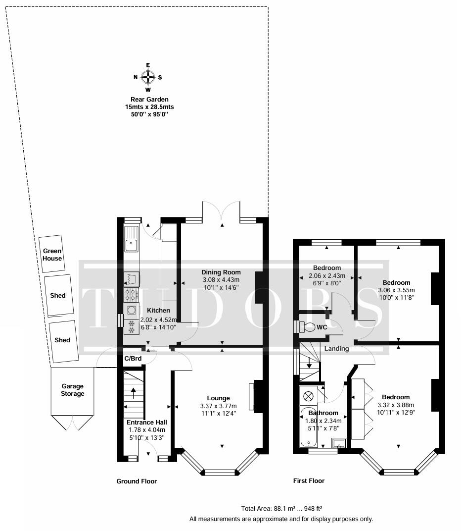
TUDORS are pleased to offer for sale this attractive mock Tudor style three bedroom semi-detached 1930’s home which an impressive larger than average 95ft rear garden. The property has been within the same family since bought in 1968 (the past circa 57 years). Offered to the market with ...
Property Oracle says ..
This is a three-bedroom semi-detached property located on New Road, West Molesey. The property is in a good location, close to schools and transportation. However, the property is in need of renovation, as the interior is dated and the garden is overgrown. The property has a good-sized garden and a garage. The price is reasonable, given the location and the condition of the property.
Therefore, we give this property 6 / 10. *Disclaimer: This is our option and does constitute a recommendation or financial advice. Do your own research. *
- Price
- 6
- Condition
- 4
- Location
- 7
- Land
- 7
- Bedrooms
- 3
- Bathrooms
- 1
- Sqft (est)
- 948.30
The heatmap indicates the level of crime in the area. The color of the heatmap indicates the crime severity and recency.
Metrics Year-on-Year
- Average area value
- 736,658.00 £Decreased by 7.15 %
- Est sale value
- 686,569.20 £Increased by 11.56 %
- Average area rental value
- 2,100.00 £/moDecreased by 8.93 %
- Est letting value
- 1,896.60 £/moIncreased by 100.00 %
- Est rental Yield
- 3.42 %Decreased by 2.01 %
- Crime Rate
- 8.00 %Unchanged by 0.00 %
Agent Activity
Tudor & Co created the listing.
Nearby Schools
| Name | Type | Ofsted | Distance |
|---|---|---|---|
| Hurst Park Primary School | Community School | Good | 0.46 KM |
| Chandlers Field Primary School | Foundation School | Good | 0.58 KM |
| Fox Grove School | Free Schools Special | 0.58 KM | |
| Three Rivers Sure Start Children'S Centre | Children's Centre | 0.66 KM | |
| St Alban'S Catholic Primary School | Academy Converter | Good | 1.04 KM |
Images
Nearby Streets
| Name | Average Price | Average Sqft | Distance |
|---|---|---|---|
| Windsor Avenue | £ 0 | 0 | 0.00 KM |
| Lavender Court | £ 0 | 0 | 0.00 KM |
| Lower Sunbury Road | £ 70,000 | 0 | 0.00 KM |
| The Fairway | £ 536,667 | 0 | 0.00 KM |
| Park Way | £ 890,000 | 0 | 0.00 KM |
Nearby Transport
| Name | NLC | TLC | Distance |
|---|---|---|---|
| Hampton | 5560 | HMP | 1.32 KM |
| Hampton Court | 5561 | HMC | 3.05 KM |
| Esher | 5558 | ESH | 3.29 KM |
| Hersham | 5590 | HER | 3.75 KM |
| Thames Ditton | 5610 | THD | 3.83 KM |
Nearby Listings
| Address | Price | Type | Score | Distance |
|---|---|---|---|---|
| New Road, West Molesey, KT8 | £ 700,000 | BUY | 6 / 10 | 0.00 KM |
| New Road, West Molesey, Surrey, KT8 | £ 700,000 | BUY | 6 / 10 | 0.07 KM |
| New Road, West Molesey | £ 750,000 | BUY | 6 / 10 | 0.10 KM |
| New Road, West Molesey, Surrey, KT8 | £ 750,000 | BUY | Unknown | 0.10 KM |
| Balmoral Crescent, West Molesey, KT8 | £ 699,950 | BUY | 6 / 10 | 0.12 KM |
Nearby Properties
| Address | Price | Distance |
|---|---|---|
| 22 New Road | £ 555,000 | 0.01 KM |
| 34 New Road | £ 750,000 | 0.01 KM |
| 20 New Road | £ 680,500 | 0.01 KM |
| 8 New Road | £ 670,000 | 0.01 KM |
| 18 New Road | £ 430,000 | 0.01 KM |