MC
Fosseway, Stow On The Wold, GL54 1FF
By McCarthy & Stone - West Midlands
£ 138,750
Reviews
3 out of 5 stars
McCarthy & Stone - West Midlands says ..
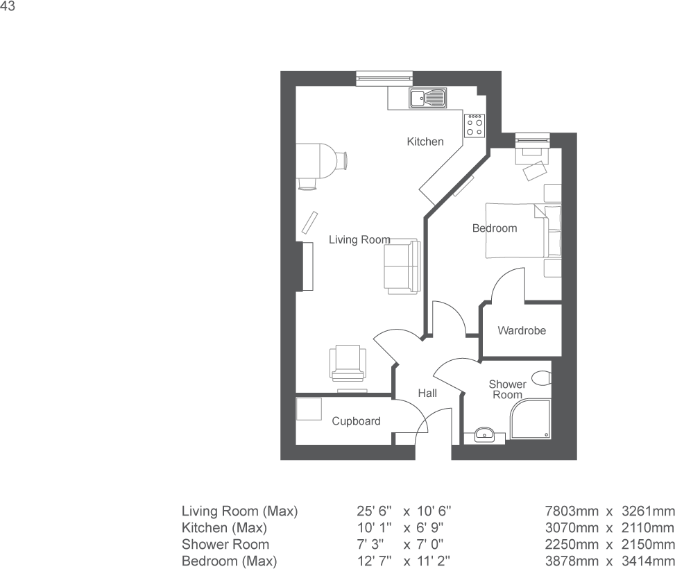
Easy living meets elegant design. Apartment 43 is a beautiful apartment with stunning contemporary kitchen and bathroom plus access to large, landscaped gardens.
Property Oracle says ..
Therefore, we give this property 7 / 10. *Disclaimer: This is our option and does constitute a recommendation or financial advice. Do your own research. *
- Price
- 8
- Condition
- 9
- Location
- 8
- Land
- 6
- Bedrooms
- 1
- Bathrooms
- 0
- Sqft (est)
- 527.26
The heatmap indicates the level of crime in the area. The color of the heatmap indicates the crime severity and recency.
Metrics Year-on-Year
- Average area value
- 241,538.00 £Decreased by 4.18 %
- Est sale value
- 146,051.02 £Increased by 2.97 %
- Average area rental value
- 846.00 £/moIncreased by 4.19 %
- Est letting value
- 0.00 £/mo
- Est rental Yield
- 4.20 %Increased by 8.53 %
- Crime Rate
- 30.00 %Unchanged by 0.00 %
from 252,064.00 £
from 141,832.94 £
from 812.00 £/mo
from 0.00 £/mo
from 3.87 %
from 30.00 %
Agent Activity
McCarthy & Stone - West Midlands created the listing.
Nearby Schools
| Name | Type | Ofsted | Distance |
|---|---|---|---|
| Stow-On-The-Wold Primary School | Community School | Good | 0.95 KM |
| Springboard Children'S Centre (Stow) | Children's Centre | 0.98 KM | |
| Swell Church Of England Primary School | Voluntary Controlled School | Good | 3.04 KM |
| Longborough Church Of England Primary School | Voluntary Controlled School | Good | 3.80 KM |
| St David'S Church Of England Primary School | Academy Converter | Good | 6.44 KM |
Images
Nearby Streets
| Name | Average Price | Average Sqft | Distance |
|---|---|---|---|
| Hawthorn Cottages | £ 596,238 | 0 | 0.00 KM |
| Tewkesbury Road | £ 0 | 0 | 0.00 KM |
| Parson's Corner | £ 365,000 | 0 | 0.00 KM |
| High Street | £ 650,000 | 0 | 0.00 KM |
| Drury Lane | £ 1,500,000 | 0 | 0.00 KM |
Nearby Transport
| Name | NLC | TLC | Distance |
|---|---|---|---|
| Moreton-In-Marsh | 4814 | MIM | 6.79 KM |
Nearby Listings
| Address | Price | Type | Score | Distance |
|---|---|---|---|---|
| Fosseway, Stow On The Wold, GL54 1FF | £ 90,000 | BUY | Unknown | 0.00 KM |
| Fosseway, Stow On The Wold, GL54 1FF | £ 155,000 | BUY | 6 / 10 | 0.00 KM |
| Fosseway, Stow On The Wold, GL54 1FF | £ 130,000 | BUY | 6 / 10 | 0.00 KM |
| Fosseway, Stow On The Wold, GL54 1FF | £ 138,750 | BUY | 7 / 10 | 0.00 KM |
| Fosseway, Stow On The Wold, GL54 1FF | £ 130,000 | BUY | 7 / 10 | 0.00 KM |
Nearby Properties
| Address | Price | Distance |
|---|---|---|
| Badgers End | £ 393,000 | 0.13 KM |
| The Paddocks | £ 1,125,000 | 0.13 KM |
| Hillbarn | £ 430,000 | 0.13 KM |
| Newlands Cottage | £ 235,000 | 0.13 KM |
| Fox Hill | £ 111,000 | 0.13 KM |