Winkworth says ..
A fantastic opportunity to acquire this three bedroom family house which is need of full modernisation.
Property Oracle says ..
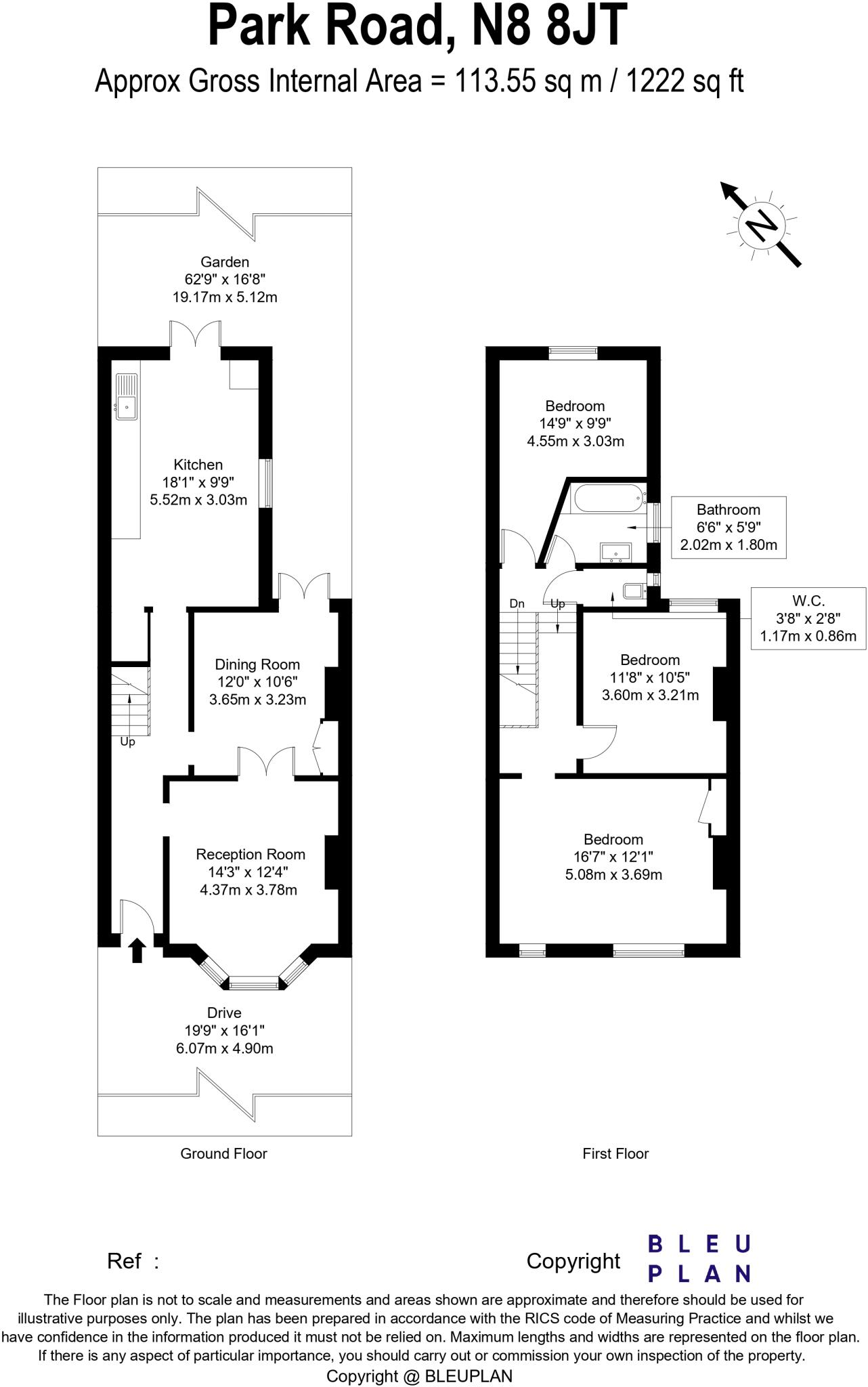
This property is a three-bedroom terraced house located on Park Road in Muswell Hill, Haringey, London. The list price is £1,050,000, and the property has 1,580.31 sqft of living space and a 1,222 sqft plot. The property is in need of significant renovation, as evidenced by the provided images showing extensive damage and debris throughout the interior and exterior. The average property price in the area is £1,212,444, with an average price per sqft of £867. While the location in Muswell Hill is generally desirable, the property’s condition significantly impacts its value. The small garden is overgrown and cluttered. The price seems high considering the extensive repairs required, but it is within the range of other properties in the area, although those properties are in significantly better condition.
Therefore, we give this property 4 / 10. *Disclaimer: This is our option and does constitute a recommendation or financial advice. Do your own research. *
- Price
- 4
- Condition
- 2
- Location
- 8
- Land
- 3
- Bedrooms
- 3
- Bathrooms
- 1
- Sqft (est)
- 1,580.31
- Lot (est)
- 1,222.00
The heatmap indicates the level of crime in the area. The color of the heatmap indicates the crime severity and recency.
Metrics Year-on-Year
- Average area value
- 1,088,571.00 £Increased by 9.23 %
- Est sale value
- 2,500,050.42 £Increased by 77.75 %
- Average area rental value
- 2,193.00 £/moIncreased by 0.09 %
- Est letting value
- 4,740.93 £/moIncreased by 200.00 %
- Est rental Yield
- 2.42 %Decreased by 8.33 %
- Crime Rate
- 3.00 %Unchanged by 0.00 %
Agent Activity
Winkworth created the listing.
Nearby Schools
| Name | Type | Ofsted | Distance |
|---|---|---|---|
| Highgate Wood Secondary School | Community School | Good | 0.45 KM |
| Rokesly Children'S Centre | Children's Centre | 0.88 KM | |
| Coleridge Primary School | Community School | Outstanding | 0.97 KM |
| Campsbourne Children'S Centre | Children's Centre | 1.13 KM | |
| Campsbourne Infant School | Community School | Good | 1.13 KM |
Images
Nearby Streets
| Name | Average Price | Average Sqft | Distance |
|---|---|---|---|
| Harefield Road | £ 750,000 | 0 | 0.00 KM |
| Kelland Close | £ 0 | 0 | 0.00 KM |
| Middle Lane | £ 0 | 0 | 0.00 KM |
| Kensington Place | £ 0 | 0 | 0.00 KM |
| Alexandra Palace Way | £ 0 | 0 | 0.00 KM |
Nearby Transport
| Name | NLC | TLC | Distance |
|---|---|---|---|
| Alexandra Palace | 6025 | AAP | 1.89 KM |
| Crouch Hill | 7406 | CRH | 2.00 KM |
| Hornsey | 6015 | HRN | 2.01 KM |
| Upper Holloway | 1524 | UHL | 2.27 KM |
| Bowes Park | 6027 | BOP | 2.76 KM |
Nearby Listings
| Address | Price | Type | Score | Distance |
|---|---|---|---|---|
| Park Road, London, N8 | £ 1,050,000 | BUY | 4 / 10 | 0.00 KM |
| Park Road, N8 | £ 1,095,000 | BUY | 6 / 10 | 0.06 KM |
| Harefield Road, N8 | £ 1,950,000 | BUY | Unknown | 0.09 KM |
| Park Road, Crouch End, London, N8 | £ 450,000 | BUY | 8 / 10 | 0.09 KM |
| Park Road, London, N8 | £ 525,000 | BUY | 8 / 10 | 0.09 KM |
Nearby Properties
| Address | Price | Distance |
|---|---|---|
| 11 Harefield Road | £ 670,000 | 0.05 KM |
| 10 Harefield Road | £ 1,340,000 | 0.05 KM |
| 8 Harefield Road | £ 735,000 | 0.05 KM |
| 3 Harefield Road | £ 1,142,000 | 0.06 KM |
| 12 Harefield Road | £ 1,050,000 | 0.09 KM |