Cookham Road, Maidenhead, Berkshire, SL6
By Prospect Estate Agency
£ 215,000
Reviews
3 out of 5 stars
Prospect Estate Agency says ..
*NO ONWARD CHAIN* This well-presented one-bedroom apartment offers an excellent opportunity for first-time buyers, downsizers, or investors seeking a stylish and low-maintenance home in a convenient location. Neutrally decorated throughout, it provides a fresh canvas ready for personal...
Property Oracle says ..
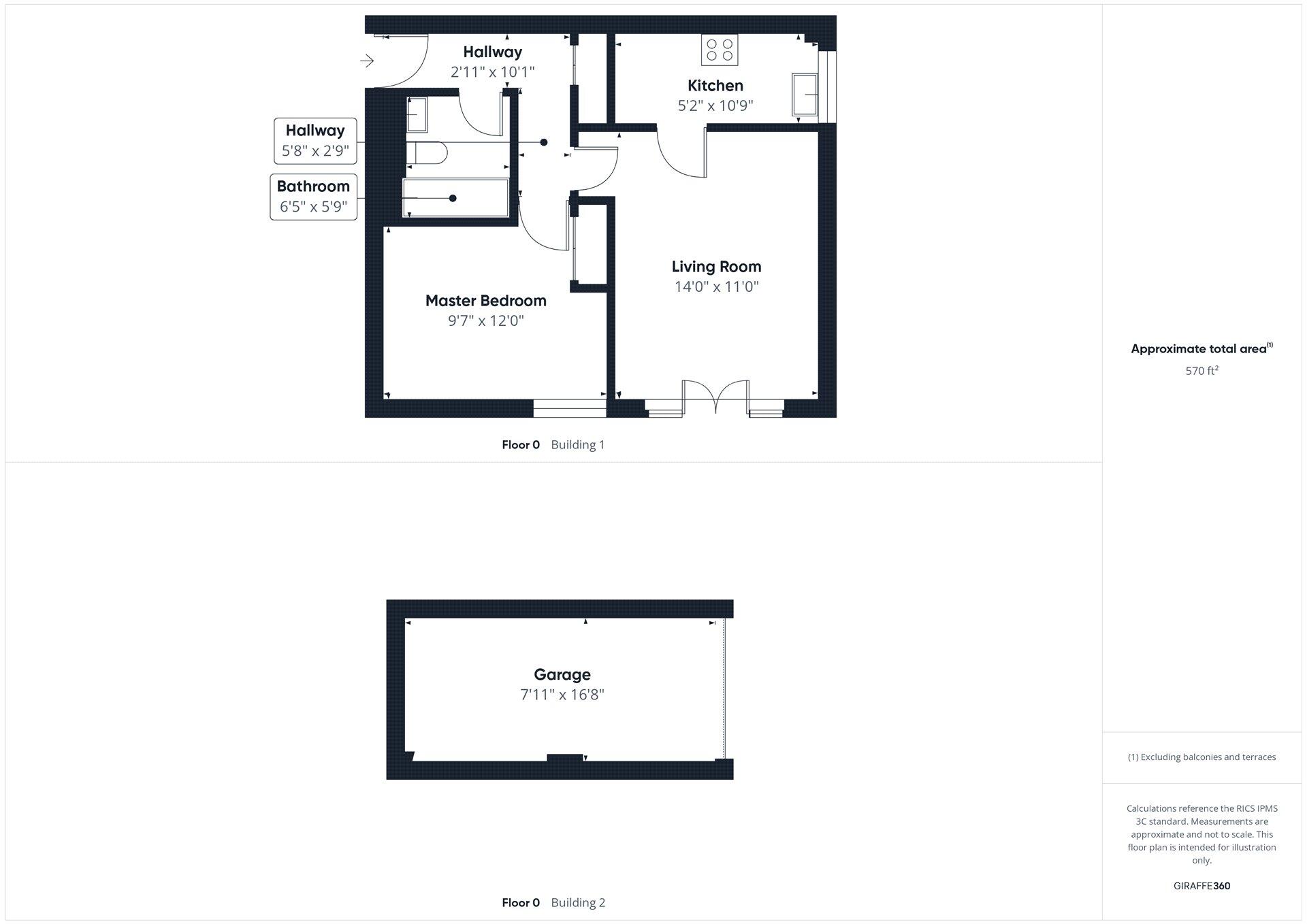
This is a one-bedroom apartment located on Cookham Road in Maidenhead. The property is in good condition, with a modern kitchen and bathroom. It benefits from communal garden space. The location is convenient, with proximity to schools and transportation. The price appears reasonable compared to the local market. Overall, this property presents a solid opportunity for potential buyers or investors.
Therefore, we give this property 6 / 10. *Disclaimer: This is our option and does constitute a recommendation or financial advice. Do your own research. *
- Price
- 8
- Condition
- 7
- Location
- 7
- Land
- 5
- Bedrooms
- 1
- Bathrooms
- 1
- Sqft (est)
- 570.00
The heatmap indicates the level of crime in the area. The color of the heatmap indicates the crime severity and recency.
Metrics Year-on-Year
- Average area value
- 426,436.00 £Decreased by 1.59 %
- Est sale value
- 274,170.00 £Increased by 21.77 %
- Average area rental value
- 1,587.00 £/moDecreased by 7.46 %
- Est letting value
- 570.00 £/moUnchanged by 0.00 %
- Est rental Yield
- 4.47 %Decreased by 5.89 %
- Crime Rate
- 14.00 %Unchanged by 0.00 %
Agent Activity
Prospect Estate Agency created the listing.
Nearby Schools
| Name | Type | Ofsted | Distance |
|---|---|---|---|
| St Luke'S Cofe Primary School | Academy Converter | Outstanding | 0.14 KM |
| Riverside Children'S Centre (Formerly Ellington) | Children's Centre | 0.32 KM | |
| Riverside Primary School And Nursery | Community School | Requires improvement | 0.40 KM |
| St Mary'S Catholic Primary School, Maidenhead | Academy Converter | Good | 0.60 KM |
| Maidenhead Nursery Children'S Centre | Children's Centre | 0.90 KM |
Images
Nearby Streets
| Name | Average Price | Average Sqft | Distance |
|---|---|---|---|
| Holly Drive | £ 0 | 0 | 0.00 KM |
| West Street | £ 265,000 | 0 | 0.00 KM |
| Providence Place | £ 268,500 | 0 | 0.00 KM |
| St Mary's Walk | £ 0 | 0 | 0.00 KM |
| Fairford Road | £ 308,333 | 0 | 0.00 KM |
Nearby Transport
| Name | NLC | TLC | Distance |
|---|---|---|---|
| Maidenhead | 3147 | MAI | 0.94 KM |
| Furze Platt | 3144 | FZP | 1.04 KM |
| Cookham | 3019 | COO | 3.39 KM |
| Taplow | 3151 | TAP | 4.43 KM |
| Bourne End | 3018 | BNE | 5.70 KM |
Nearby Listings
| Address | Price | Type | Score | Distance |
|---|---|---|---|---|
| Cookham Road, Maidenhead, Berkshire, SL6 | £ 215,000 | BUY | 6 / 10 | 0.00 KM |
| Cookham Road, Maidenhead | £ 279,950 | BUY | 6 / 10 | 0.00 KM |
| Church Views, Maidenhead, Berkshire | £ 280,000 | BUY | 6 / 10 | 0.00 KM |
| Church Views, Maidenhead, SL6 | £ 225,000 | BUY | 7 / 10 | 0.01 KM |
| Cookham Road, Maidenhead, Berkshire | £ 280,000 | BUY | 7 / 10 | 0.05 KM |
Nearby Properties
| Address | Price | Distance |
|---|---|---|
| 12 Church Views | £ 196,000 | 0.01 KM |
| 6 Church Views | £ 160,000 | 0.01 KM |
| 21 Church Views | £ 180,000 | 0.01 KM |
| 24 Church Views | £ 175,000 | 0.01 KM |
| 9 Church Views | £ 135,000 | 0.01 KM |