Daniels says ..
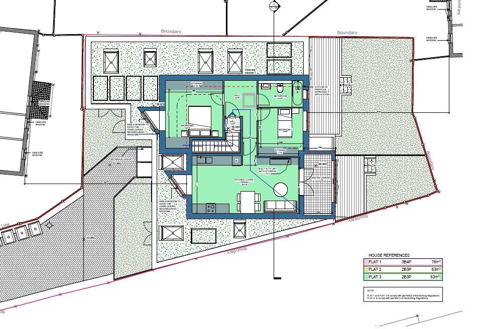
Land For Sale with planning permission for three brand new apartments. Planning comprises of: Three bed ground floor with private garden - 76 Sq. M (818 Sq. Ft.) Two bed ground floor with private garden - 63 Sq. M (678 Sq. Ft.) Two bed first floor with Terrace - 63 Sq. M (6...
Property Oracle says ..
This property on Harrow Road, Sudbury, presents a unique investment opportunity. The current structure is in poor condition, requiring a complete overhaul as indicated by the provided architectural plans. These plans detail the construction of what seems to be a multi-unit development, significantly increasing the property’s potential value. The location is advantageous, with relatively easy access to public transport via nearby train stations and several primary schools within walking distance. However, the immediate surroundings lack the amenities and vibrancy of more desirable areas. The land itself is substantial, providing ample space for the proposed development. The current state of the land is overgrown and requires considerable landscaping. The list price of £475,000 reflects the potential return on investment after the planned development, but prospective buyers must factor in the substantial costs associated with the complete rebuild. The lack of specific details regarding the existing property’s interior and the absence of bedroom and bathroom counts hinders a more precise valuation. The absence of information on the average price per square foot in the area also limits a more detailed analysis of the price’s competitiveness. Overall, this property is a high-risk, high-reward investment suitable for experienced developers or investors comfortable with extensive renovation projects.
Therefore, we give this property 5 / 10. *Disclaimer: This is our option and does constitute a recommendation or financial advice. Do your own research. *
- Price
- 7
- Condition
- 3
- Location
- 6
- Land
- 4
- Bedrooms
- 0
- Bathrooms
- 0
- Sqft (est)
- 700.00
The heatmap indicates the level of crime in the area. The color of the heatmap indicates the crime severity and recency.
Metrics Year-on-Year
- Average area value
- 497,772.00 £Increased by 11.11 %
- Est sale value
- 419,300.00 £Increased by 37.70 %
- Average area rental value
- 1,863.00 £/moDecreased by 5.72 %
- Est letting value
- 1,400.00 £/moIncreased by 100.00 %
- Est rental Yield
- 4.49 %Decreased by 15.12 %
- Crime Rate
- 9.00 %Unchanged by 0.00 %
Agent Activity
Daniels created the listing.
Nearby Schools
| Name | Type | Ofsted | Distance |
|---|---|---|---|
| Sudbury Primary School | Academy Converter | Good | 0.34 KM |
| Wembley High Technology College | Academy Converter | 1.22 KM | |
| North Brent School | Free Schools | 1.49 KM | |
| East Lane Primary School | Academy Converter | Outstanding | 1.49 KM |
| St George'S Primary Catholic Voluntary Academy | Academy Converter | 1.54 KM |
Images
Nearby Streets
| Name | Average Price | Average Sqft | Distance |
|---|---|---|---|
| Chestnut Avenue | £ 621,667 | 0 | 0.00 KM |
| Chestnut Grove | £ 528,333 | 0 | 0.00 KM |
| Elms Lane | £ 499,950 | 0 | 0.00 KM |
| Windmore Close | £ 0 | 0 | 0.00 KM |
| St. Andrews Avenue | £ 0 | 0 | 0.00 KM |
Nearby Transport
| Name | NLC | TLC | Distance |
|---|---|---|---|
| Sudbury And Harrow Road | 1483 | SUD | 0.51 KM |
| Sudbury Hill Harrow | 1484 | SDH | 1.82 KM |
| North Wembley | 1422 | NWB | 1.83 KM |
| South Kenton | 1453 | SOK | 1.94 KM |
| Wembley Central | 1423 | WMB | 2.59 KM |
Nearby Listings
| Address | Price | Type | Score | Distance |
|---|---|---|---|---|
| Harrow Road, Wembley | £ 379,000 | BUY | 6 / 10 | 0.03 KM |
| Chestnut Avenue, Wembley, Greater London, HA0 2LT | £ 374,950 | BUY | 6 / 10 | 0.10 KM |
| Gauntlett Court, Harrow Road, Wembley | £ 300,000 | BUY | Unknown | 0.13 KM |
| Gauntlett Court, Wembley, Middlesex, HA0 | £ 315,000 | BUY | Unknown | 0.15 KM |
| Wembley, HA0 | £ 675,000 | BUY | 6 / 10 | 0.15 KM |
Nearby Properties
| Address | Price | Distance |
|---|---|---|
| 827 Harrow Road | £ 220,000 | 0.04 KM |
| 815 Harrow Road | £ 190,000 | 0.04 KM |
| 821 Harrow Road | £ 210,000 | 0.04 KM |
| 819 Harrow Road | £ 182,000 | 0.05 KM |
| 42 Gauntlett Court | £ 226,500 | 0.09 KM |