Felicity J Lord says ..
This exquisite one-bedroom apartment, gracefully positioned on the second floor of an awe-inspiring period house
Property Oracle says ..
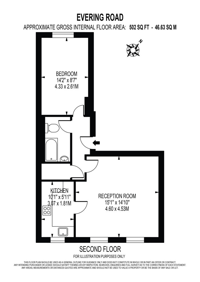
This one bedroom flat is located in Hackney Downs, a vibrant and popular area of East London. The property benefits from being close to excellent transport links, including Rectory Road Overground station, and several highly-rated primary schools. The flat itself appears to be in good condition, with a modern kitchen and bathroom. However, the lack of outdoor space is a notable drawback. The list price of £425,000 seems reasonable considering the average price per square foot in the area, although it is below the overall average price for the area. The relatively small size of the property (502 sq ft) is a factor to consider.
Therefore, we give this property 6 / 10. *Disclaimer: This is our option and does constitute a recommendation or financial advice. Do your own research. *
- Price
- 7
- Condition
- 8
- Location
- 9
- Land
- 1
- Bedrooms
- 1
- Bathrooms
- 1
- Sqft (est)
- 502.00
The heatmap indicates the level of crime in the area. The color of the heatmap indicates the crime severity and recency.
Metrics Year-on-Year
- Average area value
- 309,833.00 £Decreased by 53.44 %
- Est sale value
- 323,288.00 £Decreased by 7.87 %
- Average area rental value
- 2,396.00 £/moIncreased by 9.71 %
- Est letting value
- 2,008.00 £/moIncreased by 100.00 %
- Est rental Yield
- 9.28 %Increased by 135.53 %
- Crime Rate
- 4.00 %Unchanged by 0.00 %
Agent Activity
Felicity J Lord created the listing.
Nearby Schools
| Name | Type | Ofsted | Distance |
|---|---|---|---|
| Benthal Primary School | Community School | Good | 0.13 KM |
| St Scholastica'S Catholic Primary School | Voluntary Aided School | Good | 0.28 KM |
| The Boxing Academy Ap Free School | Free Schools Alternative Provision | Outstanding | 0.30 KM |
| Northwold Primary School | Academy Converter | Good | 0.34 KM |
| Linden Children'S Centre | Children's Centre | 0.49 KM |
Images
Nearby Streets
| Name | Average Price | Average Sqft | Distance |
|---|---|---|---|
| Clapton Way | £ 0 | 0 | 0.00 KM |
| Baron's Walk | £ 299,950 | 0 | 0.00 KM |
| Scoble Place | £ 285,000 | 0 | 0.00 KM |
| Sandford Walk | £ 0 | 0 | 0.00 KM |
| Sanford Lane | £ 0 | 0 | 0.00 KM |
Nearby Transport
| Name | NLC | TLC | Distance |
|---|---|---|---|
| Rectory Road | 6967 | REC | 0.38 KM |
| Clapton | 6926 | CPT | 0.91 KM |
| Stoke Newington | 6934 | SKW | 1.09 KM |
| Hackney Downs | 6867 | HAC | 1.27 KM |
| Hackney Central | 6977 | HKC | 1.69 KM |
Nearby Listings
| Address | Price | Type | Score | Distance |
|---|---|---|---|---|
| Evering Road, London N16 | £ 425,000 | BUY | 6 / 10 | 0.00 KM |
| Evering Road, Hackney, London, N16 | £ 725,000 | BUY | Unknown | 0.11 KM |
| Flat A, 132 Evering Road, Stoke Newington, London N16 7BD | £ 450,000 | BUY | 5 / 10 | 0.11 KM |
| Evering Road, Stoke Newington, N16 | £ 300,000 | BUY | 4 / 10 | 0.12 KM |
| Evering Road, London, N16 | £ 240,000 | BUY | 6 / 10 | 0.13 KM |
Nearby Properties
| Address | Price | Distance |
|---|---|---|
| 157 Evering Road | £ 435,000 | 0.03 KM |
| 4 Norcott Road | £ 745,000 | 0.08 KM |
| 11 Norcott Road | £ 770,000 | 0.08 KM |
| 5 Norcott Road | £ 1,620,000 | 0.08 KM |
| 9 Norcott Road | £ 1,510,000 | 0.08 KM |