Winkworth says ..
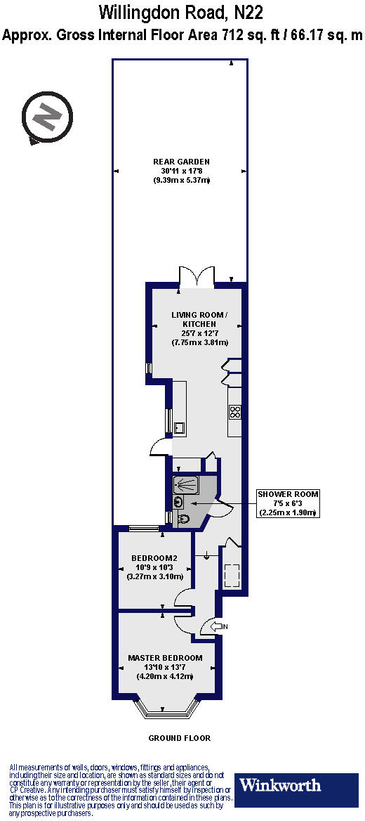
A stylish and spacious two-bedroom ground-floor flat set within an elegant Victorian terrace conversion, featuring a generous south-east facing private garden. With a bright open-plan living area, modern kitchen and bathroom, and excellent access to local parks, transport, and amenities, this bea...
Property Oracle says ..
Therefore, we give this property 7 / 10. *Disclaimer: This is our option and does constitute a recommendation or financial advice. Do your own research. *
- Price
- 9
- Condition
- 8
- Location
- 7
- Land
- 7
- Bedrooms
- 2
- Bathrooms
- 1
- Sqft (est)
- 1,202.44
The heatmap indicates the level of crime in the area. The color of the heatmap indicates the crime severity and recency.
Metrics Year-on-Year
- Average area value
- 514,286.00 £Decreased by 0.49 %
- Est sale value
- 835,695.80 £Increased by 4.83 %
- Average area rental value
- 1,644.00 £/moDecreased by 18.33 %
- Est letting value
- 2,404.88 £/moUnchanged by 0.00 %
- Est rental Yield
- 3.84 %Decreased by 17.77 %
- Crime Rate
- 2.00 %Unchanged by 0.00 %
from 516,812.00 £
from 797,217.72 £
from 2,013.00 £/mo
from 2,404.88 £/mo
from 4.67 %
from 2.00 %
Agent Activity
Winkworth created the listing.
Nearby Schools
| Name | Type | Ofsted | Distance |
|---|---|---|---|
| Noel Park Primary School | Academy Sponsor Led | Outstanding | 0.36 KM |
| Noel Park Children'S Centre | Children's Centre | 0.59 KM | |
| The Grove | Free Schools Special | 0.66 KM | |
| Belmont Infant School | Community School | Good | 0.74 KM |
| Belmont Junior School | Community School | Outstanding | 0.74 KM |
Images
Nearby Streets
| Name | Average Price | Average Sqft | Distance |
|---|---|---|---|
| Coldham Court | £ 300,000 | 0 | 0.00 KM |
| Mosaic Circle | £ 0 | 0 | 0.00 KM |
| Acacia Road | £ 0 | 0 | 0.00 KM |
| Elm Road | £ 525,000 | 0 | 0.00 KM |
| Erin Mews | £ 650,000 | 0 | 0.00 KM |
Nearby Transport
| Name | NLC | TLC | Distance |
|---|---|---|---|
| Hornsey | 6015 | HRN | 1.46 KM |
| Harringay Green Lanes | 7401 | HRY | 1.82 KM |
| Harringay | 6012 | HGY | 1.84 KM |
| Alexandra Palace | 6025 | AAP | 2.21 KM |
| Bowes Park | 6027 | BOP | 2.67 KM |
Nearby Listings
| Address | Price | Type | Score | Distance |
|---|---|---|---|---|
| Willingdon Road, London, N22 | £ 565,000 | BUY | 7 / 10 | 0.00 KM |
| Willingdon Road, Wood Green, N22 | £ 725,000 | BUY | 5 / 10 | 0.03 KM |
| Willingdon Road, London | £ 450,000 | BUY | 7 / 10 | 0.03 KM |
| Meads Road, London, N22 | £ 750,000 | BUY | 6 / 10 | 0.09 KM |
| Cobham Road, Wood Green, London, N22 | £ 475,000 | BUY | 7 / 10 | 0.10 KM |
Nearby Properties
| Address | Price | Distance |
|---|---|---|
| 12b Willingdon Road | £ 225,000 | 0.03 KM |
| 10a Willingdon Road | £ 470,000 | 0.03 KM |
| 6b Willingdon Road | £ 390,000 | 0.03 KM |
| 30 Willingdon Road | £ 280,000 | 0.03 KM |
| 10b Willingdon Road | £ 428,000 | 0.03 KM |