The Durham, Glapwell Gardens, Glapwell
By Wilson Estate Agents
£ 249,950
Reviews
3 out of 5 stars
Wilson Estate Agents says ..
Glapwell Gardens is a new development that offers an ideal setting for buyers seeking a tranquil countryside location, conveniently situated near Sheffield, Chesterfield, Mansfield, and major network links, including the M1 and A38.
Property Oracle says ..
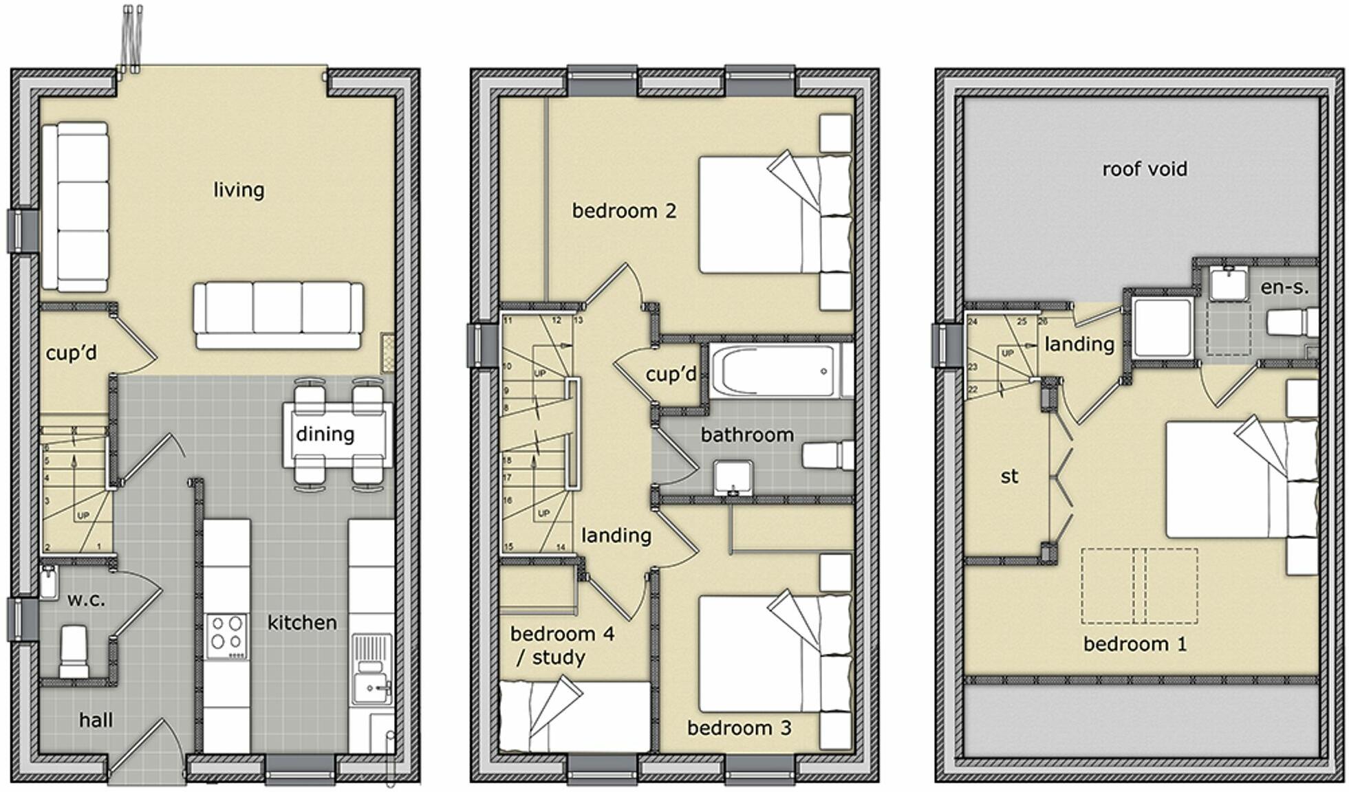
This 4-bedroom, 2-bathroom semi-detached property in Glapwell, Derbyshire, is presented as a new-build home in a well-presented development, showcasing a modern and contemporary style. The provided images display high-quality finishes throughout, with a focus on a clean, sleek design. The property’s interior is bright and airy, with modern kitchen appliances and fixtures. The inclusion of a garden isn’t clarified in the data, with plot size listed as 0.00 sqft, which needs further clarification to assess the property’s space in its entirety. The location offers a tranquil countryside setting while being relatively close to major transportation links such as the M1 and A38 motorways, as well as the towns of Sheffield, Chesterfield, and Mansfield. The proximity to schools rated ‘Good’ by Ofsted also enhances its family-friendly appeal. While the absence of detailed square footage data for comparable properties restricts a conclusive price-per-square-foot analysis, the list price seems in line with market trends for similar new-build homes in the area, although more detailed property information regarding the land/garden would strengthen its market positioning.
Therefore, we give this property 6 / 10. *Disclaimer: This is our option and does constitute a recommendation or financial advice. Do your own research. *
- Price
- 7
- Condition
- 9
- Location
- 6
- Land
- 3
- Bedrooms
- 4
- Bathrooms
- 2
- Sqft (est)
- 1,084.68
The heatmap indicates the level of crime in the area. The color of the heatmap indicates the crime severity and recency.
Metrics Year-on-Year
- Average area value
- 355,556.00 £Increased by 28.46 %
- Est sale value
- 379,638.00 £Increased by 30.11 %
- Average area rental value
- 1,169.00 £/moDecreased by 2.83 %
- Est letting value
- 1,084.68 £/moUnchanged by 0.00 %
- Est rental Yield
- 3.95 %Decreased by 24.33 %
- Crime Rate
- 86.00 %Unchanged by 0.00 %
Agent Activity
Wilson Estate Agents created the listing.
Nearby Schools
| Name | Type | Ofsted | Distance |
|---|---|---|---|
| Palterton Primary School | Community School | Good | 2.32 KM |
| Bramley Vale Primary School | Community School | Good | 2.65 KM |
| Anthony Bek Community Primary School | Community School | Good | 3.52 KM |
| Scarcliffe Primary School | Community School | Good | 3.84 KM |
| The Bolsover School | Academy Converter | Good | 4.24 KM |
Images
Nearby Streets
| Name | Average Price | Average Sqft | Distance |
|---|---|---|---|
| Hawthorne Avenue | £ 0 | 0 | 0.00 KM |
| Maple Grove | £ 0 | 0 | 0.00 KM |
| The Square | £ 0 | 0 | 0.00 KM |
Nearby Transport
| Name | NLC | TLC | Distance |
|---|---|---|---|
| Shirebrook | 1595 | SHB | 9.09 KM |
| Sutton Parkway | 1861 | SPK | 9.37 KM |
| Langwith-Whaley Thorns | 1871 | LAG | 9.44 KM |
| Mansfield Woodhouse | 1728 | MSW | 9.45 KM |
Nearby Listings
| Address | Price | Type | Score | Distance |
|---|---|---|---|---|
| The Rochester, Glapwell Gardens, Glapwell | £ 309,950 | BUY | 7 / 10 | 0.02 KM |
| Plot 31, The Hampton, Glapwell Gardens, Glapwell | £ 524,950 | BUY | 7 / 10 | 0.02 KM |
| The Waterford, Glapwell Gardens, Glapwell | £ 399,950 | BUY | 7 / 10 | 0.03 KM |
| The Richmond, Glapwell Gardens, Glapwell | £ 369,950 | BUY | 7 / 10 | 0.03 KM |
| The Hampton, Glapwell Gardens, Glapwell | £ 509,950 | BUY | 8 / 10 | 0.03 KM |
Nearby Properties
| Address | Price | Distance |
|---|---|---|
| 11 Bolsover Road | £ 155,000 | 0.07 KM |
| 12 Bolsover Road | £ 160,000 | 0.08 KM |
| 6 Rowthorne Lane | £ 97,500 | 0.10 KM |
| 4 Rowthorne Lane | £ 147,500 | 0.10 KM |
| 4 Hardwick Avenue | £ 163,000 | 0.13 KM |