Winkworth says ..
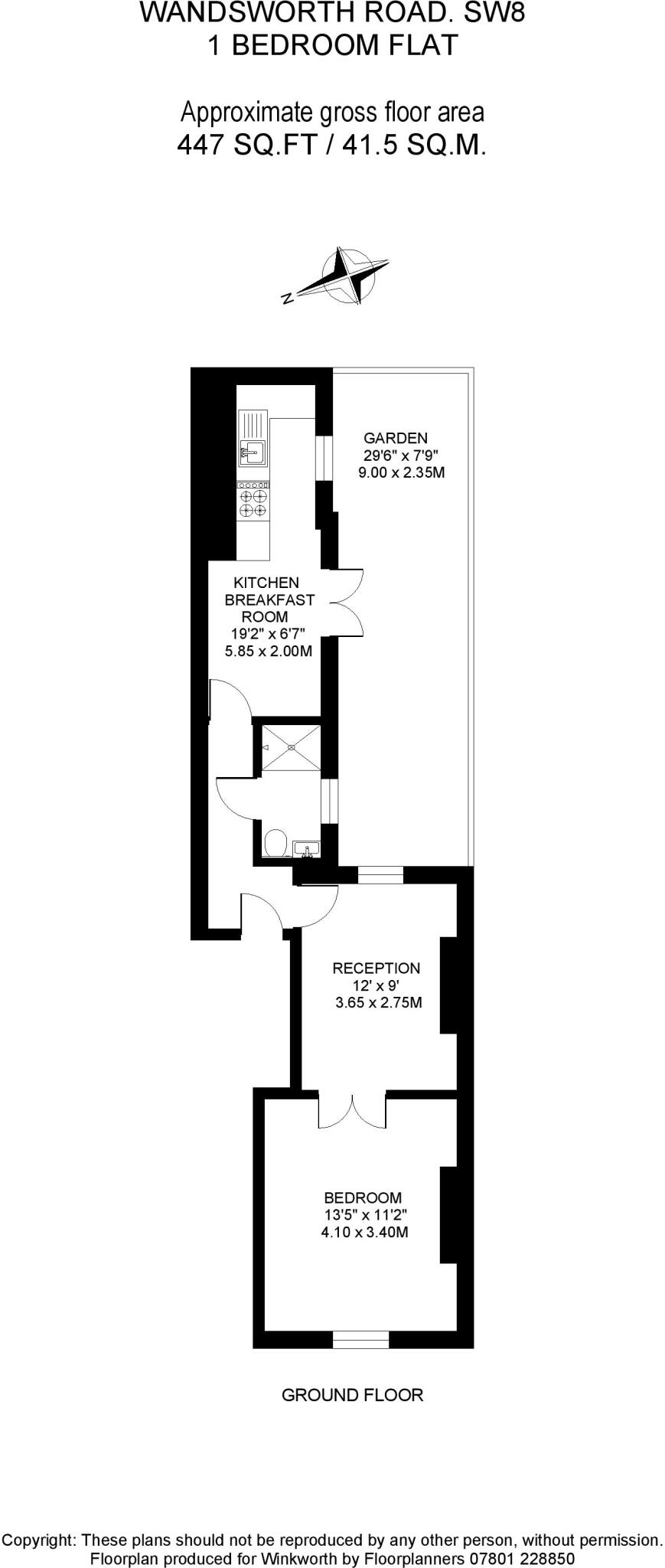
A great opportunity to purchase a one-bedroom garden flat situated in Grade II listed Georgian converted house. The property is ideally located next to the Nine Elms regeneration zone and benefits from outstanding links into the West and Central London. EPC rating C.
Property Oracle says ..
This is a one-bedroom apartment located in Stockwell, London. The property is in generally good condition, with a modern kitchen and bathroom. It benefits from being close to local transport and schools. The property includes a small outdoor area. The asking price is £425,000, which is slightly above the average price per square foot for the area. Overall, this property would be suitable for a single professional or a couple looking for a well-connected base in London.
Therefore, we give this property 6 / 10. *Disclaimer: This is our option and does constitute a recommendation or financial advice. Do your own research. *
- Price
- 6
- Condition
- 7
- Location
- 7
- Land
- 5
- Bedrooms
- 1
- Bathrooms
- 1
- Sqft (est)
- 446.70
The heatmap indicates the level of crime in the area. The color of the heatmap indicates the crime severity and recency.
Metrics Year-on-Year
- Average area value
- 620,000.00 £Decreased by 17.24 %
- Est sale value
- 355,126.50 £Increased by 7.43 %
- Average area rental value
- 2,333.00 £/moDecreased by 4.85 %
- Est letting value
- 893.40 £/moUnchanged by 0.00 %
- Est rental Yield
- 4.52 %Increased by 15.01 %
- Crime Rate
- 5.00 %Unchanged by 0.00 %
Agent Activity
Winkworth created the listing.
Nearby Schools
| Name | Type | Ofsted | Distance |
|---|---|---|---|
| Yvonne Carr Children Centre | Children's Centre | 0.30 KM | |
| Larkhall Primary Campus | Community School | Good | 0.59 KM |
| Allen Edwards Primary School | Community School | Good | 0.60 KM |
| Lark Hall Primary School And Children'S Centre | Children's Centre | 0.66 KM | |
| Griffin Primary School | Academy Sponsor Led | Requires improvement | 0.73 KM |
Images
Nearby Streets
| Name | Average Price | Average Sqft | Distance |
|---|---|---|---|
| Belmore Street | £ 0 | 0 | 0.00 KM |
| Belmore Street | £ 816,364 | 0 | 0.00 KM |
| Bramley Crescent | £ 0 | 0 | 0.00 KM |
| Stewart Court | £ 385,000 | 0 | 0.00 KM |
| Pascal Square | £ 1,222,000 | 0 | 0.00 KM |
Nearby Transport
| Name | NLC | TLC | Distance |
|---|---|---|---|
| Wandsworth Road | 5372 | WWR | 0.94 KM |
| Clapham High Street | 5301 | CLP | 1.12 KM |
| Vauxhall | 5597 | VXH | 1.55 KM |
| Queenstown Road (Battersea) | 5596 | QRB | 1.63 KM |
| Battersea Park | 5420 | BAK | 1.73 KM |
Nearby Listings
| Address | Price | Type | Score | Distance |
|---|---|---|---|---|
| Wandsworth Road, London, SW8 | £ 625,000 | BUY | 6 / 10 | 0.00 KM |
| Ambassador Building, 5 New Union Square, Embassy Gardens, Nine Elms, SW11 | £ 1,125,000 | BUY | 6 / 10 | 0.00 KM |
| The Tower, St George Wharf, Vauxhall, London, SW8 | £ 3,200,000 | BUY | 6 / 10 | 0.00 KM |
| Ambassador Building, 5 New Union Square, London, SW8 | £ 750,000 | BUY | 5 / 10 | 0.00 KM |
| The Madison, E14 | £ 755,000 | BUY | 5 / 10 | 0.00 KM |
Nearby Properties
| Address | Price | Distance |
|---|---|---|
| 61 Thorparch Road | £ 7,750 | 0.07 KM |
| 67 Thorparch Road | £ 1,140,000 | 0.07 KM |
| 75 Thorparch Road | £ 470,000 | 0.07 KM |
| 57 Thorparch Road | £ 230,000 | 0.07 KM |
| 77 Thorparch Road | £ 350,000 | 0.07 KM |