10 Maison Dieu Place, Dover, Kent, CT16 1DX
By Auction House London
£ 110,000
Reviews
2 out of 5 stars
Auction House London says ..
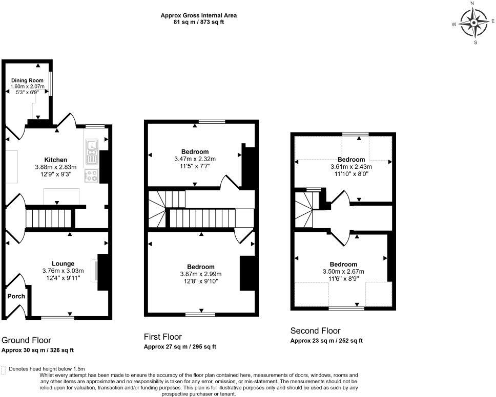
**For Sale By Public Auction 12th November 2025 09:30 AM To inspect the legal documents for this property go to our website to download the legal pack** A Vacant Four Bedroom Mid Terrace House Freehold Guide Price = £110,000+ Location The property is sit...
Property Oracle says ..
This is a four-bedroom terraced house in Dover, Kent, listed by Auction House London. The property requires extensive renovation, as evidenced by the damaged ceilings, worn walls, and outdated interiors shown in the images. While the condition is poor, the location is reasonably good, with proximity to Dover Priory station and several schools. The property includes a small garden or yard. The asking price of £110,000 seems competitive, considering the average price per square foot in the area is £474, and this property is offered at approximately £161.13 per square foot. This property presents a significant opportunity for investors or buyers willing to undertake a comprehensive refurbishment project.
Therefore, we give this property 5 / 10. *Disclaimer: This is our option and does constitute a recommendation or financial advice. Do your own research. *
- Price
- 8
- Condition
- 2
- Location
- 7
- Land
- 3
- Bedrooms
- 4
- Bathrooms
- 0
- Sqft (est)
- 682.69
The heatmap indicates the level of crime in the area. The color of the heatmap indicates the crime severity and recency.
Metrics Year-on-Year
- Average area value
- 174,500.00 £Decreased by 9.78 %
- Est sale value
- 323,595.06 £Increased by 120.47 %
- Average area rental value
- 983.00 £/moDecreased by 9.82 %
- Est letting value
- 1,365.38 £/moIncreased by 100.00 %
- Est rental Yield
- 6.76 %Unchanged by 0.00 %
- Crime Rate
- 40.00 %Unchanged by 0.00 %
Agent Activity
Auction House London created the listing.
Nearby Schools
| Name | Type | Ofsted | Distance |
|---|---|---|---|
| Dover College | Other Independent School | 0.19 KM | |
| Dover Grammar School For Girls | Community School | Outstanding | 0.49 KM |
| St Richard'S Catholic Primary School | Academy Converter | Good | 0.54 KM |
| Charlton Church Of England Primary School | Academy Sponsor Led | Good | 0.61 KM |
| St Edmund'S Catholic School | Academy Sponsor Led | Requires improvement | 0.75 KM |
Images
Nearby Streets
| Name | Average Price | Average Sqft | Distance |
|---|---|---|---|
| Wood Street | £ 210,000 | 0 | 0.00 KM |
| St. Edmunds Walk | £ 0 | 0 | 0.00 KM |
| Park Street | £ 335,000 | 0 | 0.00 KM |
| Edwards Road | £ 0 | 0 | 0.00 KM |
| Bridge Street | £ 0 | 0 | 0.00 KM |
Nearby Transport
| Name | NLC | TLC | Distance |
|---|---|---|---|
| Dover Priory | 5033 | DVP | 0.49 KM |
| Kearsney (Kent) | 5038 | KSN | 4.54 KM |
| Martin Mill | 5040 | MTM | 6.41 KM |
Nearby Listings
| Address | Price | Type | Score | Distance |
|---|---|---|---|---|
| 10 Maison Dieu Place, Dover, Kent, CT16 1DX | £ 110,000 | BUY | 5 / 10 | 0.00 KM |
| 10 Maison Dieu Place, Dover, Kent, CT16 1DX | £ 110,000 | BUY | 5 / 10 | 0.00 KM |
| 10 Maison Dieu Place, Dover, CT16 1DX | £ 100,000 | BUY | 5 / 10 | 0.00 KM |
| 10 Maison Dieu Place, Dover, Kent, CT16 1DX | £ 120,000 | BUY | 5 / 10 | 0.00 KM |
| Wood Street, Dover, Kent | £ 139,000 | BUY | Unknown | 0.03 KM |
Nearby Properties
| Address | Price | Distance |
|---|---|---|
| 6 Goodfellow Way | £ 125,000 | 0.06 KM |
| 3 Goodfellow Way | £ 126,500 | 0.06 KM |
| 21 Wood Street | £ 119,500 | 0.07 KM |
| 19 Wood Street | £ 185,000 | 0.07 KM |
| 4 Wood Street | £ 85,000 | 0.07 KM |