Aberdeen Road, London, N18
By Gravity Estates
£ 400,000
Reviews
3 out of 5 stars
Gravity Estates says ..
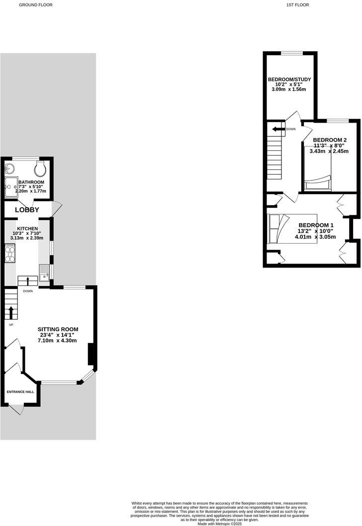
This mid-terrace Victorian house boasts three well-proportioned bedrooms, making it ideal for families or those seeking extra space and is in need of modernisation, making it a great opportunity for someone to make their own. Entering via the extended front porch, the inviting through lounge offe...
Property Oracle says ..
The property is a 3-bedroom terraced house located on Aberdeen Road in Edmonton Green, London. It is located within 1.5 KM of several train stations and within 1 KM of several schools. The average price per square foot in the area is £479. The average property price in the area is £341,429. The listing price for the property is £400,000. The photos suggest the property is in fair condition, but could benefit from some modernisation. The kitchen and bathroom appear functional but dated. The garden is a good size. Given the location, the condition of the property and the size of the garden, the listing price seems reasonable when compared to the average property price in the area.
Therefore, we give this property 6 / 10. *Disclaimer: This is our option and does constitute a recommendation or financial advice. Do your own research. *
- Price
- 6
- Condition
- 6
- Location
- 7
- Land
- 7
- Bedrooms
- 3
- Bathrooms
- 1
- Sqft (est)
- 724.95
The heatmap indicates the level of crime in the area. The color of the heatmap indicates the crime severity and recency.
Metrics Year-on-Year
- Average area value
- 341,429.00 £Increased by 11.44 %
- Est sale value
- 347,251.05 £Increased by 10.88 %
- Average area rental value
- 1,969.00 £/moIncreased by 14.41 %
- Est letting value
- 1,449.90 £/moUnchanged by 0.00 %
- Est rental Yield
- 6.92 %Increased by 2.67 %
- Crime Rate
- 4.00 %Unchanged by 0.00 %
Agent Activity
Gravity Estates created the listing.
Nearby Schools
| Name | Type | Ofsted | Distance |
|---|---|---|---|
| Raynham@Craigpark Childrens Centre | Children's Centre | 0.33 KM | |
| Raynham Children'S Centre | Children's Centre | 0.55 KM | |
| Raynham Primary School | Academy Converter | 0.55 KM | |
| Brettenham Primary School | Academy Converter | 0.56 KM | |
| Meridian Angel Primary School | Free Schools | Requires improvement | 0.66 KM |
Images
Nearby Streets
| Name | Average Price | Average Sqft | Distance |
|---|---|---|---|
| Upton Road | £ 0 | 0 | 0.00 KM |
| Glasgow Road | £ 289,950 | 0 | 0.00 KM |
| Brookside Road | £ 0 | 0 | 0.00 KM |
| Tamarind Mews | £ 0 | 0 | 0.00 KM |
| Vetchling Way | £ 0 | 0 | 0.00 KM |
Nearby Transport
| Name | NLC | TLC | Distance |
|---|---|---|---|
| Angel Road | 6909 | AGR | 0.84 KM |
| Meridian Water | 6599 | MRW | 0.85 KM |
| Silver Street | 6972 | SLV | 1.22 KM |
| Edmonton Green | 6941 | EDR | 1.34 KM |
| Northumberland Park | 6971 | NUM | 1.36 KM |
Nearby Listings
| Address | Price | Type | Score | Distance |
|---|---|---|---|---|
| Aberdeen Road, London, N18 | £ 400,000 | BUY | 6 / 10 | 0.00 KM |
| Aberdeen Road, Edmonton | £ 379,950 | BUY | Unknown | 0.01 KM |
| Aberdeen Road, NW10 | £ 1,250,000 | BUY | Unknown | 0.01 KM |
| Cavendish Road, Edmonton, London, N18 | £ 425,000 | BUY | 6 / 10 | 0.09 KM |
| Cavendish Road, Edmonton, N18 | £ 525,000 | BUY | 6 / 10 | 0.09 KM |
Nearby Properties
| Address | Price | Distance |
|---|---|---|
| 57 Aberdeen Road | £ 170,000 | 0.01 KM |
| 38 Aberdeen Road | £ 167,000 | 0.01 KM |
| 53 Aberdeen Road | £ 303,000 | 0.01 KM |
| 60 Aberdeen Road | £ 350,000 | 0.01 KM |
| 43 Aberdeen Road | £ 153,000 | 0.01 KM |