Howland Close, Eastbourne, East Sussex
LE

Howland Close, Eastbourne, East Sussex

By Leaders Waterside Properties Sales

£ 775,000

Reviews

3 out of 5 stars

Leaders Waterside Properties Sales says ..

Introducing this stunning modern detached 4-bedroom house located in a sought-after residential area. This luxurious property boasts a bright and spacious interior, perfect for a growing family. The house has been meticulously maintained and exudes a sophisticated and stylish atmosphere throughou...

Property Oracle says ..

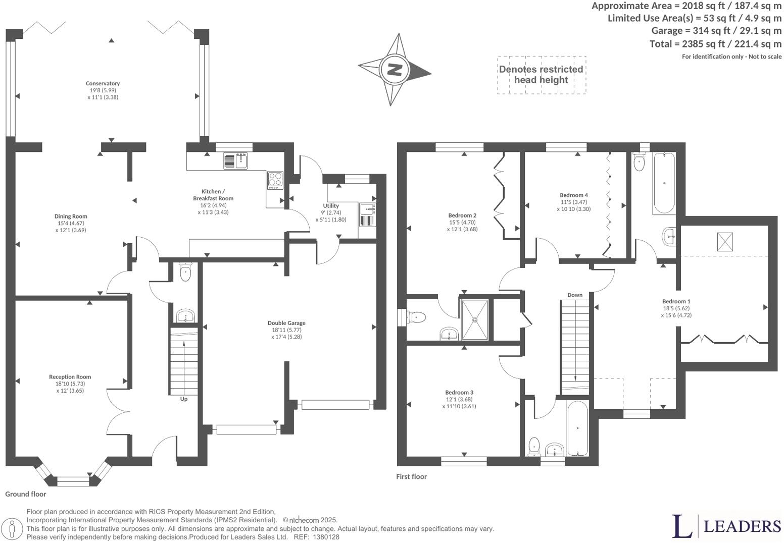
This is a substantial detached property located in the Sovereign Harbour area of Eastbourne. The house offers ample living space with four bedrooms and three bathrooms, making it suitable for families. The property benefits from a modern interior, a well-maintained garden, and a double garage. While the list price is above the local average, the size and features of the property may justify the cost. The location offers a balance between residential tranquility and access to local amenities and the coast.

Therefore, we give this property 7 / 10. *Disclaimer: This is our option and does constitute a recommendation or financial advice. Do your own research. *

Price
6
Condition
8
Location
7
Land
7
Bedrooms
4
Bathrooms
3
Sqft (est)
2,385.00

The heatmap indicates the level of crime in the area. The color of the heatmap indicates the crime severity and recency.

Metrics Year-on-Year

Average area value
354,423.00 £
Increased by 4.54 %
from 339,040.00 £
Est sale value
1,187,730.00 £
Increased by 55.14 %
from 765,585.00 £
Average area rental value
1,358.00 £/mo
Decreased by 3.21 %
from 1,403.00 £/mo
Est letting value
2,385.00 £/mo
Unchanged by 0.00 %
from 2,385.00 £/mo
Est rental Yield
4.60 %
Decreased by 7.44 %
from 4.97 %
Crime Rate
4.00 %
Unchanged by 0.00 %
from 4.00 %

Agent Activity

  • Leaders Waterside Properties Sales created the listing.

Nearby Schools

NameTypeOfstedDistance
St Catherine'S CollegeAcademy ConverterGood1.41 KM
The Haven Voluntary Aided Cofe/Methodist Primary SchoolVoluntary Aided SchoolGood1.45 KM
Langney Primary AcademyAcademy Converter1.70 KM
Pevensey And Westham Cofe Primary SchoolVoluntary Controlled SchoolGood2.16 KM
Tollgate Community Junior SchoolCommunity SchoolGood2.57 KM

Images

1380128-36-6911fc... 1380128-33-6911fb... 1380128-42-6911fd... 1380128-25-6911f9... 1380128-23-6911f9... 1380128-31-6911fa... 1380128-1-6911f7d... 1380128-2-6911f7e... 1380128-15-6911f8... 1380128-14-6911f8... 1380128-13-6911f8... 1380128-10-6911f8... 1380128-7-6911f83... 1380128-12-6911f8... 1380128-43-6911fd... 1380128-17-6911f8... 1380128-19-6911f9... 1380128-27-6911f9... 1380128-28-6911fa... 1380128-24-6911f9... 1380128-21-6911f9... 1380128-20-6911f9... 1380128-40-6911fd... 1380128-37-6911fd... 1380128-39-6911fd... 1380128-9-6911f84... 1380128-4-6911f81... 1380128-38-6911fd... 1380128-6-6911f82...

Nearby Streets

NameAverage PriceAverage SqftDistance
Saint Lawrence Place £ 350,00000.00 KM
Saint Lawrence Way £ 000.00 KM
Saint Lawrence Mews £ 000.00 KM
Silver Strand £ 000.00 KM
The Waterfront £ 000.00 KM

Nearby Transport

NameNLCTLCDistance
Pevensey And Westham5461PEV2.08 KM
Pevensey Bay5462PEB2.62 KM
Hampden Park (Sussex)5450HMD5.60 KM
Eastbourne5448EBN6.25 KM
Normans Bay5460NSB7.29 KM

Nearby Listings

AddressPriceTypeScoreDistance
Howland Close, Eastbourne, East Sussex £ 775,000BUY7 / 100.00 KM
Christchurch Place,Eastbourne,BN23 5AP £ 229,950BUY6 / 100.10 KM
Christchurch Place, Eastbourne £ 400,000BUY7 / 100.11 KM
Christchurch Place, Eastbourne, East Sussex, BN23 £ 300,000BUY7 / 100.11 KM
Christchurch Place, Eastbourne £ 350,000BUY7 / 100.11 KM

Nearby Properties

AddressPriceDistance
2 Howland Close £ 455,0000.06 KM
6 Howland Close £ 340,0000.06 KM
4 Howland Close £ 512,5000.06 KM
1 Howland Close £ 260,0000.06 KM
14 Christchurch Place £ 400,0000.06 KM