NO
Poppy Street, Partington, M31
By Northwood
£ 240,000
Northwood says ..
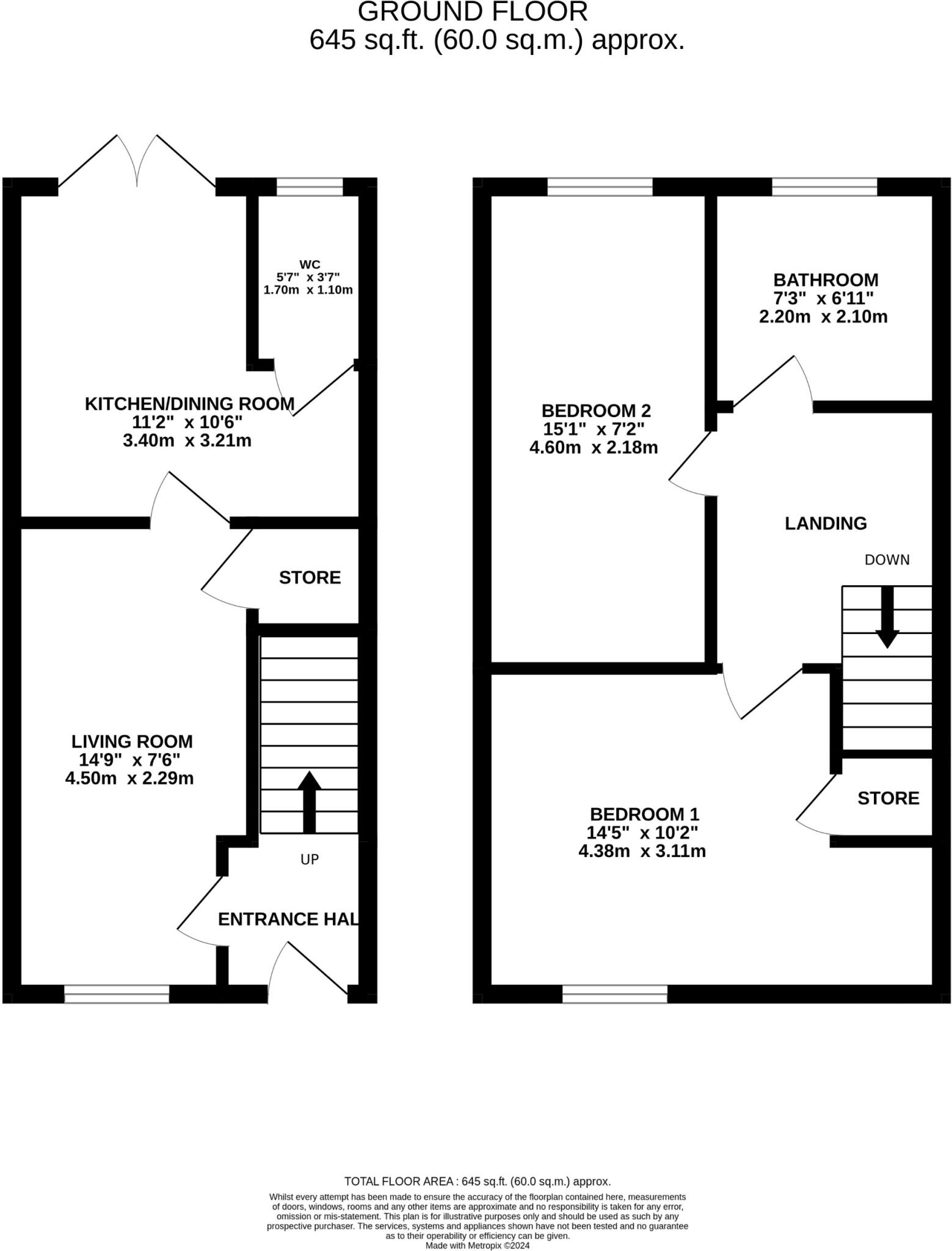
Modern 2-bed terrace in Partington (M31 4TB), built in 2022. Features a bright lounge, stylish kitchen with appliances, two double bedrooms, and a modern bathroom. Enjoy a private garden and off-road parking. Close to schools, amenities, and transport links. Ideal for families or first-time bu...
- Bedrooms
- 2
- Bathrooms
- 1
The heatmap indicates the level of crime in the area. The color of the heatmap indicates the crime severity and recency.
Metrics Year-on-Year
- Average area value
- 511,667.00 £Decreased by 1.51 %
- Average area rental value
- 1,296.00 £/moDecreased by 23.76 %
- Est rental Yield
- 3.04 %Decreased by 22.65 %
- Crime Rate
- 0.00 %
from 519,509.00 £
from 1,700.00 £/mo
from 3.93 %
from 0.00 %
Agent Activity
Northwood created the listing.
Nearby Schools
| Name | Type | Ofsted | Distance |
|---|---|---|---|
| Broadoak School | Academy Converter | Good | 0.51 KM |
| Fairfield House School | Other Independent Special School | Good | 0.73 KM |
| Our Lady Of Lourdes Catholic School | Voluntary Aided School | Good | 0.85 KM |
| Forest Gate Academy | Academy Sponsor Led | Good | 0.95 KM |
| Partington Central Academy | Academy Converter | Good | 1.03 KM |
Images
Nearby Streets
| Name | Average Price | Average Sqft | Distance |
|---|---|---|---|
| Poppy Street | £ 0 | 0 | 0.00 KM |
| Rutland Road | £ 180,000 | 0 | 0.00 KM |
| Northumberland Road | £ 0 | 0 | 0.00 KM |
| Wiltshire Road | £ 175,000 | 0 | 0.00 KM |
| Coppicewood Close | £ 250,000 | 0 | 0.00 KM |
Nearby Transport
| Name | NLC | TLC | Distance |
|---|---|---|---|
| Irlam | 2817 | IRL | 2.54 KM |
| Glazebrook | 2301 | GLZ | 3.40 KM |
| Flixton | 2935 | FLI | 6.57 KM |
| Chassen Road | 2947 | CSR | 8.23 KM |
| Urmston | 2938 | URM | 9.76 KM |
Nearby Listings
| Address | Price | Type | Score | Distance |
|---|---|---|---|---|
| Poppy Street, Partington, M31 | £ 240,000 | BUY | Unknown | 0.00 KM |
| Poppy Street, Partington, Manchester, Greater Manchester, M31 | £ 202,500 | BUY | 7 / 10 | 0.02 KM |
| Poppy Street, Partington, Manchester, M31 | £ 270,000 | BUY | 7 / 10 | 0.02 KM |
| Partington, Manchester, M31 | £ 120,000 | BUY | 7 / 10 | 0.02 KM |
| Daffodil Close, Partington, Manchester, Greater Manchester, M31 | £ 270,000 | BUY | 7 / 10 | 0.09 KM |
Nearby Properties
| Address | Price | Distance |
|---|---|---|
| 56 Warburton Lane | £ 235,000 | 0.21 KM |
| 52 Warburton Lane | £ 206,000 | 0.21 KM |
| 54 Warburton Lane | £ 99,500 | 0.21 KM |
| 60 Warburton Lane | £ 135,000 | 0.21 KM |
| 58 Warburton Lane | £ 148,000 | 0.21 KM |