TKI Property Group says ..
Investment Opportunity – 2 Bedroom Apartment in Hull City Centre – 8% Yield – Tenant in Situ – Secure Parking Included An excellent opportunity for investors! This modern 2-bedroom apartment is located in the heart of Hull City Centre, offering immediate rental income with a tenant in si...
Property Oracle says ..
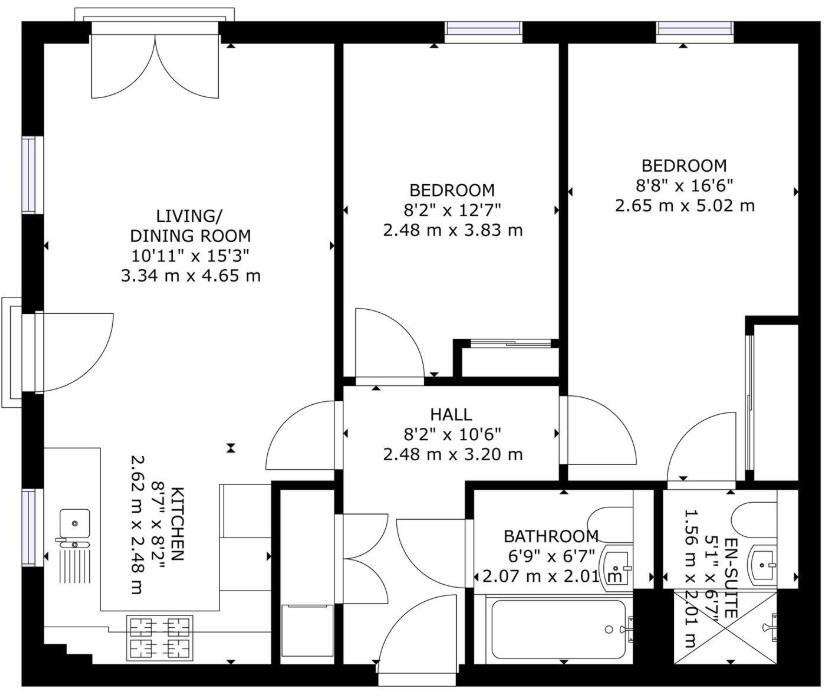
This property is a 2-bedroom, 2-bathroom apartment located in the St Andrew’s & Docklands area of Hull, East Riding of Yorkshire. The apartment is modern, with a stylish interior and appears to be in excellent condition based on the provided images. While the plot size is 0 sqft, its location offers proximity to various amenities. The list price of £150,000 is slightly higher than the average price of £109,651 for the area, but considering the modern condition and proximity to schools, transportation, and other points of interest, it may represent reasonable value. However, more detailed information on the property’s specific features and the local market would be needed to fully assess the price.
Therefore, we give this property 6 / 10. *Disclaimer: This is our option and does constitute a recommendation or financial advice. Do your own research. *
- Price
- 7
- Condition
- 10
- Location
- 8
- Land
- 1
- Bedrooms
- 2
- Bathrooms
- 2
- Sqft (est)
- 654.45
The heatmap indicates the level of crime in the area. The color of the heatmap indicates the crime severity and recency.
Metrics Year-on-Year
- Average area value
- 57,866.00 £Decreased by 59.73 %
- Est sale value
- 63,481.65 £Decreased by 43.93 %
- Average area rental value
- 750.00 £/moDecreased by 8.98 %
- Est letting value
- 654.45 £/mo
- Est rental Yield
- 15.55 %Increased by 126.02 %
- Crime Rate
- 13.00 %Unchanged by 0.00 %
Agent Activity
TKI Property Group created the listing.
Nearby Schools
| Name | Type | Ofsted | Distance |
|---|---|---|---|
| Hull College | Further Education | Requires improvement | 0.48 KM |
| Hull Trinity House Academy | Academy Converter | Good | 0.68 KM |
| Victoria Dock Primary School | Academy Converter | 0.74 KM | |
| Ron Dearing Utc | University Technical College | Outstanding | 0.89 KM |
| Tlg Hull | Other Independent School | 1.09 KM |
Images
Nearby Streets
| Name | Average Price | Average Sqft | Distance |
|---|---|---|---|
| Vicar Lane | £ 0 | 0 | 0.00 KM |
| Hull Fruit Market | £ 0 | 0 | 0.00 KM |
| Hanover Square | £ 0 | 0 | 0.00 KM |
| Trinity Square | £ 0 | 0 | 0.00 KM |
| King Street | £ 0 | 0 | 0.00 KM |
Nearby Transport
| Name | NLC | TLC | Distance |
|---|---|---|---|
| Hull | 8126 | HUL | 1.57 KM |
| New Holland | 6209 | NHL | 5.49 KM |
| Goxhill | 6206 | GOX | 7.32 KM |
| Barrow Haven | 6212 | BAV | 8.42 KM |
| Cottingham | 8056 | CGM | 9.36 KM |
Nearby Listings
| Address | Price | Type | Score | Distance |
|---|---|---|---|---|
| Liberty Lane, Hull | £ 150,000 | BUY | 6 / 10 | 0.00 KM |
| Liberty Lane, Hull | £ 120,000 | BUY | 5 / 10 | 0.00 KM |
| Liberty Lane, Hull | £ 150,000 | BUY | 6 / 10 | 0.00 KM |
| Liberty House, Liberty Lane, HU1 | £ 130,000 | BUY | 7 / 10 | 0.05 KM |
| Liberty Lane Hull HU1 1AY | £ 140,000 | BUY | 6 / 10 | 0.05 KM |
Nearby Properties
| Address | Price | Distance |
|---|---|---|
| Samman House | £ 90,000 | 0.27 KM |
| 12 Idas Close | £ 115,000 | 0.47 KM |
| 24 Idas Close | £ 138,000 | 0.47 KM |
| 25 Idas Close | £ 99,950 | 0.47 KM |
| 15 Idas Close | £ 166,000 | 0.47 KM |