Milton Stone says ..
A unique opportunity to acquire a fabulous 4-bedroom garden maisonette in this beautiful period building in the heart of Holland Park.
Property Oracle says ..
Ladbroke Road is located in the Norland area of Kensington and Chelsea, a highly desirable and affluent area of London. The property benefits from being within proximity to excellent schools such as Holland Park School (rated Outstanding by Ofsted), and several others rated ‘Good’. Transport links are also relatively convenient, with Kensington (Olympia) Overground station approximately 1.29km away. The area is known for its charming streets and proximity to Holland Park, offering green space and recreational opportunities.
Based on the provided photographs, the property appears to be in excellent condition. It is well-maintained, with high-quality finishes and fixtures evident throughout. The interior is presented in a stylish and updated manner, suggesting minimal need for repair or renovation. The garden, also visible in the photographs, is a significant feature, adding to the overall appeal and value of the property.
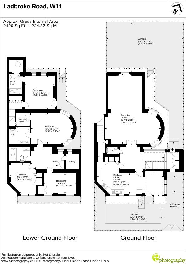
The property boasts a sizeable plot of 2,420 sqft, providing ample outdoor space, which is a rare and valuable asset in this part of London. The presence of a garden, as shown in the photos, is a considerable advantage.
Considering the property’s location in a prime area of London, its excellent condition, generous plot size, and the high average price per sqft in the area (£1,896), the list price of £4,950,000 appears to be in line with, or potentially slightly below, market expectations for a property of this size and quality. The average price for properties in the area is £2,843,529, and while this property is significantly more expensive, the larger size and superior condition likely justify the higher price. However, a detailed comparative market analysis of similar properties would provide a more definitive conclusion on the price rationale.
Therefore, we give this property 9 / 10. *Disclaimer: This is our option and does constitute a recommendation or financial advice. Do your own research. *
- Price
- 8
- Condition
- 9
- Location
- 10
- Land
- 9
- Bedrooms
- 4
- Bathrooms
- 0
- Sqft (est)
- 1,587.00
- Lot (est)
- 2,420.00
The heatmap indicates the level of crime in the area. The color of the heatmap indicates the crime severity and recency.
Metrics Year-on-Year
- Average area value
- 2,325,063.00 £Decreased by 8.52 %
- Est sale value
- 2,881,992.00 £Decreased by 7.30 %
- Average area rental value
- 4,081.00 £/moIncreased by 2.46 %
- Est letting value
- 4,761.00 £/moUnchanged by 0.00 %
- Est rental Yield
- 2.11 %Increased by 12.23 %
- Crime Rate
- 3.00 %Unchanged by 0.00 %
Agent Activity
Milton Stone created the listing.
Nearby Schools
| Name | Type | Ofsted | Distance |
|---|---|---|---|
| Holland Park School | Academy Converter | Outstanding | 0.57 KM |
| Sial | Other Independent School | Good | 0.71 KM |
| St Clement And St James Cofe Primary School | Voluntary Aided School | Good | 0.72 KM |
| Southbank International School Kensington | Other Independent School | 0.75 KM | |
| Colville Primary School | Community School | Outstanding | 0.76 KM |
Images
Nearby Streets
| Name | Average Price | Average Sqft | Distance |
|---|---|---|---|
| St. Johns Gardens | £ 0 | 0 | 0.00 KM |
| Clarendon Cross | £ 3,650,000 | 0 | 0.00 KM |
| Rosmead Road | £ 0 | 0 | 0.00 KM |
| Blenheim Crescent | £ 0 | 0 | 0.00 KM |
| Ledbury Mews West | £ 0 | 0 | 0.00 KM |
Nearby Transport
| Name | NLC | TLC | Distance |
|---|---|---|---|
| Kensington (Olympia) | 3092 | KPA | 1.29 KM |
| Shepherd'S Bush | 9587 | SPB | 1.44 KM |
| West Brompton | 8875 | WBP | 2.56 KM |
| Queens Park (London) | 1419 | QPW | 2.88 KM |
| Paddington | 3087 | PAD | 3.30 KM |
Nearby Listings
| Address | Price | Type | Score | Distance |
|---|---|---|---|---|
| Ladbroke Road, London | £ 4,950,000 | BUY | 9 / 10 | 0.00 KM |
| Ladbroke Road, Notting Hill, London, W11, United Kingdom | £ 9,500,000 | BUY | Unknown | 0.02 KM |
| Boyne Terrace Mews, Holland Park, London, W11 | £ 2,999,999 | BUY | Unknown | 0.03 KM |
| Boyne Terrace Mews, Holland Park, London, W11 | £ 2,999,999 | BUY | Unknown | 0.03 KM |
| Boyne Terrace Mews, London, W11 | £ 2,999,999 | BUY | 8 / 10 | 0.04 KM |
Nearby Properties
| Address | Price | Distance |
|---|---|---|
| 117 Ladbroke Road | £ 1,900,000 | 0.02 KM |
| 68 Holland Park Avenue | £ 1,935,000 | 0.08 KM |
| 48 Holland Park Avenue | £ 1,875,000 | 0.10 KM |
| 46 Holland Park Avenue | £ 3,700,000 | 0.10 KM |
| 56 Holland Park Avenue | £ 2,050,000 | 0.10 KM |