Longstaff says ..
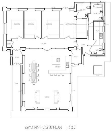
** Methodist Church with Ancillary Areas - Planning Consent granted for conversion to a 4-bedroom residential property - Peaceful rural location in the centre of Gosberton Clough - Large plot area to the west and north with fruit trees - Site area approx. 3,423m² (0.80 acres) **
Property Oracle says ..
The property is a barn conversion located in Gosberton Clough, Lincolnshire. The asking price is £299,500. The property appears to be in good condition internally, with what seems to be recently painted walls and a well-maintained wooden floor. Externally, the brickwork is in good condition, however the surrounding land is overgrown and unkempt. This suggests that while the interior has been renovated, some external maintenance is needed. The property benefits from a sizable plot of land, as shown in the provided land registry map. The extent of the land is significant, adding to the property’s overall value. Considering the average house price in the area is £277,738, and the lack of readily available comparable properties with similar sqft data, it’s difficult to definitively assess the list price’s reasonableness per sqft. However, given the size of the land and the apparent recent internal renovations, the £299,500 asking price could potentially be justified, although further investigation into comparable barn conversions in the area would be beneficial. The presence of a nearby primary school (Clough And Risegate Community Primary School) within 1km adds to the property’s appeal.
Therefore, we give this property 7 / 10. *Disclaimer: This is our option and does constitute a recommendation or financial advice. Do your own research. *
- Price
- 7
- Condition
- 8
- Location
- 7
- Land
- 9
- Bedrooms
- 0
- Bathrooms
- 0
The heatmap indicates the level of crime in the area. The color of the heatmap indicates the crime severity and recency.
Metrics Year-on-Year
- Average area value
- 291,975.00 £Decreased by 0.13 %
- Average area rental value
- 650.00 £/moDecreased by 26.39 %
- Est rental Yield
- 2.67 %Decreased by 26.24 %
- Crime Rate
- 60.00 %Unchanged by 0.00 %
Agent Activity
Longstaff created the listing.
Nearby Schools
| Name | Type | Ofsted | Distance |
|---|---|---|---|
| Clough And Risegate Community Primary School | Community School | Good | 1.00 KM |
| St Bartholomews Cofe Primary School | Voluntary Controlled School | Good | 5.14 KM |
| The Donington Cowley Endowed Primary School | Voluntary Controlled School | Good | 6.39 KM |
| The Thomas Cowley High School | Academy Converter | Good | 7.01 KM |
| Quadring Cowley & Brown'S Primary School | Voluntary Controlled School | Good | 7.03 KM |
Images
Nearby Listings
| Address | Price | Type | Score | Distance |
|---|---|---|---|---|
| Beck Bank, Gosberton Clough | £ 299,500 | BUY | 7 / 10 | 0.00 KM |
| Clough Road, Gosberton Clough | £ 135,000 | BUY | 5 / 10 | 0.06 KM |
| Riverside, Beck Bank, Gosberton Clough | £ 234,995 | BUY | 7 / 10 | 0.61 KM |
| Broad Drove, Gosberton Clough, Spalding | £ 700,000 | BUY | 8 / 10 | 0.96 KM |
| Chopdike Drove, Spalding, PE11 | £ 590,000 | BUY | 7 / 10 | 1.00 KM |
Nearby Properties
| Address | Price | Distance |
|---|---|---|
| Blossom Hill | £ 60,000 | 0.48 KM |
| Westdale | £ 357,300 | 0.66 KM |
| Allendale | £ 325,000 | 0.66 KM |
| The Horseshoes | £ 270,000 | 0.66 KM |
| Sherwoods | £ 173,000 | 1.02 KM |