Greggs Avenue, Chapel-En-Le-Frith, High Peak
By Gascoigne Halman
£ 265,000
Reviews
3 out of 5 stars
Gascoigne Halman says ..
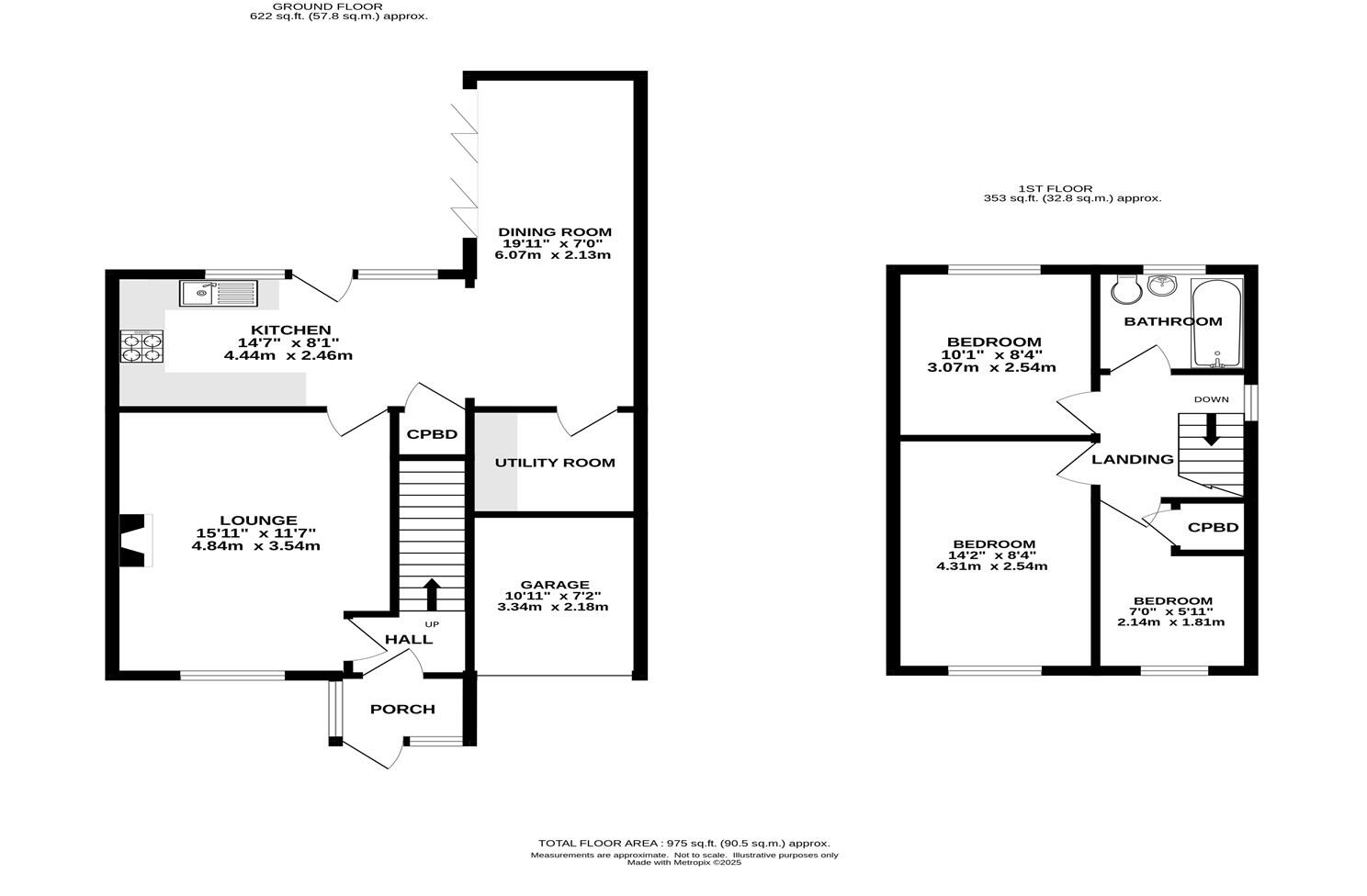
A beautifully presented and extended three bedroom semi detached home in a popular location. The property offers impressive living space including a specious lounge and kitchen dining room with bi-folding doors opening onto the garden. Both the kitchen and bathroom have been equipped with contemp...
Property Oracle says ..
The property is a 3-bedroom semi-detached house located in Chapel-en-le-Frith, Derbyshire. It benefits from a good-sized garden and has recently undergone some modernisation, particularly in the kitchen area which appears modern and well-equipped. The property also has a garage. However, other areas of the house show signs of needing some updating, such as the bathrooms and some of the bedrooms. The location is convenient, with a nearby high school and other amenities. The price seems slightly below average for the area, considering the size and features.
Therefore, we give this property 7 / 10. *Disclaimer: This is our option and does constitute a recommendation or financial advice. Do your own research. *
- Price
- 7
- Condition
- 7
- Location
- 8
- Land
- 8
- Bedrooms
- 3
- Bathrooms
- 1
- Sqft (est)
- 622.00
The heatmap indicates the level of crime in the area. The color of the heatmap indicates the crime severity and recency.
Metrics Year-on-Year
- Average area value
- 334,167.00 £Increased by 24.23 %
- Est sale value
- 159,854.00 £Decreased by 19.44 %
- Average area rental value
- 1,252.00 £/moIncreased by 4.33 %
- Est letting value
- 0.00 £/moDecreased by 100.00 %
- Est rental Yield
- 4.50 %Decreased by 15.89 %
- Crime Rate
- 5.00 %Unchanged by 0.00 %
Agent Activity
Gascoigne Halman created the listing.
Nearby Schools
| Name | Type | Ofsted | Distance |
|---|---|---|---|
| Chapel-En-Le-Frith High School | Community School | Good | 0.58 KM |
| Chapel-En-Le-Frith Cofe Vc Primary School | Voluntary Controlled School | Good | 2.14 KM |
| Chinley Primary School | Foundation School | Good | 2.26 KM |
| Combs Infant School | Community School | Outstanding | 2.29 KM |
| Peak School | Academy Special Converter | 2.39 KM |
Images
Nearby Streets
| Name | Average Price | Average Sqft | Distance |
|---|---|---|---|
| Greggs Avenue | £ 399,950 | 0 | 0.00 KM |
| Mellor Lane | £ 650,000 | 0 | 0.00 KM |
| Spencer Road | £ 0 | 0 | 0.00 KM |
| Heath Lane | £ 0 | 0 | 0.00 KM |
| St Ann's Close | £ 0 | 0 | 0.00 KM |
Nearby Transport
| Name | NLC | TLC | Distance |
|---|---|---|---|
| Chapel-En-Le-Frith | 2762 | CEF | 1.22 KM |
| Chinley | 2823 | CLY | 2.99 KM |
| Dove Holes | 2766 | DVH | 4.67 KM |
| Whaley Bridge | 2772 | WBR | 6.45 KM |
| Buxton | 2946 | BUX | 6.68 KM |
Nearby Listings
| Address | Price | Type | Score | Distance |
|---|---|---|---|---|
| Greggs Avenue, Chapel-En-Le-Frith, High Peak | £ 265,000 | BUY | 7 / 10 | 0.00 KM |
| Downlee Close, Chapel-En-Le-Frith, SK23 | £ 675,000 | BUY | Unknown | 0.04 KM |
| Downlee Close, Chapel-En-Le-Frith, SK23 | £ 750,000 | BUY | 7 / 10 | 0.09 KM |
| Downlee Close, Chapel-En-Le-Frith, High Peak | £ 695,000 | BUY | 7 / 10 | 0.09 KM |
| Greggs Avenue, Chapel-En-Le-Frith, SK23 | £ 250,000 | BUY | Unknown | 0.10 KM |
Nearby Properties
| Address | Price | Distance |
|---|---|---|
| 7 Greggs Avenue | £ 275,000 | 0.05 KM |
| 13 Greggs Avenue | £ 38,000 | 0.05 KM |
| 14 Greggs Avenue | £ 175,000 | 0.05 KM |
| 11 Greggs Avenue | £ 150,000 | 0.05 KM |
| 37 Greggs Avenue | £ 159,950 | 0.05 KM |