mile... says ..
Welcome to Portobello Road, great garden apartment for sale
Property Oracle says ..
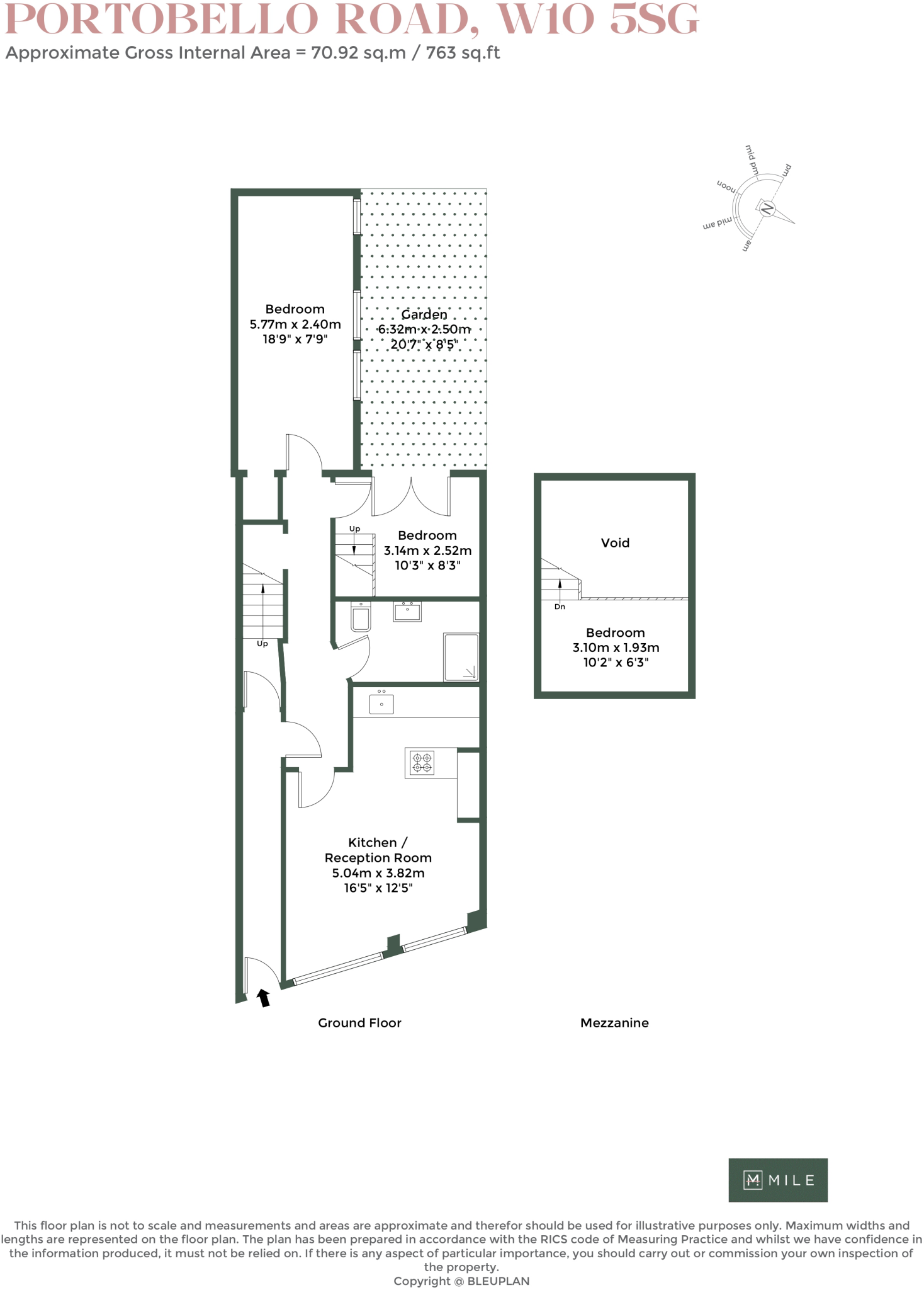
The property is located on Portobello Road in the Golborne area of Kensington and Chelsea, a highly desirable location in London. The area is known for its vibrant market, diverse community, and proximity to Notting Hill. Several highly-rated primary schools are within a short distance, including St Thomas’ Cofe Primary School and Bevington Primary School, both rated as Outstanding by Ofsted. Public transportation links are also relatively close, with several Underground and Overground stations within a 2km radius. This contributes to a high location score. Based on the provided images, the property appears to be in fair condition. While the bathroom seems recently renovated and modern, other areas of the property show signs of needing some updating and modernisation. The kitchen, in particular, looks dated and could benefit from refurbishment. The overall cleanliness and organization of the property also leave room for improvement. The presence of exposed pipes and visible repairs also suggests some maintenance may be required. The property includes a small, somewhat overgrown rear garden, which is a positive feature in a densely populated area like London. While not extensive, it still offers some outdoor space. The list price of £650,000 for a 645 sq ft property with a 763 sq ft plot in this area is difficult to assess definitively without more detailed information on comparable recent sales. The lack of sqft data in nearby listings prevents a precise price per sqft comparison. However, considering the property’s condition and the need for potential renovations, the price might be considered slightly high compared to some other properties in the area, but still within a reasonable range for the location. More comparative data would be needed for a more precise evaluation.
Therefore, we give this property 6 / 10. *Disclaimer: This is our option and does constitute a recommendation or financial advice. Do your own research. *
- Price
- 7
- Condition
- 6
- Location
- 9
- Land
- 5
- Bedrooms
- 2
- Bathrooms
- 1
- Sqft (est)
- 645.39
- Lot (est)
- 763.00
The heatmap indicates the level of crime in the area. The color of the heatmap indicates the crime severity and recency.
Metrics Year-on-Year
- Average area value
- 767,500.00 £Decreased by 1.86 %
- Est sale value
- 813,191.40 £Increased by 43.51 %
- Average area rental value
- 2,389.00 £/moDecreased by 10.82 %
- Est letting value
- 1,936.17 £/moUnchanged by 0.00 %
- Est rental Yield
- 3.74 %Decreased by 9.00 %
- Crime Rate
- 6.00 %Unchanged by 0.00 %
Agent Activity
mile... created the listing.
Nearby Schools
| Name | Type | Ofsted | Distance |
|---|---|---|---|
| The Lloyd Williamson School Foundation | Other Independent School | Inadequate | 0.03 KM |
| Saint Mary'S Catholic Primary School | Voluntary Aided School | Good | 0.33 KM |
| St Thomas' Cofe Primary School | Voluntary Aided School | Outstanding | 0.34 KM |
| Instituto Espanol Canada Blanch | Other Independent School | 0.35 KM | |
| Bevington Primary School | Community School | Outstanding | 0.38 KM |
Images
Nearby Streets
| Name | Average Price | Average Sqft | Distance |
|---|---|---|---|
| St Charles Square | £ 700,000 | 0 | 0.00 KM |
| East Row | £ 415,000 | 0 | 0.00 KM |
| St Joseph's Close | £ 0 | 0 | 0.00 KM |
| Kensal Road | £ 475,000 | 0 | 0.00 KM |
| Westway | £ 0 | 0 | 0.00 KM |
Nearby Transport
| Name | NLC | TLC | Distance |
|---|---|---|---|
| Queens Park (London) | 1419 | QPW | 1.50 KM |
| Kensal Rise | 1448 | KNR | 1.67 KM |
| Kensal Green | 1447 | KNL | 1.77 KM |
| Shepherd'S Bush | 9587 | SPB | 2.00 KM |
| Brondesbury Park | 1438 | BSP | 2.07 KM |
Nearby Listings
| Address | Price | Type | Score | Distance |
|---|---|---|---|---|
| Portobello Road, London W10 | £ 1,150,000 | BUY | 6 / 10 | 0.00 KM |
| Portobello Road, London W10 | £ 650,000 | BUY | 6 / 10 | 0.00 KM |
| Portobello Road, London W10 | £ 1,800,000 | BUY | 5 / 10 | 0.02 KM |
| The Auria, Portobello Square, W10 | £ 1,530,000 | BUY | 6 / 10 | 0.05 KM |
| The Auria, Portobello Square, W10 | £ 695,000 | BUY | 6 / 10 | 0.05 KM |
Nearby Properties
| Address | Price | Distance |
|---|---|---|
| 15 Bonchurch Road | £ 455,000 | 0.09 KM |
| 8e Bonchurch Road | £ 350,000 | 0.09 KM |
| 2 Bonchurch Road | £ 335,000 | 0.09 KM |
| 24 Bonchurch Road | £ 452,501 | 0.09 KM |
| 9 Bonchurch Road | £ 226,000 | 0.09 KM |