Palmers Field Avenue, Chichester, PO19 6GT
By McCarthy Stone
£ 300,000
Reviews
3 out of 5 stars
McCarthy Stone says ..
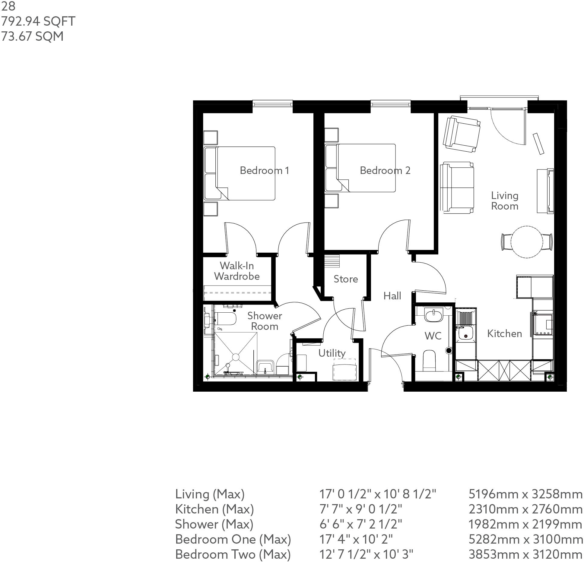
Easy living meets elegant design. Apartment 28 is a beautiful apartment with stunning contemporary kitchen and bathroom plus access to large, landscaped gardens.
Property Oracle says ..
This is a modern, two-bedroom retirement property located in Chichester Central. The property is in excellent condition and benefits from communal gardens and a patio area. It’s located close to local amenities, including the Chichester train station and local schools. The property is listed at £300,000, which is slightly below the average price for the area.
Therefore, we give this property 7 / 10. *Disclaimer: This is our option and does constitute a recommendation or financial advice. Do your own research. *
- Price
- 7
- Condition
- 9
- Location
- 7
- Land
- 5
- Bedrooms
- 2
- Bathrooms
- 0
- Sqft (est)
- 606.20
The heatmap indicates the level of crime in the area. The color of the heatmap indicates the crime severity and recency.
Metrics Year-on-Year
- Average area value
- 311,406.00 £Decreased by 28.23 %
- Est sale value
- 292,188.40 £Increased by 10.55 %
- Average area rental value
- 1,257.00 £/moDecreased by 21.73 %
- Est letting value
- 606.20 £/moUnchanged by 0.00 %
- Est rental Yield
- 4.84 %Increased by 9.01 %
- Crime Rate
- 28.00 %Unchanged by 0.00 %
Agent Activity
McCarthy Stone created the listing.
Nearby Schools
| Name | Type | Ofsted | Distance |
|---|---|---|---|
| The Prebendal School | Other Independent School | 0.58 KM | |
| St Richard'S Catholic Primary School | Voluntary Aided School | Good | 0.59 KM |
| St. Joseph'S Cofe Junior School | Academy Sponsor Led | Requires improvement | 0.65 KM |
| St. Joseph'S Infant School | Academy Converter | 0.73 KM | |
| University Of Chichester | Higher Education Institutions | 0.75 KM |
Images
Nearby Streets
| Name | Average Price | Average Sqft | Distance |
|---|---|---|---|
| St Mary's Garden | £ 0 | 0 | 0.00 KM |
| Crooked 'S' | £ 0 | 0 | 0.00 KM |
| Baffins Court | £ 0 | 0 | 0.00 KM |
| St Richard's Walk | £ 0 | 0 | 0.00 KM |
| Church Square | £ 475,000 | 0 | 0.00 KM |
Nearby Transport
| Name | NLC | TLC | Distance |
|---|---|---|---|
| Chichester | 5255 | CCH | 0.84 KM |
| Fishbourne (Sussex) | 5261 | FSB | 4.19 KM |
| Bosham | 5254 | BOH | 7.78 KM |
Nearby Listings
| Address | Price | Type | Score | Distance |
|---|---|---|---|---|
| Palmers Field Avenue, Chichester, PO19 6GT | £ 475,000 | BUY | 6 / 10 | 0.00 KM |
| Palmers Field Avenue, Chichester, PO19 6GT | £ 390,000 | BUY | Unknown | 0.00 KM |
| Palmers Field Avenue, Chichester, PO19 6GT | £ 300,000 | BUY | 7 / 10 | 0.00 KM |
| Palmers Field Avenue, Chichester, PO19 6GT | £ 243,750 | BUY | 7 / 10 | 0.00 KM |
| Palmers Field Avenue, Chichester, PO19 6GT | £ 315,000 | BUY | 6 / 10 | 0.00 KM |
Nearby Properties
| Address | Price | Distance |
|---|---|---|
| 21 St Martins Square | £ 1,200,000 | 0.02 KM |
| 8 St Martins Square | £ 645,000 | 0.02 KM |
| 8a St Martins Square | £ 735,827 | 0.02 KM |
| 7 St Martins Square | £ 525,000 | 0.02 KM |
| 4a St Martins Square | £ 270,000 | 0.03 KM |