Clyde Drive, Bellshill, ML4
By Lanarkshire Law Estate Agents Limited
£ 135,000
Reviews
3 out of 5 stars
Lanarkshire Law Estate Agents Limited says ..
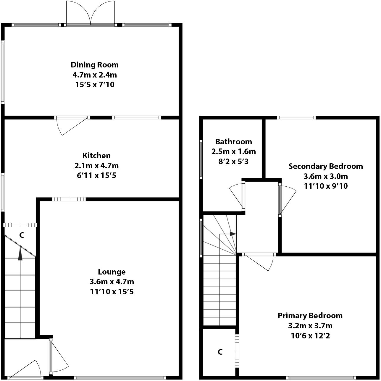
17 Clyde Drive, Mossend – Extended 2-Bedroom Semi-Detached Home Situated in a highly sought-after area of Mossend, this beautifully extended two-bedroom semi-detached property is just a short walk from the town centre and
Property Oracle says ..
This property is a 2 bedroom semi-detached house located in Bellshill, North Lanarkshire. The property benefits from a modern kitchen and conservatory extension. There is also a garden to the rear. While the property is in good condition and well presented, the average house price in the area is significantly higher than the list price of £135,000. Nearby properties of similar type are listed at a higher price point. The proximity to several train stations is a positive aspect for commuters. However, information on nearby schools is not available.
Therefore, we give this property 6 / 10. *Disclaimer: This is our option and does constitute a recommendation or financial advice. Do your own research. *
- Price
- 4
- Condition
- 8
- Location
- 6
- Land
- 7
- Bedrooms
- 2
- Bathrooms
- 1
- Sqft (est)
- 696.53
The heatmap indicates the level of crime in the area. The color of the heatmap indicates the crime severity and recency.
Metrics Year-on-Year
- Average area value
- 204,776.00 £Decreased by 22.85 %
- Est sale value
- 218,013.89 £Increased by 70.11 %
- Average area rental value
- 638.00 £/moDecreased by 23.32 %
- Est letting value
- 0.00 £/mo
- Est rental Yield
- 3.74 %Decreased by 0.53 %
- Crime Rate
- 0.00 %
Agent Activity
Lanarkshire Law Estate Agents Limited created the listing.
Images
Nearby Streets
| Name | Average Price | Average Sqft | Distance |
|---|---|---|---|
| Milnwood Drive | £ 0 | 0 | 0.00 KM |
| Rosevale Crescent | £ 52,000 | 0 | 0.00 KM |
| Asquith Place | £ 175,000 | 0 | 0.00 KM |
| Eastfield Terrace | £ 0 | 0 | 0.00 KM |
| Beechwood Gardens | £ 157,500 | 0 | 0.00 KM |
Nearby Transport
| Name | NLC | TLC | Distance |
|---|---|---|---|
| Bellshill | 9714 | BLH | 2.22 KM |
| Motherwell | 9691 | MTH | 2.91 KM |
| Holytown | 9738 | HLY | 3.39 KM |
| Airbles | 9695 | AIR | 3.83 KM |
| Whifflet | 9753 | WFF | 4.49 KM |
Nearby Listings
| Address | Price | Type | Score | Distance |
|---|---|---|---|---|
| Clyde Drive, Bellshill, ML4 | £ 135,000 | BUY | 6 / 10 | 0.00 KM |
| Clydesdale Road, Mossend | £ 400,000 | BUY | 7 / 10 | 0.10 KM |
| 8 Rosevale Crescent, ML4 | £ 114,995 | BUY | 7 / 10 | 0.31 KM |
| Garfield Avenue, Bellshill, ML4 | £ 285,000 | BUY | 7 / 10 | 0.33 KM |
| Russell Street, Bellshill, ML4 | £ 79,995 | BUY | 6 / 10 | 0.34 KM |