Victoria Road, Morley, Leeds, West Yorkshire
By Manning Stainton
£ 499,995
Reviews
3 out of 5 stars
Manning Stainton says ..
An impressive family home. Ideal for a growing family the property is situated on this highly sought after street and is within walking distance of a great primary school.
Property Oracle says ..
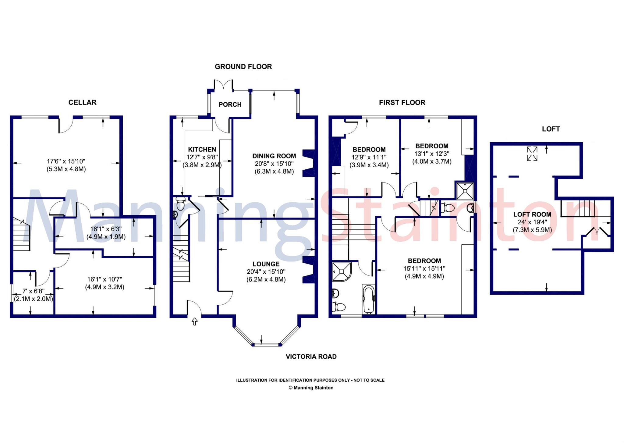
This is a substantial period property located on Victoria Road in Morley, Leeds. The house offers ample living space with four bedrooms and two bathrooms, along with a very large garden. While the property has some updated features, such as a modern bathroom, other areas, including the kitchen, are dated and would benefit from renovation. The property’s location provides convenient access to local schools and transportation links, including the Morley train station. The generous plot size and mature garden are significant assets. Overall, this property offers considerable potential but may require some investment to bring it up to modern standards.
Therefore, we give this property 7 / 10. *Disclaimer: This is our option and does constitute a recommendation or financial advice. Do your own research. *
- Price
- 7
- Condition
- 6
- Location
- 7
- Land
- 9
- Bedrooms
- 4
- Bathrooms
- 2
- Sqft (est)
- 2,066.10
The heatmap indicates the level of crime in the area. The color of the heatmap indicates the crime severity and recency.
Metrics Year-on-Year
- Average area value
- 321,452.00 £Increased by 21.41 %
- Est sale value
- 712,804.50 £Increased by 22.78 %
- Average area rental value
- 1,085.00 £/moIncreased by 14.94 %
- Est letting value
- 2,066.10 £/moUnchanged by 0.00 %
- Est rental Yield
- 4.05 %Decreased by 5.37 %
- Crime Rate
- 2.00 %Unchanged by 0.00 %
Agent Activity
Manning Stainton created the listing.
Nearby Schools
| Name | Type | Ofsted | Distance |
|---|---|---|---|
| Churwell Primary School | Community School | Good | 0.53 KM |
| Morley South Children'S Centre | Children's Centre | 0.74 KM | |
| Seven Hills Primary School | Community School | Good | 0.81 KM |
| Morley North Children'S Centre | Children's Centre | 1.03 KM | |
| Morley Victoria Primary School | Community School | Outstanding | 1.10 KM |
Images
Nearby Streets
| Name | Average Price | Average Sqft | Distance |
|---|---|---|---|
| Howley Avenue | £ 0 | 0 | 0.00 KM |
| Viceroy View | £ 0 | 0 | 0.00 KM |
| Chapel Hill | £ 0 | 0 | 0.00 KM |
| Bank Street | £ 185,000 | 0 | 0.00 KM |
| Definitive Footpath MORLEY 37 | £ 0 | 0 | 0.00 KM |
Nearby Transport
| Name | NLC | TLC | Distance |
|---|---|---|---|
| Morley | 8504 | MLY | 0.89 KM |
| Cottingley | 8505 | COT | 1.90 KM |
| Batley | 8484 | BTL | 5.63 KM |
| Burley Park | 8500 | BUY | 6.83 KM |
| Headingley | 8498 | HDY | 7.12 KM |
Nearby Listings
| Address | Price | Type | Score | Distance |
|---|---|---|---|---|
| Flat 4, Victoria Road, Morley, Leeds | £ 169,995 | BUY | Unknown | 0.00 KM |
| Victoria Road, Morley, Leeds, West Yorkshire | £ 499,995 | BUY | 7 / 10 | 0.00 KM |
| Laneside, Laneside Farm, Victoria Road, Morley, Leeds, LS27 8LL | £ 284,950 | BUY | Unknown | 0.01 KM |
| Laneside, Laneside Farm, Victoria Road, Morley, Leeds, LS27 8LL | £ 399,950 | BUY | Unknown | 0.01 KM |
| Laneside, Laneside Farm, Victoria Road, Morley, Leeds, LS27 8LL | £ 284,950 | BUY | Unknown | 0.01 KM |
Nearby Properties
| Address | Price | Distance |
|---|---|---|
| 136 Victoria Road | £ 119,000 | 0.01 KM |
| 106 Victoria Road | £ 415,000 | 0.01 KM |
| 108 Victoria Road | £ 595,000 | 0.01 KM |
| 134 Victoria Road | £ 95,000 | 0.01 KM |
| 132 Victoria Road | £ 100,000 | 0.01 KM |