1 Shiel Hall Gardens, Rosewell, Midlothian, EH24 9DB
MC

1 Shiel Hall Gardens, Rosewell, Midlothian, EH24 9DB

By McDougall McQueen

£ 360,000

Reviews

4 out of 5 stars

McDougall McQueen says ..

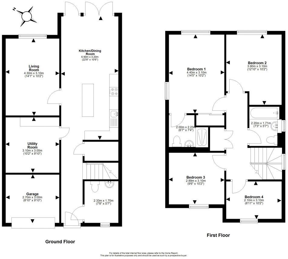
Welcome to 1 Shiel Hall Gardens, Rosewell, a stunning, bright, spacious and modern four-bedroom, two-bathroom, plus WC, beautiful, detached villa built around 2019 by Avant Homes, Set on a corner plot in a much sought after, small and desirable modern residential estate (Roselea) on the edge of t...

Property Oracle says ..

This property is a 4 bedroom, 2 bathroom detached house located in Rosewell, Midlothian. Based on the images provided, the property appears to be in excellent condition, recently built or renovated to a high standard with a modern finish. It benefits from a well maintained enclosed rear garden, with a patio area, and a detached garage. The property is situated in a modern residential development and is within reasonable commuting distance to Eskbank and Newtongrange train stations. The list price is above the average price for the area, however, given its size, condition, and features, it could be considered reasonable value for money.

Therefore, we give this property 8 / 10. *Disclaimer: This is our option and does constitute a recommendation or financial advice. Do your own research. *

Price
8
Condition
10
Location
7
Land
7
Bedrooms
4
Bathrooms
2
Sqft (est)
1,012.45

The heatmap indicates the level of crime in the area. The color of the heatmap indicates the crime severity and recency.

Metrics Year-on-Year

Average area value
345,048.00 £
Increased by 34.37 %
from 256,780.00 £
Est sale value
513,312.15 £
Increased by 11.92 %
from 458,639.85 £
Average area rental value
803.00 £/mo
Decreased by 6.19 %
from 856.00 £/mo
Est letting value
1,012.45 £/mo
Unchanged by 0.00 %
from 1,012.45 £/mo
Est rental Yield
2.79 %
Decreased by 30.25 %
from 4.00 %
Crime Rate
0.00 %
from 0.00 %

Agent Activity

  • McDougall McQueen created the listing.

Images

Property Image 13 Property Image 14 Property Image 15 Primary Property Image Property Image 2 Property Image 3 Property Image 4 Property Image 5 Property Image 6 Property Image 12 Property Image 16 Property Image 7 Property Image 8 Property Image 9 Property Image 10 Property Image 11 Property Image 17 Property Image 18 Property Image 19 Property Image 20 Property Image 21 Property Image 22 Property Image 23 Property Image 24 Property Image 25 Property Image 26 Property Image 27 Property Image 28

Nearby Streets

NameAverage PriceAverage SqftDistance
Shiel Hall Gardens £ 000.00 KM
Shiel Hall Medway £ 360,00000.00 KM
Villa Dean £ 000.00 KM
Shiel Hall Loan £ 375,00000.00 KM
Shiel Hall Way £ 000.00 KM

Nearby Transport

NameNLCTLCDistance
Eskbank3776EKB7.58 KM
Newtongrange6929NEG8.48 KM

Nearby Listings

AddressPriceTypeScoreDistance
1 Shiel Hall Gardens, Rosewell, Midlothian, EH24 9DB £ 360,000BUY8 / 100.00 KM
83 Shiel Hall Crescent, Rosewell, EH24 9DD £ 430,000BUY7 / 100.05 KM
9 Shiel Hall Crescent, Rosewell, Midlothian, EH24 9DD £ 395,000BUY7 / 100.05 KM
20 Shiel Hall Crescent, Rosewell, Midlothian, EH24 9DD £ 385,000BUY8 / 100.06 KM
46 Sheil Hall Crescent, Rosewell, EH24 9DD £ 384,995BUYUnknown0.07 KM