High Road, Needham, IP20
By Starkings & Watson
£ 365,000
Reviews
2 out of 5 stars
Starkings & Watson says ..
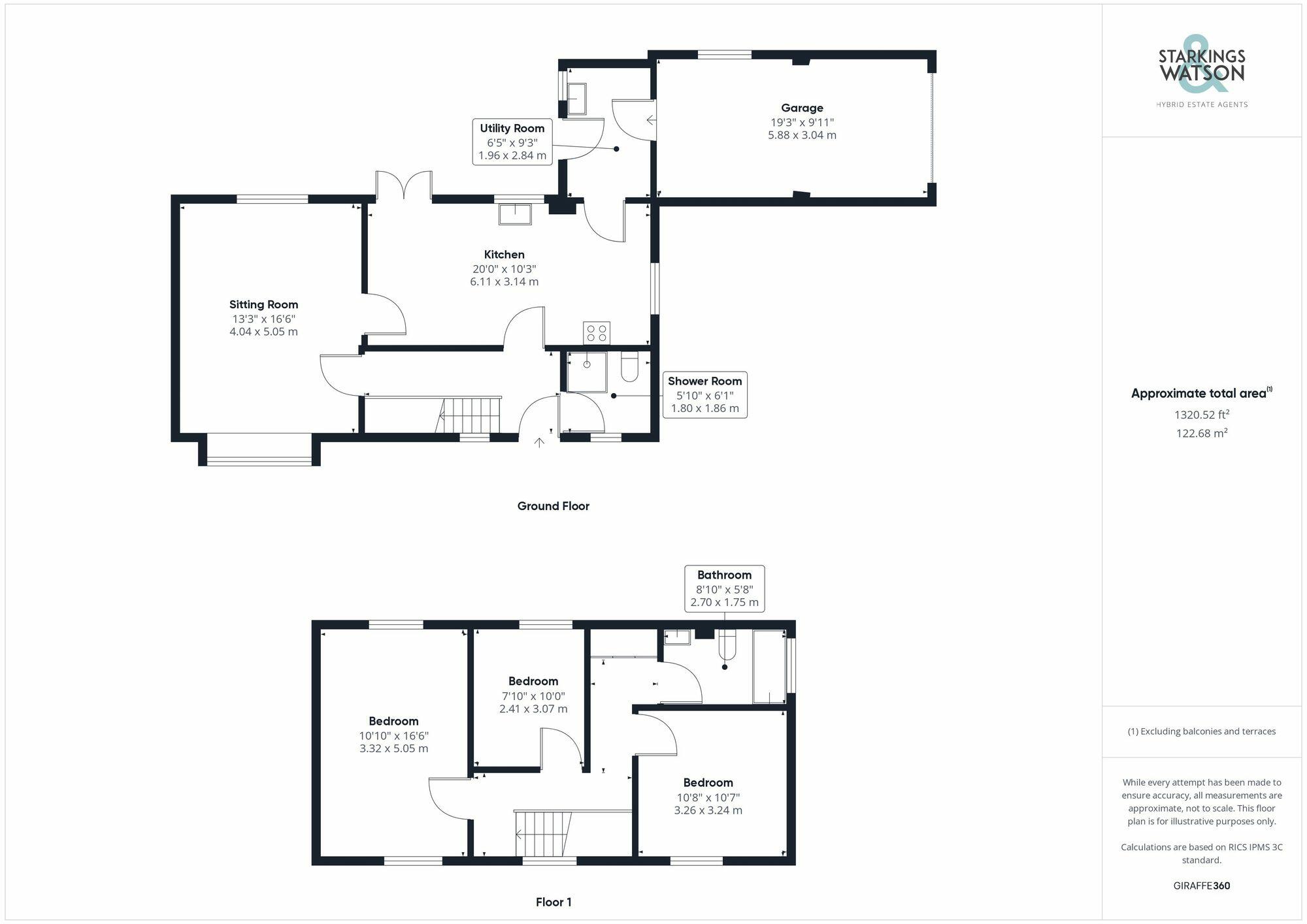
NO CHAIN! Located in the HEART OF NEEDHAM close to HARLESTON, occupying an ELEVATED POSITION is this DETACHED FAMILY HOME with potential to EXTEND if required (STP). The house itself offers accommodation in excess of 1300 SQFT (stms) and comprises of an entrance hallway with w/c and shower room,...
Property Oracle says ..
This three-bedroom, two-bathroom detached house in Needham, Norfolk, is presented as a family home with potential for extension. The property’s brick exterior and well-maintained garden create a pleasant visual impression. Inside, the kitchen features light wood cabinetry and a good layout, while the living spaces appear spacious and comfortably furnished. The bedrooms are of a decent size. The bathrooms are clean and functional. The property benefits from a rear garden, which, while not expansive, offers outdoor space. The location in Needham offers a balance of rural charm and access to local amenities, although more precise details on transport links and local services would be beneficial. The list price appears to be within a reasonable range for the area, although more comparative data on similar properties would allow for a more precise valuation. Overall, the property presents itself as a comfortable family home in a desirable location, though potential buyers should independently verify the property’s structural condition and carry out their own due diligence before making an offer. The lack of precise details regarding plot size and local comparable properties prevents a more definitive assessment.
Therefore, we give this property 5 / 10. *Disclaimer: This is our option and does constitute a recommendation or financial advice. Do your own research. *
- Price
- 7
- Condition
- 6
- Location
- 6
- Land
- 4
- Bedrooms
- 3
- Bathrooms
- 2
- Sqft (est)
- 1,320.52
The heatmap indicates the level of crime in the area. The color of the heatmap indicates the crime severity and recency.
Metrics Year-on-Year
- Average area value
- 310,000.00 £Increased by 0.04 %
- Est sale value
- 438,412.64 £Increased by 6.41 %
- Average area rental value
- 750.00 £/moDecreased by 16.67 %
- Est letting value
- 0.00 £/mo
- Est rental Yield
- 2.90 %Decreased by 16.91 %
- Crime Rate
- 308.00 %Unchanged by 0.00 %
Agent Activity
Starkings & Watson created the listing.
Nearby Schools
| Name | Type | Ofsted | Distance |
|---|---|---|---|
| Archbishop Sancroft High School (A Church Of England Academy) | Academy Converter | 3.03 KM | |
| Harleston Cofe Primary Academy | Academy Converter | 4.37 KM | |
| Harleston Area Children'S Centre | Children's Centre | 4.50 KM | |
| Pulham Church Of England Primary School | Voluntary Controlled School | Good | 6.40 KM |
| Fressingfield Church Of England Primary School | Academy Converter | 6.60 KM |
Images
Nearby Streets
| Name | Average Price | Average Sqft | Distance |
|---|---|---|---|
| Mill Lane | £ 0 | 0 | 0.00 KM |
Nearby Listings
| Address | Price | Type | Score | Distance |
|---|---|---|---|---|
| High Road, Needham, IP20 | £ 365,000 | BUY | 5 / 10 | 0.00 KM |
| High Road, Needham | £ 450,000 | BUY | Unknown | 0.03 KM |
| Brook Lane, Needham, Harleston | £ 425,000 | BUY | 6 / 10 | 0.07 KM |
| High Road, Needham, Harleston | £ 525,000 | BUY | 7 / 10 | 0.10 KM |
| High Road, Needham, Harleston | £ 495,000 | BUY | 7 / 10 | 0.13 KM |
Nearby Properties
| Address | Price | Distance |
|---|---|---|
| 3 Brook Lane | £ 210,000 | 0.08 KM |
| Green Lawns | £ 280,000 | 0.10 KM |
| 1 Brook Lane | £ 190,000 | 0.10 KM |
| 91 High Road | £ 287,000 | 0.15 KM |
| 94 High Road | £ 189,500 | 0.15 KM |