Polnoon Street, Eaglesham, G76
By Clyde Property
£ 270,000
Reviews
3 out of 5 stars
Clyde Property says ..
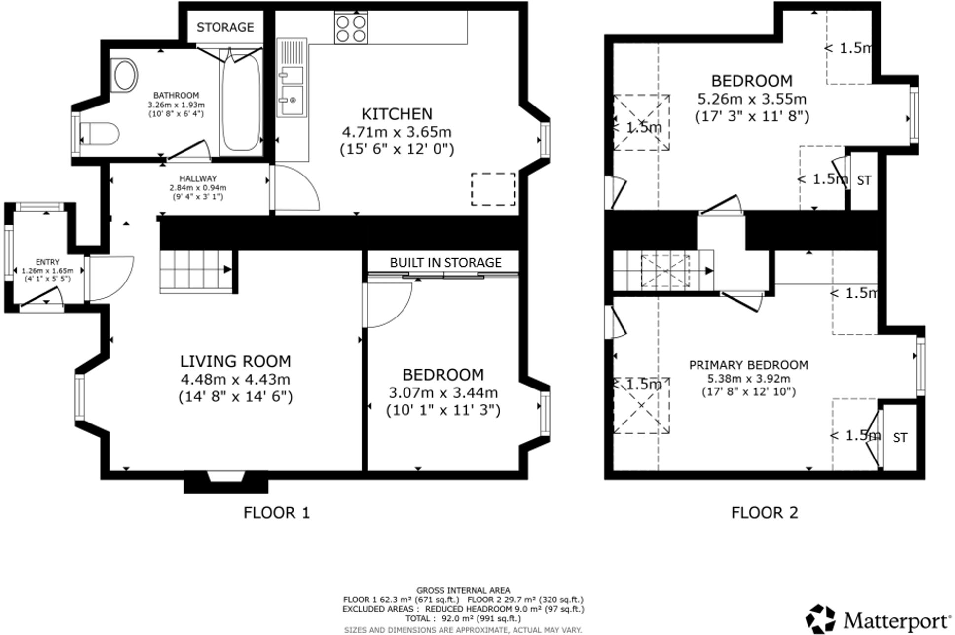
An enchanting duplex flat in the centre of Eaglesham village offering a notably bright and spacious four apartment interior complemented by a striking rear garden.
Property Oracle says ..
This is a 3-bedroom flat located on Polnoon Street, Eaglesham. The property is listed by Clyde Property. It features a well-maintained interior, a large garden, and is situated in a desirable village location. The property retains some traditional features. While the square footage is not provided, the property offers a good balance of living space and outdoor amenities. The price appears competitive for the area and property type. Nearby transportation links and street summaries are provided, giving a good overview of the surrounding area. The property is likely to appeal to families or individuals seeking a village lifestyle within commuting distance of Glasgow.
Therefore, we give this property 7 / 10. *Disclaimer: This is our option and does constitute a recommendation or financial advice. Do your own research. *
- Price
- 8
- Condition
- 7
- Location
- 7
- Land
- 8
- Bedrooms
- 3
- Bathrooms
- 1
The heatmap indicates the level of crime in the area. The color of the heatmap indicates the crime severity and recency.
Metrics Year-on-Year
- Average area value
- 447,909.00 £Increased by 2.81 %
- Average area rental value
- 1,580.00 £/moDecreased by 1.13 %
- Est rental Yield
- 4.23 %Decreased by 3.86 %
- Crime Rate
- 0.00 %
Agent Activity
Clyde Property created the listing.
Images
Nearby Streets
| Name | Average Price | Average Sqft | Distance |
|---|---|---|---|
| Airyligg Drive | £ 525,000 | 0 | 0.00 KM |
| Polbae Crescent | £ 323,000 | 0 | 0.00 KM |
| Tarff Avenue | £ 0 | 0 | 0.00 KM |
| Glendinning Place | £ 0 | 0 | 0.00 KM |
| Kirk Wynd | £ 175,000 | 0 | 0.00 KM |
Nearby Transport
| Name | NLC | TLC | Distance |
|---|---|---|---|
| Thorntonhall | 9825 | THT | 4.31 KM |
| Busby | 9791 | BUS | 4.78 KM |
| Clarkston | 9792 | CKS | 5.47 KM |
| Williamwood | 9781 | WLM | 6.12 KM |
| Whitecraigs | 9777 | WCR | 6.64 KM |
Nearby Listings
| Address | Price | Type | Score | Distance |
|---|---|---|---|---|
| Polnoon Street, Eaglesham, G76 | £ 270,000 | BUY | 7 / 10 | 0.00 KM |
| Montgomery Street, Eaglesham, G76 | £ 375,000 | BUY | 7 / 10 | 0.22 KM |
| Montgomery Street, Eaglesham | £ 260,000 | BUY | 7 / 10 | 0.23 KM |
| Montgomery Street, Eaglesham, G76 | £ 235,000 | BUY | 6 / 10 | 0.23 KM |
| Bonnyton Drive, Eaglesham, G76 | £ 119,000 | BUY | Unknown | 0.25 KM |