Cumnock Road, Castle Cary, Somerset, BA7
By Roderick Thomas
£ 775,000
Reviews
3 out of 5 stars
Roderick Thomas says ..
A beautiful and sympathetic refurbishment of a prominent Edwardian house, just a short distance from Castle Cary High Street.
Property Oracle says ..
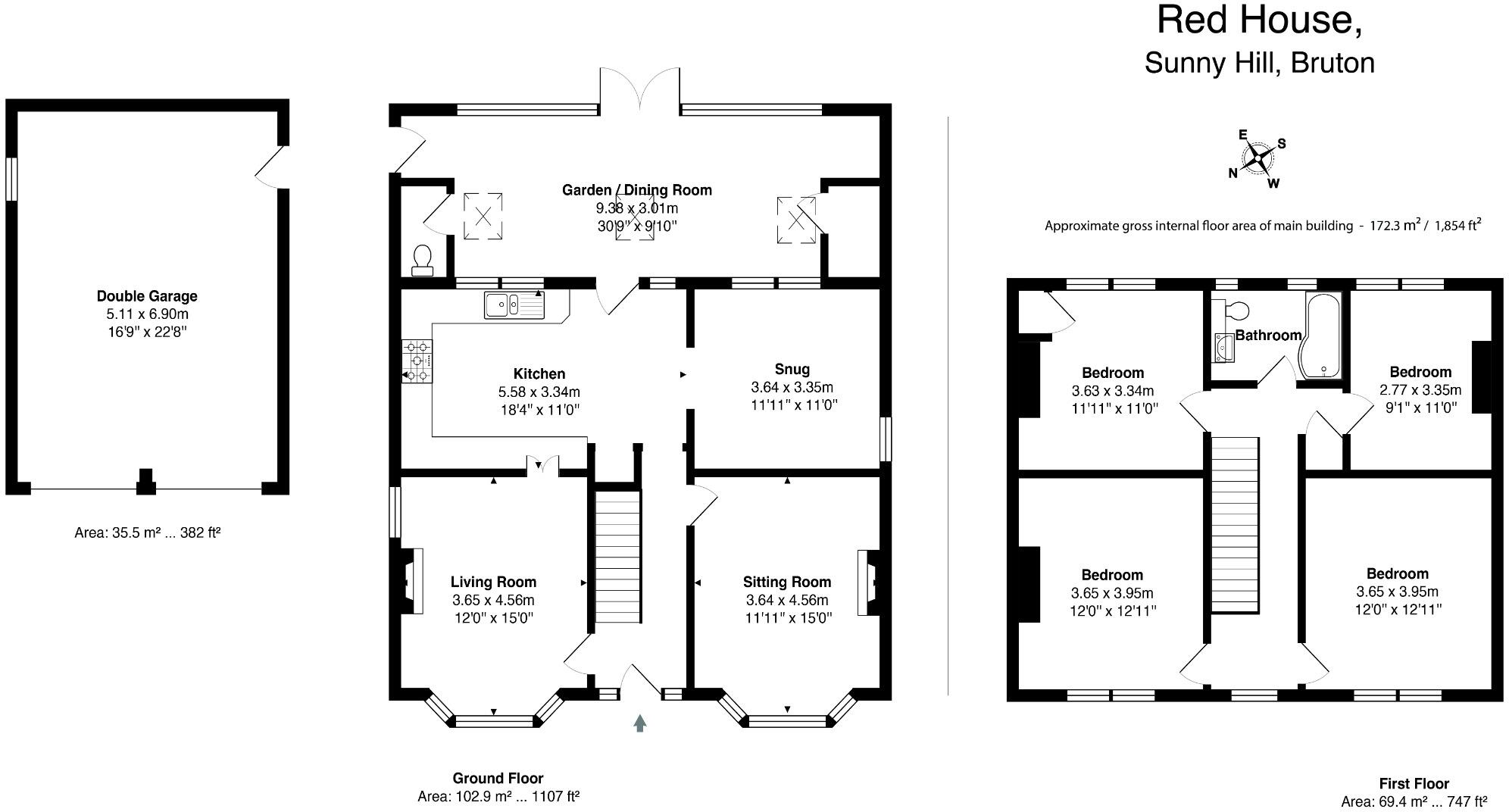
The property is a 5-bedroom, 2-bathroom detached house located on Cumnock Road in Castle Cary, Somerset. It has a plot size of 1,854.62 sqft and a total area of 1,990.68 sqft. The list price is £775,000. The property appears to have undergone a recent, high-quality renovation. The interior is modern and bright, featuring a contemporary kitchen and updated bathrooms. The exterior is a traditional brick building which has been well maintained and updated. The property benefits from a garden to the rear. Castle Cary is a small market town in Somerset, with a train station providing links to London and other major cities. The town has a range of local amenities, including schools and shops. The proximity to the train station is a positive attribute, improving accessibility. The nearby Ansford Academy has a good Ofsted rating, suggesting good local schooling options. Considering the average house price in the area is £482,353 and the average price per sqft is £308, the list price of £775,000 for this property appears high. However, the size (1990.68 sqft), recent renovation, and the apparent high quality of the finishings could justify a premium price. The property’s location in Castle Cary, combined with its size and condition, likely contributes to the higher-than-average price. More comparable local pricing data would allow for a more precise evaluation of the price’s reasonableness.
Therefore, we give this property 7 / 10. *Disclaimer: This is our option and does constitute a recommendation or financial advice. Do your own research. *
- Price
- 6
- Condition
- 9
- Location
- 8
- Land
- 7
- Bedrooms
- 5
- Bathrooms
- 2
- Sqft (est)
- 1,990.68
- Lot (est)
- 1,854.62
The heatmap indicates the level of crime in the area. The color of the heatmap indicates the crime severity and recency.
Metrics Year-on-Year
- Average area value
- 591,875.00 £Increased by 5.13 %
- Est sale value
- 949,554.36 £Decreased by 6.47 %
- Average area rental value
- 1,194.00 £/moDecreased by 3.63 %
- Est letting value
- 0.00 £/moDecreased by 100.00 %
- Est rental Yield
- 2.42 %Decreased by 8.33 %
- Crime Rate
- 19.00 %Unchanged by 0.00 %
Agent Activity
Roderick Thomas created the listing.
Nearby Schools
| Name | Type | Ofsted | Distance |
|---|---|---|---|
| Ansford Academy | Academy Converter | Good | 0.28 KM |
| Castle Cary Building | Children's Centre Linked Site | 0.42 KM | |
| Castle Cary Community Primary School | Community School | Requires improvement | 0.83 KM |
| Ditcheat Primary School | Community School | Good | 4.50 KM |
| Bruton School For Girls | Other Independent School | 4.81 KM |
Images
Nearby Streets
| Name | Average Price | Average Sqft | Distance |
|---|---|---|---|
| Knights Yard | £ 0 | 0 | 0.00 KM |
| Market Yard | £ 0 | 0 | 0.00 KM |
| Victoria Court | £ 102,000 | 0 | 0.00 KM |
| Park Street | £ 300,000 | 0 | 0.00 KM |
| Park Lane | £ 1,350,000 | 0 | 0.00 KM |
Nearby Transport
| Name | NLC | TLC | Distance |
|---|---|---|---|
| Castle Cary | 5703 | CLC | 1.43 KM |
| Bruton | 5702 | BRU | 7.46 KM |
Nearby Listings
| Address | Price | Type | Score | Distance |
|---|---|---|---|---|
| Cumnock Road, Castle Cary, Somerset, BA7 | £ 775,000 | BUY | 7 / 10 | 0.00 KM |
| Coombe Close, Castle Cary, Somerset, BA7 | £ 525,000 | BUY | Unknown | 0.07 KM |
| 2, Old Ansford Inn, Castle Cary | £ 470,000 | BUY | 6 / 10 | 0.11 KM |
| Old Ansford Inn, Higher Ansford, Castle Cary, Somerset, BA7 | £ 270,000 | BUY | 6 / 10 | 0.11 KM |
| Higher Ansford, Castle Cary, Somerset, BA7 | £ 975,000 | BUY | Unknown | 0.22 KM |
Nearby Properties
| Address | Price | Distance |
|---|---|---|
| Ansford Cottage | £ 149,000 | 0.01 KM |
| 11 Coombe Close | £ 359,450 | 0.07 KM |
| 6 Coombe Close | £ 171,000 | 0.07 KM |
| 5 Coombe Close | £ 295,000 | 0.07 KM |
| 7 Coombe Close | £ 441,750 | 0.07 KM |