Beechcroft Close, Staines-upon-Thames, Surrey
By Romans
£ 765,000
Reviews
3 out of 5 stars
Romans says ..
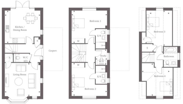
STAMP DUTY CONTRIBUTION!* Plot 7 Ashcroft Place is a newly built four bedroom end of terrace home, built by award winning developer Shanly Homes. Enjoying 1442 sq.ft. of living space this home benefits from carefully designed spaces to cater to the needs of busy family life. This home ...
Property Oracle says ..
This is a well-presented, modern end-of-terrace property in Staines-upon-Thames. It features four bedrooms, three bathrooms, and a garden. The property is conveniently located near local schools and the Staines train station. While the price is above the local average, the condition and features of the property may justify the premium.
Therefore, we give this property 7 / 10. *Disclaimer: This is our option and does constitute a recommendation or financial advice. Do your own research. *
- Price
- 6
- Condition
- 9
- Location
- 7
- Land
- 7
- Bedrooms
- 4
- Bathrooms
- 3
- Sqft (est)
- 1,160.00
The heatmap indicates the level of crime in the area. The color of the heatmap indicates the crime severity and recency.
Metrics Year-on-Year
- Average area value
- 475,335.00 £Increased by 9.77 %
- Est sale value
- 721,520.00 £Increased by 17.36 %
- Average area rental value
- 1,773.00 £/moIncreased by 5.54 %
- Est letting value
- 2,320.00 £/moUnchanged by 0.00 %
- Est rental Yield
- 4.48 %Decreased by 3.86 %
- Crime Rate
- 9.00 %Unchanged by 0.00 %
Agent Activity
Romans created the listing.
Nearby Schools
| Name | Type | Ofsted | Distance |
|---|---|---|---|
| Our Lady Of The Rosary Rc Primary School | Voluntary Aided School | Good | 0.28 KM |
| Riverbridge Primary School | Academy Converter | Good | 0.34 KM |
| Staines Preparatory School | Other Independent School | 0.71 KM | |
| The Magna Carta School | Academy Converter | Good | 1.76 KM |
| The Haven Sure Start Children'S Centre | Children's Centre | 1.78 KM |
Images
Nearby Streets
| Name | Average Price | Average Sqft | Distance |
|---|---|---|---|
| Park Avenue | £ 0 | 0 | 0.00 KM |
| St Peter's Close | £ 700,000 | 0 | 0.00 KM |
| Thames Side | £ 0 | 0 | 0.00 KM |
| Pinewood Drive | £ 215,000 | 0 | 0.00 KM |
| Elmsleigh Road | £ 0 | 0 | 0.00 KM |
Nearby Transport
| Name | NLC | TLC | Distance |
|---|---|---|---|
| Staines | 5670 | SNS | 0.52 KM |
| Ashford (Surrey) | 5667 | AFS | 4.26 KM |
| Egham | 5669 | EGH | 4.51 KM |
| Chertsey | 5553 | CHY | 4.64 KM |
| Heathrow Terminal 5 | 9846 | HWV | 4.91 KM |
Nearby Listings
| Address | Price | Type | Score | Distance |
|---|---|---|---|---|
| Langley Road, Staines-upon-Thames, Surrey | £ 640,000 | BUY | 6 / 10 | 0.00 KM |
| Langley Road, Staines-upon-Thames, Surrey | £ 610,000 | BUY | 7 / 10 | 0.00 KM |
| Langley Road, Staines-upon-Thames, Surrey | £ 455,000 | BUY | 5 / 10 | 0.00 KM |
| Langley Road, Staines-upon-Thames, Surrey | £ 730,000 | BUY | 7 / 10 | 0.00 KM |
| Langley Road, Staines-upon-Thames, Surrey | £ 625,000 | BUY | 7 / 10 | 0.00 KM |
Nearby Properties
| Address | Price | Distance |
|---|---|---|
| 51 Langley Road | £ 320,000 | 0.04 KM |
| 66 Langley Road | £ 547,000 | 0.04 KM |
| 8 Langley Road | £ 450,000 | 0.05 KM |
| 6 Langley Road | £ 510,000 | 0.05 KM |
| 12 Langley Road | £ 400,000 | 0.05 KM |