Oxenham Court, Bristol
By Parks Estate Agents
£ 225,000
Reviews
2 out of 5 stars
Parks Estate Agents says ..
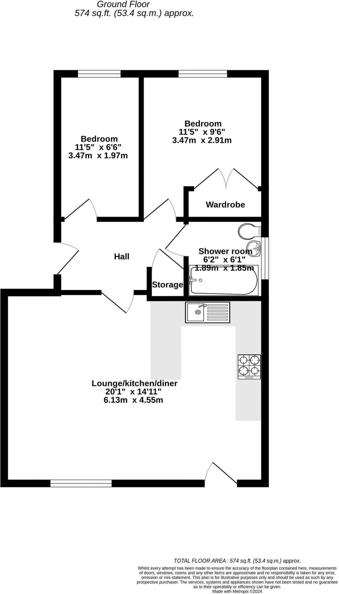
Parks Estate Agents are delighted to offer to the market this beautiful ground floor two-bedroom flat which is presented to a lovely standard and is sure to delight many a First Time Buyer. This property is located in a very popular spot with St George's Park just around the corner, bus routes an...
Property Oracle says ..
This two-bedroom flat at Oxenham Court in Bristol’s St George West offers a blend of modern comfort and convenient city living. The property presents a well-maintained interior with a recently updated kitchen and bathroom, showcased through the high-quality photos. The décor is contemporary and neutral, appealing to a broad range of buyers. The flat is situated in a highly desirable area, known for its excellent schools, with Whitehall Primary School being just a short walk away. This excellent school, rated as ‘Outstanding’ by Ofsted, significantly increases the property’s appeal to families.
The proximity to multiple bus routes offers good transport links, although precise information about the immediate vicinity’s amenities, such as local shops and parks beyond St George’s Park’s proximity, is limited in the provided materials. While the images show a bright and modern space, the lack of information regarding the property’s outdoor space, and details of similar recently sold properties, prevents a more detailed valuation. The listed price is competitive in the context of similar homes in the area, but the lack of square footage data for those comparisons makes the price point assessment somewhat uncertain. Overall, it presents as a sound investment for first-time buyers or those seeking a low-maintenance property in a convenient location with outstanding schools nearby.
Therefore, we give this property 5 / 10. *Disclaimer: This is our option and does constitute a recommendation or financial advice. Do your own research. *
- Price
- 7
- Condition
- 8
- Location
- 7
- Land
- 1
- Bedrooms
- 2
- Bathrooms
- 1
- Sqft (est)
- 574.79
The heatmap indicates the level of crime in the area. The color of the heatmap indicates the crime severity and recency.
Metrics Year-on-Year
- Average area value
- 590,893.00 £Increased by 22.51 %
- Est sale value
- 356,369.80 £Increased by 21.09 %
- Average area rental value
- 2,120.00 £/moIncreased by 44.51 %
- Est letting value
- 1,149.58 £/moIncreased by 100.00 %
- Est rental Yield
- 4.31 %Increased by 18.08 %
- Crime Rate
- 5.00 %Unchanged by 0.00 %
Agent Activity
Parks Estate Agents created the listing.
Nearby Schools
| Name | Type | Ofsted | Distance |
|---|---|---|---|
| The Limes Nursery School | Local Authority Nursery School | Good | 0.31 KM |
| Whitehall Primary School | Community School | Outstanding | 0.32 KM |
| The Limes Nursery School & Children'S Centre | Children's Centre | 0.35 KM | |
| Redfield Educate Together Primary Academy | Academy Sponsor Led | Good | 0.63 KM |
| St Patrick'S Catholic Primary School | Academy Converter | Outstanding | 0.64 KM |
Images
Nearby Streets
| Name | Average Price | Average Sqft | Distance |
|---|---|---|---|
| Chalks Road | £ 325,000 | 0 | 0.00 KM |
| Gordon Road | £ 380,000 | 0 | 0.00 KM |
| Ida Road | £ 250,000 | 0 | 0.00 KM |
| Bruce Cole Lane | £ 0 | 0 | 0.00 KM |
| Barnes Street | £ 0 | 0 | 0.00 KM |
Nearby Transport
| Name | NLC | TLC | Distance |
|---|---|---|---|
| Lawrence Hill | 3225 | LWH | 1.39 KM |
| Stapleton Road | 3250 | SRD | 1.55 KM |
| Bristol Temple Meads | 3231 | BRI | 3.50 KM |
| Montpelier | 3203 | MTP | 4.00 KM |
| Filton Abbey Wood | 3235 | FIT | 4.78 KM |
Nearby Listings
| Address | Price | Type | Score | Distance |
|---|---|---|---|---|
| Whitehall Road, Bristol, Somerset, BS5 | £ 205,000 | BUY | 6 / 10 | 0.00 KM |
| Oxenham Court, Bristol | £ 189,995 | BUY | 6 / 10 | 0.02 KM |
| Oxenham Court, Bristol | £ 235,000 | BUY | 8 / 10 | 0.02 KM |
| Whitehall Road, Bristol | £ 229,950 | BUY | 6 / 10 | 0.05 KM |
| Whitehall Road, Bristol, BS5 | £ 425,000 | BUY | 7 / 10 | 0.05 KM |
Nearby Properties
| Address | Price | Distance |
|---|---|---|
| 259 Whitehall Road | £ 186,000 | 0.02 KM |
| 275 Whitehall Road | £ 285,000 | 0.02 KM |
| 263 Whitehall Road | £ 165,500 | 0.02 KM |
| 267 Whitehall Road | £ 139,995 | 0.02 KM |
| 271 Whitehall Road | £ 192,500 | 0.02 KM |