Betts Cottage, Old Mill Road, Torquay, Devon, TQ2 6HT
By Probate.Auction
£ 140,000
Reviews
2 out of 5 stars
Probate.Auction says ..
For sale by auction on 25th November at 12:15. Please note that the Auction will be an online auction via our website. For further information including viewing times and legal packs, please visit our website.
Property Oracle says ..
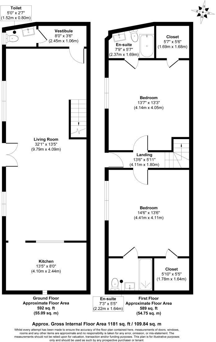
Betts Cottage presents a unique opportunity for buyers willing to undertake a comprehensive renovation project. While the property’s condition requires significant investment, its attractive list price and desirable location in Torquay make it a potentially worthwhile venture. The cottage is situated near local schools and amenities, enhancing its appeal. However, the limited land and dated interiors are factors to consider.
Therefore, we give this property 5 / 10. *Disclaimer: This is our option and does constitute a recommendation or financial advice. Do your own research. *
- Price
- 9
- Condition
- 4
- Location
- 7
- Land
- 3
- Bedrooms
- 2
- Bathrooms
- 2
The heatmap indicates the level of crime in the area. The color of the heatmap indicates the crime severity and recency.
Metrics Year-on-Year
- Average area value
- 380,895.00 £Decreased by 18.46 %
- Average area rental value
- 1,058.00 £/moDecreased by 13.42 %
- Est rental Yield
- 3.33 %Increased by 6.05 %
- Crime Rate
- 6.00 %Unchanged by 0.00 %
Agent Activity
Probate.Auction created the listing.
Nearby Schools
| Name | Type | Ofsted | Distance |
|---|---|---|---|
| Cockington Primary School | Academy Converter | Good | 0.64 KM |
| Cockington Children'S Centre | Children's Centre Linked Site | 0.66 KM | |
| Preston Primary School | Academy Sponsor Led | Good | 1.29 KM |
| Our Lady Of The Angels Catholic Primary School | Academy Converter | Requires improvement | 1.49 KM |
| Torre Church Of England Academy | Academy Converter | Good | 1.62 KM |
Images
Nearby Streets
| Name | Average Price | Average Sqft | Distance |
|---|---|---|---|
| Meadow Road | £ 0 | 0 | 0.00 KM |
| Walnut Road | £ 0 | 0 | 0.00 KM |
| Blindwylle Road | £ 265,000 | 0 | 0.00 KM |
| Cotswold Close | £ 399,950 | 0 | 0.00 KM |
| Headland Road | £ 0 | 0 | 0.00 KM |
Nearby Transport
| Name | NLC | TLC | Distance |
|---|---|---|---|
| Torquay | 3434 | TQY | 0.47 KM |
| Torre | 3432 | TRR | 1.24 KM |
| Paignton | 3427 | PGN | 3.60 KM |
| Newton Abbot | 3426 | NTA | 9.43 KM |
Nearby Listings
| Address | Price | Type | Score | Distance |
|---|---|---|---|---|
| Betts Cottage, Old Mill Road, Torquay, Devon, TQ2 6HT | £ 90,000 | BUY | 5 / 10 | 0.00 KM |
| Betts Cottage, Old Mill Road, Torquay, Devon, TQ2 6HT | £ 140,000 | BUY | 5 / 10 | 0.00 KM |
| Old Mill Road, TQ2 6HT | £ 250,000 | BUY | 6 / 10 | 0.01 KM |
| Old Mill Road, Torquay, TQ2 6HT | £ 210,000 | BUY | 4 / 10 | 0.01 KM |
| Walnut Road, Torquay, TQ2 | £ 350,000 | BUY | 7 / 10 | 0.07 KM |
Nearby Properties
| Address | Price | Distance |
|---|---|---|
| 21b Walnut Road | £ 95,000 | 0.10 KM |
| Jacaranda | £ 367,000 | 0.14 KM |
| Athelney | £ 127,000 | 0.14 KM |
| Little Athelney | £ 80,000 | 0.14 KM |
| Seaham Hall | £ 1,075,000 | 0.14 KM |