Fairmont Avenue, Blackwall
TH

Fairmont Avenue, Blackwall

By The Stow Brothers

£ 775,000

Reviews

3 out of 5 stars

The Stow Brothers says ..

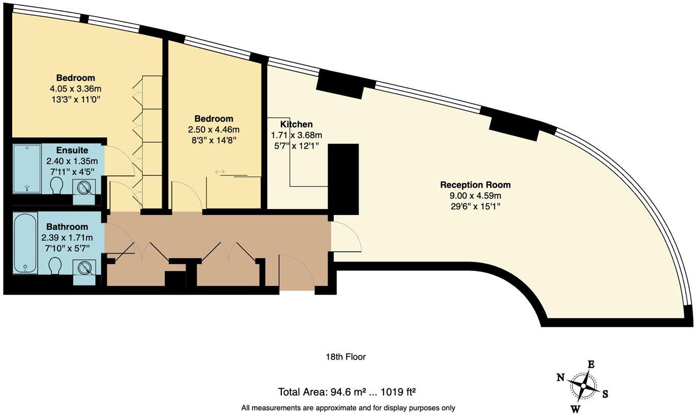
Set high on the 18th floor of an iconic riverside development, this two-bedroom, two-bathroom apartment offers an exceptional living experience with sweeping views that take in the O2 and beyond. Residents benefit from a dedicated concierge service, ensuring both security and ease of living, whil...

Property Oracle says ..

Therefore, we give this property 6 / 10. *Disclaimer: This is our option and does constitute a recommendation or financial advice. Do your own research. *

Price
6
Condition
9
Location
7
Land
3
Bedrooms
2
Bathrooms
2
Sqft (est)
1,018.27

The heatmap indicates the level of crime in the area. The color of the heatmap indicates the crime severity and recency.

Metrics Year-on-Year

Average area value
772,015.00 £
Increased by 8.00 %
from 714,822.00 £
Est sale value
350,284.88 £
Decreased by 60.82 %
from 894,041.06 £
Average area rental value
1,899.00 £/mo
Decreased by 56.45 %
from 4,361.00 £/mo
Est letting value
0.00 £/mo
Decreased by 100.00 %
from 5,091.35 £/mo
Est rental Yield
2.95 %
Decreased by 59.70 %
from 7.32 %
Crime Rate
8.00 %
Unchanged by 0.00 %
from 8.00 %

Agent Activity

  • The Stow Brothers created the listing.

Nearby Schools

NameTypeOfstedDistance
Woolmore Primary SchoolCommunity SchoolGood0.63 KM
Aberfeldy Children'S CentreChildren's Centre Linked Site0.72 KM
Culloden Primary - A Paradigm AcademyAcademy ConverterOutstanding0.77 KM
RavensbourneHigher Education InstitutionsGood1.23 KM
Langdon Park Community SchoolCommunity SchoolGood1.27 KM

Images

Fairmont Avenue, E14 Fairmont Avenue, E14 Fairmont Avenue, E14 Fairmont Avenue, E14 Fairmont Avenue, E14 Fairmont Avenue, E14 Fairmont Avenue, E14 Fairmont Avenue, E14 Fairmont Avenue, E14 Fairmont Avenue, E14 Fairmont Avenue, E14 Fairmont Avenue, E14 Fairmont Avenue, E14 Fairmont Avenue, E14 Fairmont Avenue, E14 Fairmont Avenue, E14 Fairmont Avenue, E14 Fairmont Avenue, E14 Fairmont Avenue, E14 Fairmont Avenue, E14 Fairmont Avenue, E14 Fairmont Avenue, E14 Fairmont Avenue, E14 Fairmont Avenue, E14 Fairmont Avenue, E14 Fairmont Avenue, E14 Fairmont Avenue, E14 Fairmont Avenue, E14 Fairmont Avenue, E14 Fairmont Avenue, E14 Fairmont Avenue, E14 Fairmont Avenue, E14 Fairmont Avenue, E14 Fairmont Avenue, E14 Fairmont Avenue, E14 Fairmont Avenue, E14 Fairmont Avenue, E14 Fairmont Avenue, E14 Fairmont Avenue, E14 Fairmont Avenue, E14 Fairmont Avenue, E14 Fairmont Avenue, E14 Fairmont Avenue, E14

Nearby Streets

NameAverage PriceAverage SqftDistance
East India Dock Road Tunnel £ 599,99000.00 KM
Yabsley Street £ 000.00 KM
Clove Crescent £ 000.00 KM
Hornley Walk £ 000.00 KM
Nutmeg Lane £ 000.00 KM

Nearby Transport

NameNLCTLCDistance
West Ham7474WEH2.62 KM
Maze Hill5149MZH2.83 KM
Greenwich5146GNW3.37 KM
Westcombe Park5151WCB3.57 KM
Stratford6969SRA3.88 KM

Nearby Listings

AddressPriceTypeScoreDistance
Fairmont Avenue, Blackwall £ 775,000BUY6 / 100.00 KM
Fairmont Avenue, London, E14 £ 280,000BUY6 / 100.03 KM
Fairmont Avenue, E14 £ 230,000BUY6 / 100.03 KM
Ontario Tower, 4 Fairmount Avenue, Blackwall, Canary Wharf, London, E14 9PB £ 264,995BUY8 / 100.03 KM
Fairmont Avenue, Canary Wharf £ 270,000BUY6 / 100.03 KM

Nearby Properties

AddressPriceDistance
46 Naval Row £ 203,5000.23 KM
34 Naval Row £ 222,5000.23 KM
62 Naval Row £ 292,0000.23 KM
44 Naval Row £ 50,0000.23 KM
40 Naval Row £ 212,5000.23 KM