Kelverdale Road, Cleveleys, FY5
By The Square Room
£ 150,000
Reviews
2 out of 5 stars
The Square Room says ..
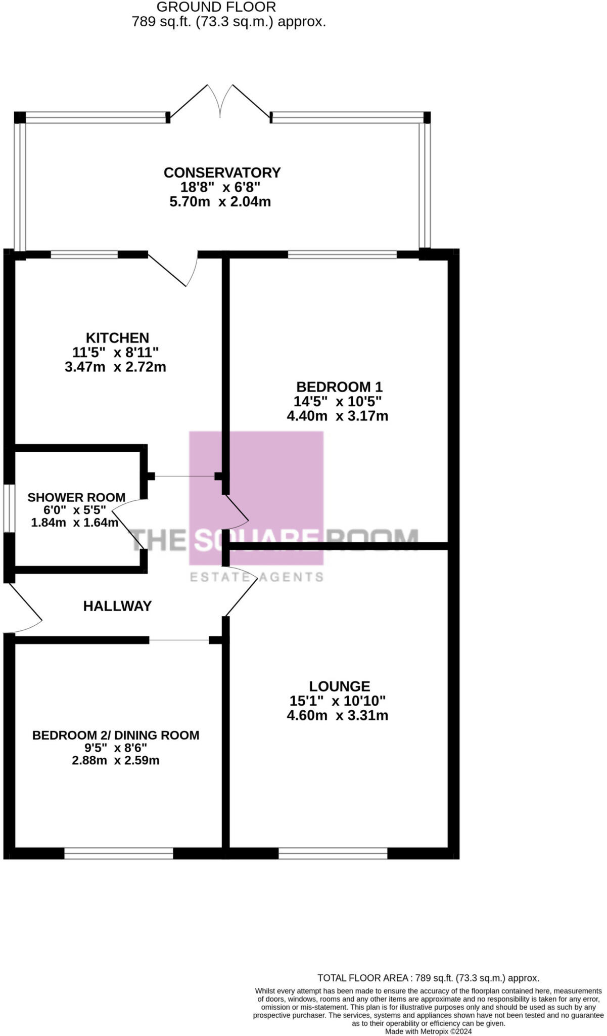
** NO CHAIN ** SEMI DETACHED TRUE BUNGALOW - TWO DOUBLE BEDROOMS - SPACIOUS LOUNGE - CONSERVATORY - SHOWER ROOM - COMBI BOILER - GARDENS TO THE FRONT & REAR - GARAGE - DRIVEWAY PARKING -
Property Oracle says ..
This semi-detached bungalow in Cleveleys, Lancashire is listed at £150,000. The property features two bedrooms, one bathroom, and a conservatory. The nearby listings and street data indicate an average house price in the area that falls within a similar range. The photographs show a property that is in need of some modernisation. The kitchen and bathroom appear dated, and the garden requires attention. However, the house is habitable and the location presents good access to local amenities including schools and transportation links to Blackpool. The lack of detailed plot size and precise square footage data makes a definitive assessment of value slightly harder, but overall the property presents a fair market value given its condition and location. Potential buyers should factor in renovation costs to bring the property up to a more modern standard. The property’s proximity to train stations and schools, however, makes it a reasonably desirable location. The garden space, while present, would require landscaping effort to reach its full potential.
Therefore, we give this property 5 / 10. *Disclaimer: This is our option and does constitute a recommendation or financial advice. Do your own research. *
- Price
- 7
- Condition
- 5
- Location
- 7
- Land
- 4
- Bedrooms
- 2
- Bathrooms
- 1
- Sqft (est)
- 788.99
The heatmap indicates the level of crime in the area. The color of the heatmap indicates the crime severity and recency.
Metrics Year-on-Year
- Average area value
- 180,000.00 £Decreased by 46.31 %
- Est sale value
- 142,807.19 £Decreased by 20.26 %
- Average area rental value
- 1,025.00 £/moDecreased by 8.40 %
- Est letting value
- 788.99 £/mo
- Est rental Yield
- 6.83 %Increased by 70.32 %
- Crime Rate
- 3.00 %Unchanged by 0.00 %
Agent Activity
The Square Room created the listing.
Nearby Schools
| Name | Type | Ofsted | Distance |
|---|---|---|---|
| Blackpool And The Fylde College | Further Education | Outstanding | 0.94 KM |
| Anchorsholme Primary Academy | Academy Converter | Good | 0.98 KM |
| Kincraig Primary School | Community School | Good | 1.08 KM |
| Kincraig Children'S Centre | Children's Centre | 1.08 KM | |
| Thornton Cleveleys Royles Brook Primary School | Community School | Good | 1.37 KM |
Images
Nearby Streets
| Name | Average Price | Average Sqft | Distance |
|---|---|---|---|
| Quarrybank | £ 170,000 | 0 | 0.00 KM |
| Green Oak Place | £ 150,000 | 0 | 0.00 KM |
| Grassington Place | £ 0 | 0 | 0.00 KM |
| Epsom Road | £ 142,500 | 0 | 0.00 KM |
| Perth Close | £ 0 | 0 | 0.00 KM |
Nearby Transport
| Name | NLC | TLC | Distance |
|---|---|---|---|
| Layton (Lancs) | 2669 | LAY | 3.57 KM |
| Poulton-Le-Fylde | 2671 | PFY | 3.92 KM |
| Blackpool North | 2739 | BPN | 5.82 KM |
| Blackpool South | 2740 | BPS | 8.11 KM |
| Blackpool Pleasure Beach | 2738 | BPB | 9.42 KM |
Nearby Listings
| Address | Price | Type | Score | Distance |
|---|---|---|---|---|
| Kelverdale Road, Cleveleys, FY5 | £ 150,000 | BUY | 5 / 10 | 0.00 KM |
| Kelverdale Road, Thornton-Cleveleys, Lancashire, FY53DL | £ 170,000 | BUY | 6 / 10 | 0.00 KM |
| Kelverdale Road, Thornton-Cleveleys, FY5 | £ 152,000 | BUY | Unknown | 0.03 KM |
| Wood Green Drive, Cleveleys, FY5 | £ 187,500 | BUY | 7 / 10 | 0.06 KM |
| Wood Green Drive, THORNTON-CLEVELEYS, Lancashire, FY5 | £ 142,500 | BUY | 5 / 10 | 0.10 KM |
Nearby Properties
| Address | Price | Distance |
|---|---|---|
| 17 Kelverdale Road | £ 136,000 | 0.03 KM |
| 7 Kelverdale Road | £ 49,950 | 0.03 KM |
| 15 Kelverdale Road | £ 104,000 | 0.03 KM |
| 19 Kelverdale Road | £ 112,500 | 0.03 KM |
| 6 Kelverdale Road | £ 132,500 | 0.03 KM |