CH
St. Johns, Woking, Surrey, GU21
By Chancellors
£ 400,000
Reviews
3 out of 5 stars
Chancellors says ..
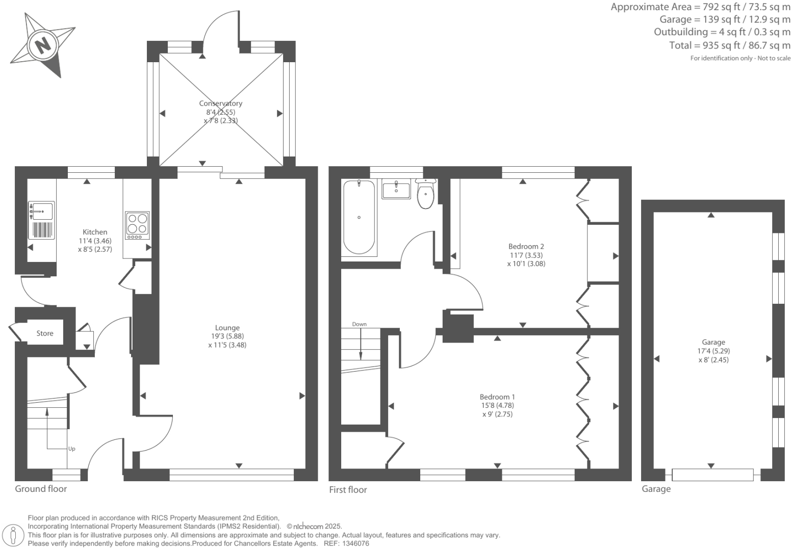
This two bedroom semi-detached family home is ideally located for St Johns and has the convenience of being within 2 miles of Woking Shopping Centre and Woking Station, providing links into The City and The West End. With off street parking and garage, there is potential to enhance and extend STPP.
Property Oracle says ..
Therefore, we give this property 6 / 10. *Disclaimer: This is our option and does constitute a recommendation or financial advice. Do your own research. *
- Price
- 6
- Condition
- 4
- Location
- 8
- Land
- 6
- Bedrooms
- 2
- Bathrooms
- 1
- Sqft (est)
- 935.00
The heatmap indicates the level of crime in the area. The color of the heatmap indicates the crime severity and recency.
Metrics Year-on-Year
- Average area value
- 384,737.00 £Decreased by 1.20 %
- Est sale value
- 380,545.00 £Increased by 15.95 %
- Average area rental value
- 1,963.00 £/moIncreased by 39.81 %
- Est letting value
- 1,870.00 £/moIncreased by 100.00 %
- Est rental Yield
- 6.12 %Increased by 41.34 %
- Crime Rate
- 15.00 %Unchanged by 0.00 %
from 389,410.00 £
from 328,185.00 £
from 1,404.00 £/mo
from 935.00 £/mo
from 4.33 %
from 15.00 %
Agent Activity
Chancellors created the listing.
Nearby Schools
| Name | Type | Ofsted | Distance |
|---|---|---|---|
| The Winston Churchill School A Specialist Sports College | Foundation School | Good | 0.46 KM |
| Beaufort Primary School | Academy Converter | Good | 1.04 KM |
| St John'S Primary School | Academy Sponsor Led | Requires improvement | 1.11 KM |
| St John'S Primary School And Sure Start Children'S Centre | Children's Centre | 1.11 KM | |
| The Oaktree School | Academy Converter | 1.20 KM |
Images
Nearby Streets
| Name | Average Price | Average Sqft | Distance |
|---|---|---|---|
| Saint John's Lye | £ 0 | 0 | 0.00 KM |
| Robin Hood Roundabout cycle path | £ 0 | 0 | 0.00 KM |
| Prestbury Court | £ 0 | 0 | 0.00 KM |
| Lockfield Drive cycle path | £ 0 | 0 | 0.00 KM |
| St John's Road | £ 535,000 | 0 | 0.00 KM |
Nearby Transport
| Name | NLC | TLC | Distance |
|---|---|---|---|
| Worplesdon | 5686 | WPL | 3.14 KM |
| Brookwood | 5687 | BKO | 4.38 KM |
| Woking | 5685 | WOK | 4.49 KM |
| Longcross | 5674 | LNG | 8.02 KM |
| Guildford | 5631 | GLD | 8.69 KM |
Nearby Listings
| Address | Price | Type | Score | Distance |
|---|---|---|---|---|
| St. Johns, Woking, Surrey, GU21 | £ 400,000 | BUY | 6 / 10 | 0.00 KM |
| Ashley Road, Woking, Surrey, GU21 | £ 425,000 | BUY | 7 / 10 | 0.04 KM |
| St,Johns | £ 435,000 | BUY | 7 / 10 | 0.08 KM |
| Robin Hood Close, Woking, Surrey, GU21 | £ 435,000 | BUY | 7 / 10 | 0.08 KM |
| Robin Hood Close, St Johns, Woking, GU21 | £ 450,000 | BUY | 6 / 10 | 0.11 KM |
Nearby Properties
| Address | Price | Distance |
|---|---|---|
| 4 Ashley Road | £ 239,950 | 0.04 KM |
| 18 Ashley Road | £ 296,000 | 0.04 KM |
| 16 Ashley Road | £ 240,000 | 0.04 KM |
| 15 Ashley Road | £ 390,000 | 0.05 KM |
| 14 Ashley Road | £ 224,000 | 0.05 KM |