School Lane, Yateley, Hampshire, GU46
By Prospect Estate Agency
£ 400,000
Reviews
3 out of 5 stars
Prospect Estate Agency says ..
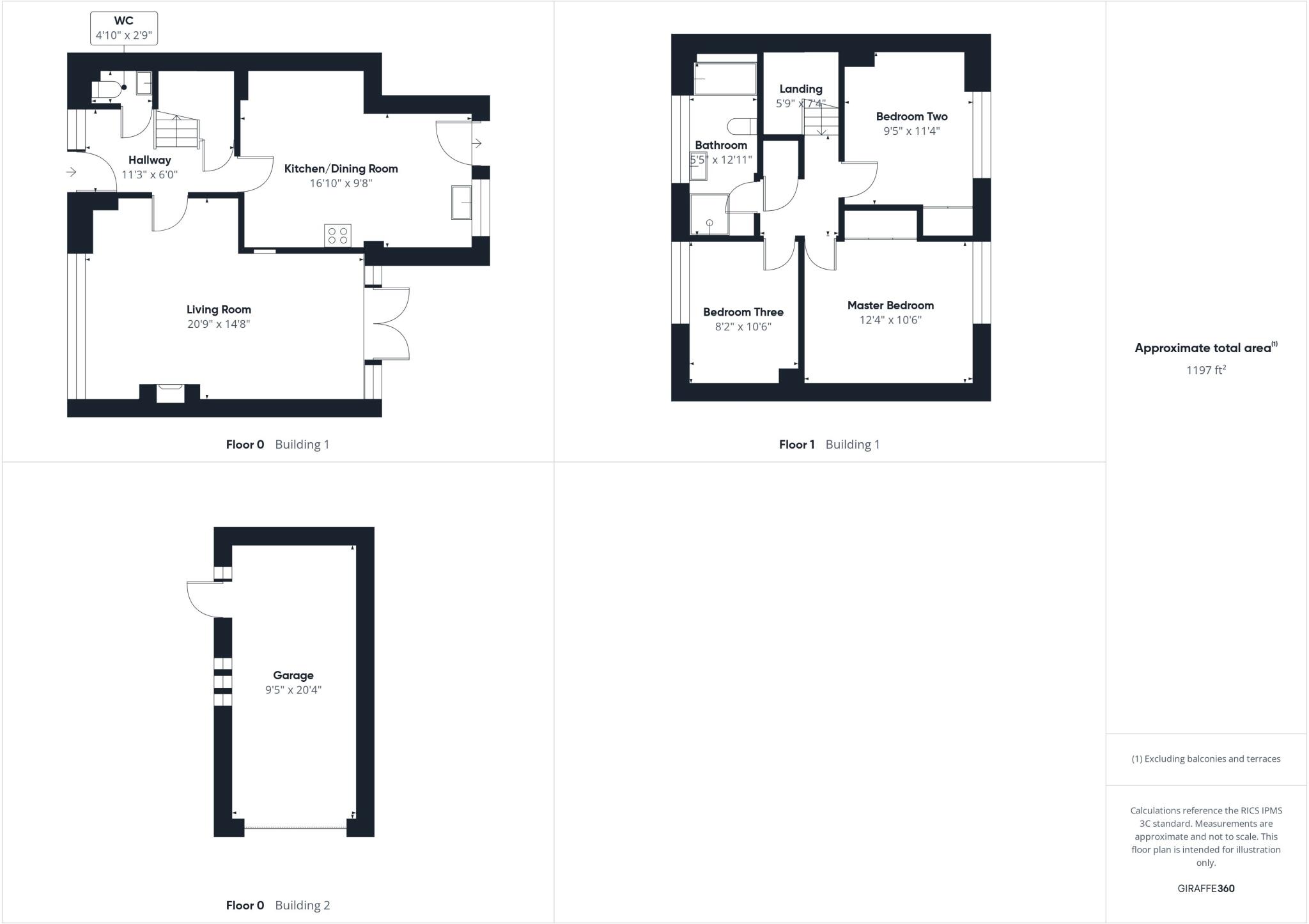
Located on the ever-popular School Lane in Yateley, this spacious three-bedroom end-of-terrace home offers excellent potential for families, first-time buyers, or anyone looking to create their ideal living space. Set on a generous plot, the property benefits from driveway parking for three cars ...
Property Oracle says ..
This end-of-terrace property on School Lane in Yateley offers three bedrooms and one bathroom, with a total square footage of 1,169.13. The location is a strong point, with several schools nearby, including Westfields Junior School and Yateley School. The property includes a garden with a shed, providing valuable outdoor space. While the property is in reasonable condition, some areas, such as the bathroom and kitchen, could benefit from modernisation. The asking price of £400,000 is slightly above the average price per square foot for the area but is justifiable given the property’s size, location, and end-of-terrace status. Prospect Estate Agency is handling the listing.
Therefore, we give this property 6 / 10. *Disclaimer: This is our option and does constitute a recommendation or financial advice. Do your own research. *
- Price
- 7
- Condition
- 6
- Location
- 7
- Land
- 7
- Bedrooms
- 3
- Bathrooms
- 1
- Sqft (est)
- 1,169.13
The heatmap indicates the level of crime in the area. The color of the heatmap indicates the crime severity and recency.
Metrics Year-on-Year
- Average area value
- 239,000.00 £Increased by 24.44 %
- Est sale value
- 314,495.97 £Increased by 15.95 %
- Average area rental value
- 850.00 £/moDecreased by 8.60 %
- Est letting value
- 0.00 £/moDecreased by 100.00 %
- Est rental Yield
- 4.27 %Decreased by 26.51 %
- Crime Rate
- 20.00 %Unchanged by 0.00 %
Agent Activity
Prospect Estate Agency created the listing.
Nearby Schools
| Name | Type | Ofsted | Distance |
|---|---|---|---|
| Westfields Junior School | Community School | Outstanding | 0.19 KM |
| Woodlark And Water Lilies Children'S Centre | Children's Centre | 0.24 KM | |
| Yateley School | Community School | Good | 0.24 KM |
| Westfields Infant School | Community School | Good | 0.32 KM |
| Newlands Primary School | Community School | Good | 0.89 KM |
Images
Nearby Streets
| Name | Average Price | Average Sqft | Distance |
|---|---|---|---|
| Keats Way | £ 0 | 0 | 0.00 KM |
| Blackbushe Park | £ 0 | 0 | 0.00 KM |
| Harvest Close | £ 0 | 0 | 0.00 KM |
| Gale Close | £ 0 | 0 | 0.00 KM |
| Nutley Close | £ 500,000 | 0 | 0.00 KM |
Nearby Transport
| Name | NLC | TLC | Distance |
|---|---|---|---|
| Crowthorne | 5628 | CRN | 3.85 KM |
| Sandhurst (Berks) | 5646 | SND | 3.93 KM |
| Fleet | 5522 | FLE | 5.37 KM |
| Blackwater | 5625 | BAW | 6.92 KM |
| Wokingham | 5696 | WKM | 8.13 KM |
Nearby Listings
| Address | Price | Type | Score | Distance |
|---|---|---|---|---|
| School Lane, Yateley, Hampshire, GU46 | £ 400,000 | BUY | 6 / 10 | 0.00 KM |
| School Lane, Yateley, Hampshire | £ 375,000 | BUY | 6 / 10 | 0.00 KM |
| School Lane, Yateley, Hampshire, GU46 | £ 385,000 | BUY | 7 / 10 | 0.00 KM |
| School Lane, Yateley, Hampshire, GU46 | £ 350,000 | BUY | 7 / 10 | 0.12 KM |
| Selwyn Drive, Yateley | £ 425,000 | BUY | 6 / 10 | 0.14 KM |
Nearby Properties
| Address | Price | Distance |
|---|---|---|
| 31 School Lane | £ 300,000 | 0.00 KM |
| 8 School Lane | £ 197,500 | 0.00 KM |
| 17 School Lane | £ 217,000 | 0.00 KM |
| 20 School Lane | £ 190,000 | 0.00 KM |
| 12 School Lane | £ 307,500 | 0.00 KM |