Thomas Brown Estates says ..
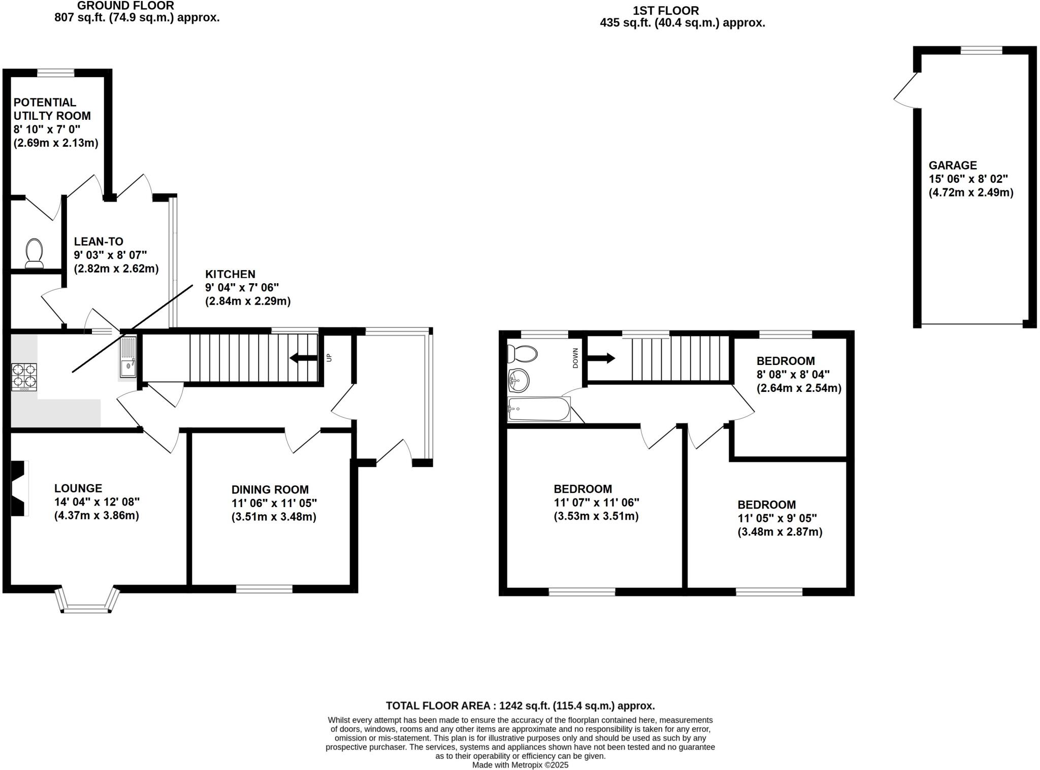
Thomas Brown Estates are delighted to offer this three bedroom semi-detached property, being offered to the market with no forward chain, situated in the heart of the ever sought after Halstead Village, with views over a green to the front and fields/woodlands to the rear. The property comprises:...
Property Oracle says ..
The property is located in Halstead, Sevenoaks, Kent. This is a desirable area known for its good schools and transport links. The property itself is a three-bedroom semi-detached house with a garden. Based on the images, the property appears to be in reasonable condition, although some modernisation may be needed to bring it up to a higher standard. The list price is £545,000. Considering the average price per square foot in the area is £576, and this property is 937 sqft, a rough estimate of value would be approximately £539,000. However, the average house price in the area is significantly higher at £882,222, suggesting this property may be underpriced, especially given the size of the plot. Nearby comparable properties support this conclusion, with similar properties selling for significantly more. The property benefits from a good-sized garden, adding to its overall value. The location is strong, with good schools and transport links nearby.
Therefore, we give this property 7 / 10. *Disclaimer: This is our option and does constitute a recommendation or financial advice. Do your own research. *
- Price
- 8
- Condition
- 7
- Location
- 9
- Land
- 7
- Bedrooms
- 3
- Bathrooms
- 1
- Sqft (est)
- 937.00
- Lot (est)
- 1,242.00
The heatmap indicates the level of crime in the area. The color of the heatmap indicates the crime severity and recency.
Metrics Year-on-Year
- Average area value
- 1,145,000.00 £Increased by 51.85 %
- Est sale value
- 747,726.00 £Increased by 52.58 %
- Average area rental value
- 1,717.00 £/moDecreased by 6.07 %
- Est letting value
- 937.00 £/moUnchanged by 0.00 %
- Est rental Yield
- 1.80 %Decreased by 38.14 %
- Crime Rate
- 26.00 %Unchanged by 0.00 %
Agent Activity
Thomas Brown Estates created the listing.
Nearby Schools
| Name | Type | Ofsted | Distance |
|---|---|---|---|
| Pratts Bottom Primary School | Academy Converter | Good | 2.18 KM |
| Browns School | Other Independent Special School | Good | 3.30 KM |
| Chelsfield Primary School | Academy Converter | Good | 3.33 KM |
| St Katharine'S Knockholt Church Of England Voluntary Aided Primary School | Voluntary Aided School | Good | 3.68 KM |
| The Highway Primary School | Academy Converter | Good | 4.20 KM |
Images
Nearby Streets
| Name | Average Price | Average Sqft | Distance |
|---|---|---|---|
| Damson Drive | £ 891,250 | 0 | 0.00 KM |
| Station Road | £ 590,000 | 0 | 0.00 KM |
| Bond Close | £ 0 | 0 | 0.00 KM |
| Badgers Rise | £ 0 | 0 | 0.00 KM |
Nearby Transport
| Name | NLC | TLC | Distance |
|---|---|---|---|
| Knockholt | 5109 | KCK | 1.98 KM |
| Chelsfield | 5098 | CLD | 4.00 KM |
| Dunton Green | 5102 | DNG | 5.60 KM |
| Shoreham (Kent) | 5074 | SEH | 6.37 KM |
| Orpington | 5122 | ORP | 6.88 KM |
Nearby Listings
| Address | Price | Type | Score | Distance |
|---|---|---|---|---|
| Southdene, Halstead | £ 545,000 | BUY | 7 / 10 | 0.00 KM |
| Southdene, Halstead, Sevenoaks, Kent, TN14 | £ 675,000 | BUY | 8 / 10 | 0.01 KM |
| Southdene, Halstead, TN14 | £ 625,000 | BUY | 7 / 10 | 0.04 KM |
| Southdene, Halstead, Sevenoaks, TN14 | £ 525,000 | BUY | 7 / 10 | 0.05 KM |
| Southdene, Halstead, Sevenoaks | £ 650,000 | BUY | 6 / 10 | 0.07 KM |
Nearby Properties
| Address | Price | Distance |
|---|---|---|
| 21 Southdene | £ 385,000 | 0.07 KM |
| 34 Southdene | £ 242,500 | 0.07 KM |
| 37 Southdene | £ 553,000 | 0.07 KM |
| 35 Southdene | £ 249,950 | 0.07 KM |
| 4 Southdene | £ 275,000 | 0.07 KM |