Woodstead Grove, Edgware
MI

Woodstead Grove, Edgware

By mile...

£ 1,000,000

Reviews

2 out of 5 stars

mile... says ..

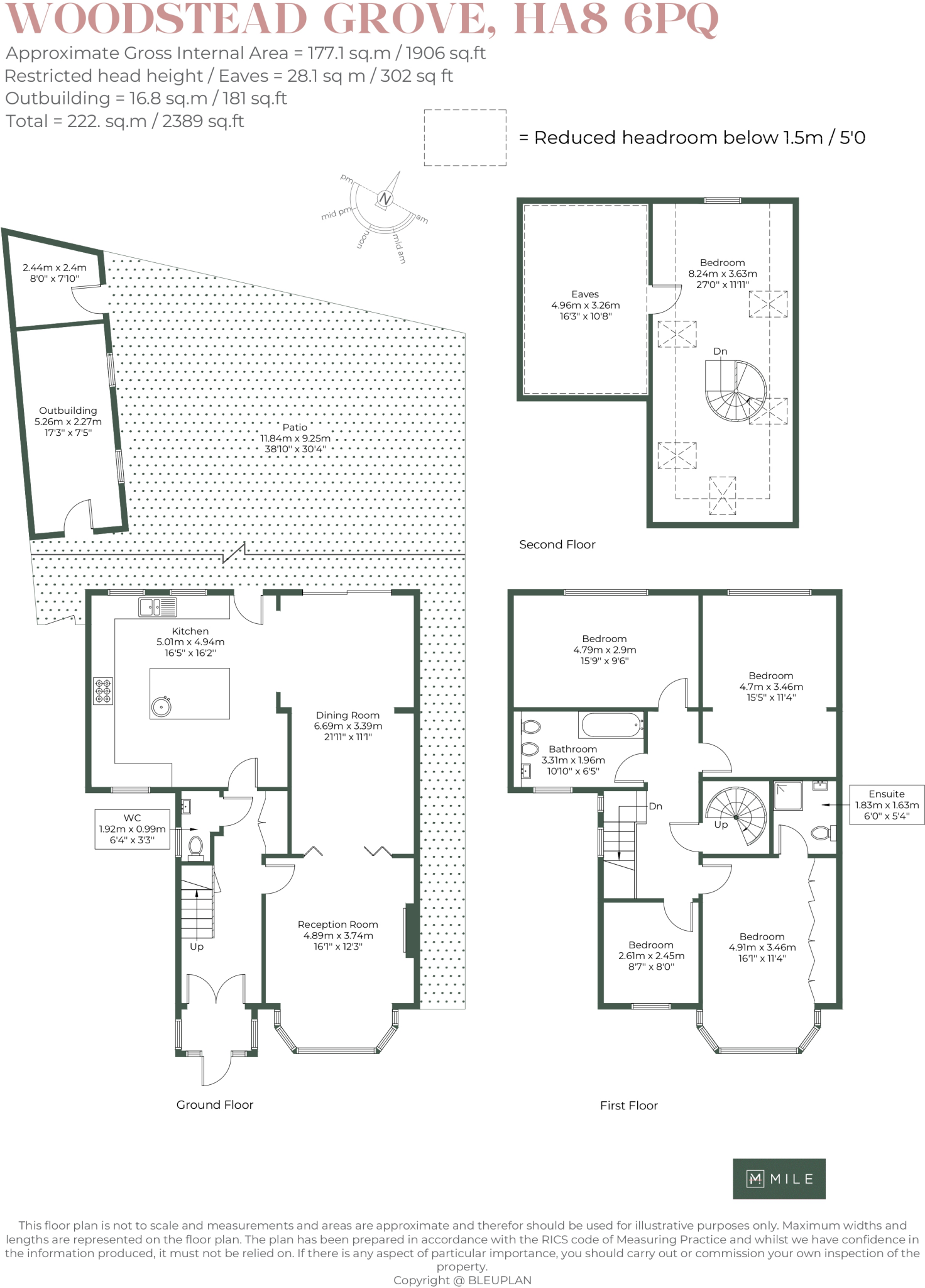
Mile are pleased to offer this stunning 5-bedroom family home nestled in the sought-after Cul De Sac on Woodstead Grove, HA8. This beautifully maintained property offers a perfect blend of space, comfort, and modern elegance, ideal for large families or those seeking extra room for home offices o...

Property Oracle says ..

This five-bedroom detached house in Edgware’s Canons Park presents itself as a sizable family home in a convenient location. The property’s interior is reasonably well-maintained, although the aesthetic leans towards a slightly dated style. The kitchen and bathrooms appear functional but could benefit from some modernisation, depending on the buyer’s preferences. The available photos showcase a spacious layout, with multiple bedrooms and living areas, including a dedicated office or hobby space in the loft conversion.

The property’s appeal is further enhanced by its proximity to excellent schools, especially Woodlands School’s outstanding Ofsted rating. While public transportation requires a short journey, the area’s infrastructure is generally considered well-developed. The provided exterior photos show a compact paved rear garden.

The £1,000,000 asking price aligns with other nearby properties listed, making it a reasonably competitive listing. However, a lack of precise square footage and plot size data from comparable listings limits a completely accurate evaluation of value for money. Potential buyers should consider potential modernisation costs, especially if updating to current aesthetic preferences is desired.

Therefore, we give this property 5 / 10. *Disclaimer: This is our option and does constitute a recommendation or financial advice. Do your own research. *

Price
7
Condition
6
Location
7
Land
3
Bedrooms
5
Bathrooms
2
Sqft (est)
2,389.59

The heatmap indicates the level of crime in the area. The color of the heatmap indicates the crime severity and recency.

Metrics Year-on-Year

Average area value
625,703.00 £
Decreased by 3.61 %
from 649,164.00 £
Est sale value
1,120,717.71 £
Increased by 34.38 %
from 833,966.91 £
Average area rental value
2,383.00 £/mo
Decreased by 5.55 %
from 2,523.00 £/mo
Est letting value
2,389.59 £/mo
Unchanged by 0.00 %
from 2,389.59 £/mo
Est rental Yield
4.57 %
Decreased by 1.93 %
from 4.66 %
Crime Rate
0.00 %
from 0.00 %

Agent Activity

  • mile... created the listing.

Nearby Schools

NameTypeOfstedDistance
North London Collegiate SchoolOther Independent School0.57 KM
Woodlands SchoolCommunity Special SchoolOutstanding0.78 KM
Chandos Children'S CentreChildren's Centre Linked Site0.91 KM
Camrose Primary With NurseryCommunity SchoolGood0.91 KM
Aylward Primary SchoolAcademy Sponsor LedGood0.98 KM

Images

7 Woodstead Grove... 7 Woodstead Grove... 7 Woodstead Grove... 7 Woodstead Grove... 7 Woodstead Grove... 7 Woodstead Grove... 7 Woodstead Grove... 7 Woodstead Grove... 7 Woodstead Grove... 7 Woodstead Grove... 7 Woodstead Grove... 7 Woodstead Grove... 7 Woodstead Grove... 7 Woodstead Grove... 7 Woodstead Grove... 7 Woodstead Grove... 7 Woodstead Grove...

Nearby Streets

NameAverage PriceAverage SqftDistance
Chestnut Avenue £ 000.00 KM
St. Lawrence Close £ 000.00 KM
Stonegrove Court £ 000.00 KM
Orchard Court £ 314,66700.00 KM
Regents Court £ 399,25000.00 KM

Nearby Transport

NameNLCTLCDistance
Kenton1399KNT4.37 KM
Mill Hill Broadway1527MIL4.60 KM
Elstree And Borehamwood1542ELS4.82 KM
South Kenton1453SOK4.96 KM
Harrow And Wealdstone1397HRW5.28 KM

Nearby Listings

AddressPriceTypeScoreDistance
Woodstead Grove, Edgware £ 1,000,000BUY5 / 100.00 KM
Chestnut Avenue, Edgware, HA8 £ 1,250,000BUY8 / 100.09 KM
Chestnut Avenue, Edgware, Middlesex, HA8 £ 1,250,000BUY7 / 100.10 KM
Chestnut Avenue, Edgware £ 800,000BUY7 / 100.12 KM
Whitchurch Gardens, Edgware, HA8 £ 840,000BUYUnknown0.18 KM

Nearby Properties

AddressPriceDistance
21 Chestnut Avenue £ 700,0000.10 KM
8 Chestnut Avenue £ 360,0000.10 KM
2 Chestnut Avenue £ 872,5000.10 KM
27 Chestnut Avenue £ 687,0000.10 KM
16 £ 659,0000.10 KM