CU
Mileash Lane, Darley Abbey, Derby
By Curran Birds + Co
£ 285,000
Reviews
3 out of 5 stars
Curran Birds + Co says ..
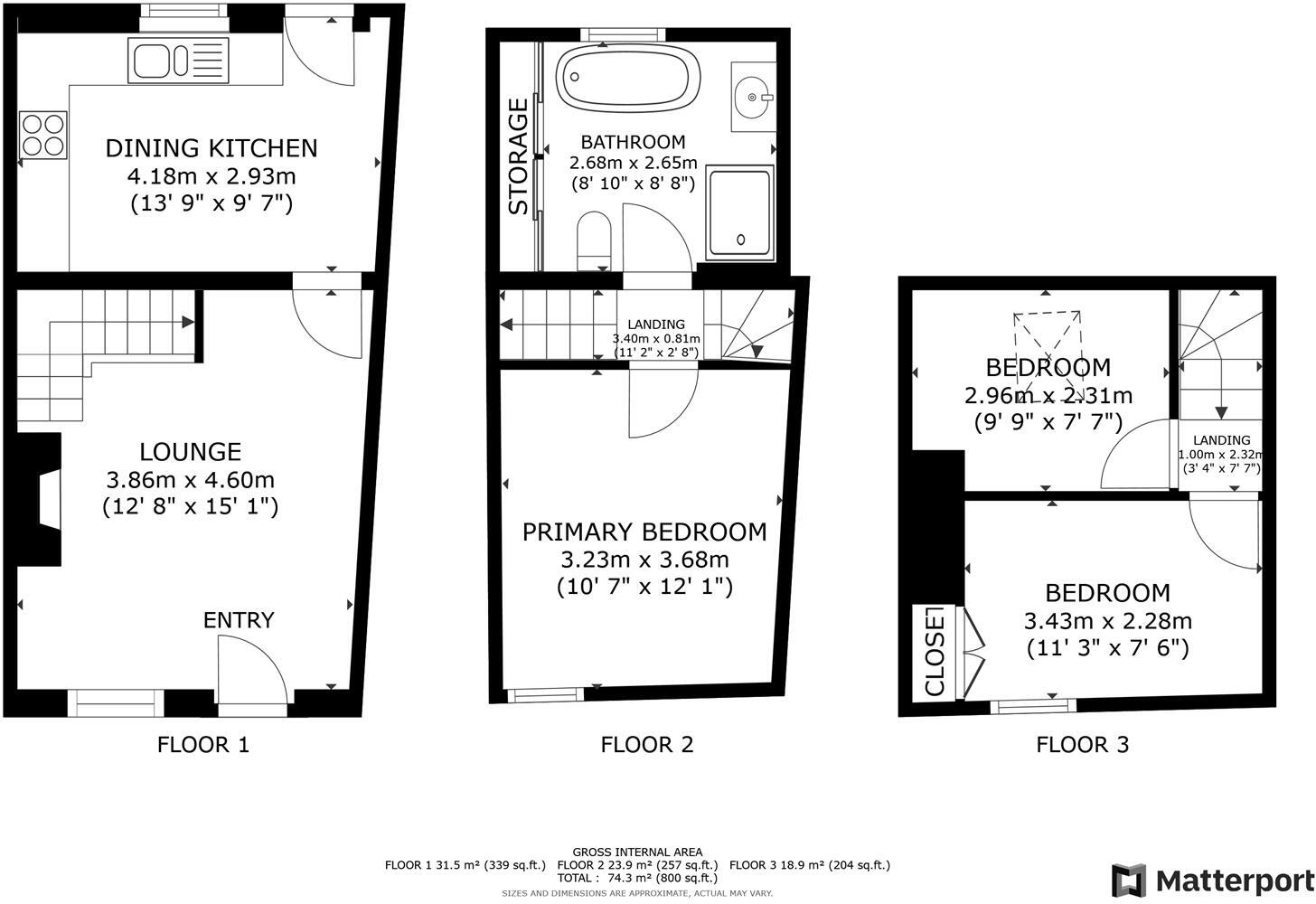
ECCLESBOURNE SCHOOL CATCHMENT – A beautifully appointed, three-bedroom, Grade II listed former mill worker's cottage situated in the heart of the Darley Abbey Village conservation area. This charming three-storey home has been comprehensively upgraded to an impressive standard, blending period ch...
Property Oracle says ..
Therefore, we give this property 6 / 10. *Disclaimer: This is our option and does constitute a recommendation or financial advice. Do your own research. *
- Price
- 7
- Condition
- 8
- Location
- 8
- Land
- 3
- Bedrooms
- 3
- Bathrooms
- 1
- Sqft (est)
- 684.69
The heatmap indicates the level of crime in the area. The color of the heatmap indicates the crime severity and recency.
Metrics Year-on-Year
- Average area value
- 336,500.00 £Increased by 36.08 %
- Est sale value
- 249,227.16 £Increased by 31.41 %
- Average area rental value
- 843.00 £/moIncreased by 29.29 %
- Est letting value
- 0.00 £/mo
- Est rental Yield
- 3.01 %Decreased by 4.75 %
- Crime Rate
- 2.00 %Unchanged by 0.00 %
from 247,276.00 £
from 189,659.13 £
from 652.00 £/mo
from 0.00 £/mo
from 3.16 %
from 2.00 %
Agent Activity
Curran Birds + Co marked this listing as sold.
Curran Birds + Co created the listing.
Nearby Schools
| Name | Type | Ofsted | Distance |
|---|---|---|---|
| Walter Evans Church Of England Aided Primary School | Academy Converter | Good | 0.42 KM |
| Saint Benedict, A Catholic Voluntary Academy | Academy Converter | Good | 0.43 KM |
| Old Vicarage School | Other Independent School | 0.67 KM | |
| Emmanuel School (Derby) Limited | Other Independent School | 1.39 KM | |
| Lawn Primary School | Academy Converter | Outstanding | 1.43 KM |
Images
Nearby Streets
| Name | Average Price | Average Sqft | Distance |
|---|---|---|---|
| Willow Close | £ 0 | 0 | 0.00 KM |
| Spinney Close | £ 0 | 0 | 0.00 KM |
| The Hill Square | £ 99,500 | 0 | 0.00 KM |
| Abbeyfields Close | £ 0 | 0 | 0.00 KM |
| Thistledown Close | £ 0 | 0 | 0.00 KM |
Nearby Transport
| Name | NLC | TLC | Distance |
|---|---|---|---|
| Derby | 1823 | DBY | 3.53 KM |
| Peartree | 1687 | PEA | 5.12 KM |
| Duffield | 1691 | DFI | 5.16 KM |
| Spondon | 1699 | SPO | 8.54 KM |
| Belper | 1679 | BLP | 9.08 KM |
Nearby Listings
| Address | Price | Type | Score | Distance |
|---|---|---|---|---|
| Mileash Lane, Darley Abbey, Derby | £ 285,000 | BUY | 6 / 10 | 0.00 KM |
| Mile Ash Lane, Darley Abbey, Derby | £ 365,000 | BUY | 7 / 10 | 0.05 KM |
| Willow Close, Darley Abbey | £ 315,000 | BUY | 6 / 10 | 0.11 KM |
| Willow Close, Darley Abbey, Derby | £ 315,000 | BUY | 7 / 10 | 0.11 KM |
| Mileash Lane, Darley Abbey | £ 290,000 | BUY | Unknown | 0.12 KM |
Nearby Properties
| Address | Price | Distance |
|---|---|---|
| 27 Mileash Lane | £ 195,000 | 0.04 KM |
| 11 Mileash Lane | £ 240,000 | 0.04 KM |
| 25 Mileash Lane | £ 240,000 | 0.04 KM |
| 19 Mileash Lane | £ 310,000 | 0.04 KM |
| 17 Mileash Lane | £ 195,000 | 0.04 KM |