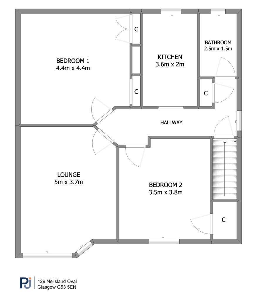
129 Neilsland Oval, Glasgow, G53
PA

129 Neilsland Oval, Glasgow, G53

By Pacitti Jones

£ 99,995

Reviews

2 out of 5 stars

Pacitti Jones says ..

A bright and well-appointed main door upper cottage flat set within a convenient and established pocket of Glasgow’s thriving Southside. The property requires a degree of internal modernisation which is reflected in the competitive asking price. EPC - D

Property Oracle says ..

This is a 2-bedroom flat in Greater Pollok, Glasgow, requiring extensive renovation. While the location offers reasonable transport links and the property includes a garden, the dated condition is a significant drawback. However, the list price is considerably lower than the average for the area, reflecting the work needed and presenting an opportunity for a buyer willing to invest in refurbishment.

Therefore, we give this property 5 / 10. *Disclaimer: This is our option and does constitute a recommendation or financial advice. Do your own research. *

Price
8
Condition
2
Location
6
Land
6
Bedrooms
2
Bathrooms
1
Sqft (est)
668.55

The heatmap indicates the level of crime in the area. The color of the heatmap indicates the crime severity and recency.

Metrics Year-on-Year

Average area value
184,999.00 £
Decreased by 19.06 %
from 228,570.00 £
Est sale value
182,514.15 £
Increased by 37.88 %
from 132,372.90 £
Average area rental value
895.00 £/mo
Decreased by 15.17 %
from 1,055.00 £/mo
Est letting value
668.55 £/mo
from 0.00 £/mo
Est rental Yield
5.81 %
Increased by 4.87 %
from 5.54 %
Crime Rate
0.00 %
from 0.00 %

Agent Activity

  • Pacitti Jones created the listing.

Images

202510280919476.jpg 202510280919478.jpg 202510280919477.jpg 2025102809172214.jpg 202510280917229.jpg 202510280919470.jpg 202510280919473.jpg 202510280917225.jpg 202510280919475.jpg 202510280919474.jpg 202510280919479.jpg 202510280917228.jpg 2025102809172211.jpg 2025102809172210.jpg 2025102809172212.jpg 2025102809172213.jpg 202510280919471.jpg 202510280919472.jpg 202510280917227.jpg 202510280917226.jpg 202510280917221.jpg 202510280917223.jpg 202510280917222.jpg 202510280917224.jpg 202510280917220.jpg

Nearby Streets

NameAverage PriceAverage SqftDistance
Neilsland Oval £ 122,37500.00 KM
Dormanside Place £ 000.00 KM
Hardridge Avenue £ 255,00000.00 KM
Premium Gate £ 160,00000.00 KM
Premium Crescent £ 279,50000.00 KM

Nearby Transport

NameNLCTLCDistance
Corkerhill9627CKH0.96 KM
Mosspark9632MPK1.65 KM
Priesthill And Darnley9808PTL2.03 KM
Kennishead9816KNS2.33 KM
Cardonald9624CDO2.54 KM

Nearby Listings

AddressPriceTypeScoreDistance
129 Neilsland Oval, Glasgow, G53 £ 99,995BUY5 / 100.00 KM
Neilsland Square, Glasgow, G53 £ 185,000BUY6 / 100.10 KM
Braidcraft Road, Pollok, Glasgow, G53 £ 165,000BUYUnknown0.12 KM
2 Libo Avenue, Glasgow, G53 5ED £ 150,000BUY7 / 100.14 KM
Neilsland Oval, Old Pollok, Glasgow, G53 5HB £ 180,000BUY6 / 100.19 KM