Darlington Street, Coppull, Lancashire, PR7 5AB
By Miller Homes North West
£ 326,995
Reviews
3 out of 5 stars
Miller Homes North West says ..
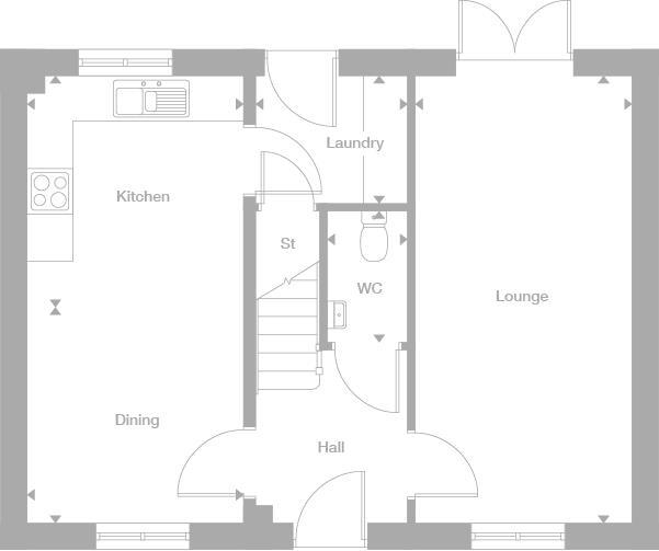
With features including FRENCH DOORS off the kitchen / diner, a SEPARATE LAUNDRY ROOM, a DOWNSTAIRS WC, a principal bedroom with EN-SUITE, a 10-YEAR NHBC WARRANTY included and the ability to PRE-RESERVE ONLINE, this fantastic 3 bedroom home at Church View, Coppull is perfect for first-time buyers...
Property Oracle says ..
This is a modern, detached property located in Coppull, Lancashire. The house appears to be in excellent condition, with a well-maintained interior and a garden. The location offers convenient access to local schools and transportation. The price seems reasonable compared to other properties in the area. The property is a good option for families or individuals looking for a modern home in a residential area.
Therefore, we give this property 7 / 10. *Disclaimer: This is our option and does constitute a recommendation or financial advice. Do your own research. *
- Price
- 7
- Condition
- 9
- Location
- 7
- Land
- 6
- Bedrooms
- 3
- Bathrooms
- 0
- Sqft (est)
- 730.00
The heatmap indicates the level of crime in the area. The color of the heatmap indicates the crime severity and recency.
Metrics Year-on-Year
- Average area value
- 445,205.00 £Decreased by 3.69 %
- Est sale value
- 470,850.00 £Increased by 20.34 %
- Average area rental value
- 1,836.00 £/moIncreased by 4.79 %
- Est letting value
- 1,460.00 £/moUnchanged by 0.00 %
- Est rental Yield
- 4.95 %Increased by 8.79 %
- Crime Rate
- 19.00 %Unchanged by 0.00 %
Agent Activity
Miller Homes North West created the listing.
Nearby Schools
| Name | Type | Ofsted | Distance |
|---|---|---|---|
| Coppull Primary School And Nursery | Community School | Good | 0.14 KM |
| Coppull Children'S Centre | Children's Centre | 0.20 KM | |
| St Oswald'S Catholic Primary School, Coppull | Voluntary Aided School | Good | 0.60 KM |
| Coppull Parish Church Of England Primary School | Voluntary Aided School | Good | 1.28 KM |
| Coppull St John'S Church Of England Voluntary Aided Primary School | Voluntary Aided School | Good | 1.44 KM |
Images
Nearby Streets
| Name | Average Price | Average Sqft | Distance |
|---|---|---|---|
| Tan Yard Close | £ 0 | 0 | 0.00 KM |
| St. Oswalds Court | £ 274,995 | 0 | 0.00 KM |
| Springfield Road | £ 185,000 | 0 | 0.00 KM |
| Meadow Way | £ 0 | 0 | 0.00 KM |
| Railway Gardens | £ 0 | 0 | 0.00 KM |
Nearby Transport
| Name | NLC | TLC | Distance |
|---|---|---|---|
| Euxton Balshaw Lane | 2080 | EBA | 4.34 KM |
| Chorley | 2745 | CRL | 5.56 KM |
| Buckshaw Parkway | 7501 | BSV | 5.76 KM |
| Adlington (Lancashire) | 2641 | ADL | 7.08 KM |
| Appley Bridge | 2396 | APB | 7.55 KM |
Nearby Listings
| Address | Price | Type | Score | Distance |
|---|---|---|---|---|
| Darlington Street, Coppull, Lancashire, PR7 5AB | £ 259,995 | BUY | 7 / 10 | 0.00 KM |
| Darlington Street, Coppull, Lancashire, PR7 5AB | £ 342,995 | BUY | 7 / 10 | 0.00 KM |
| Darlington Street, Coppull, Lancashire, PR7 5AB | £ 299,995 | BUY | 7 / 10 | 0.00 KM |
| Darlington Street, Coppull, Lancashire, PR7 5AB | £ 357,995 | BUY | 6 / 10 | 0.00 KM |
| Darlington Street, Coppull, Lancashire, PR7 5AB | £ 407,995 | BUY | Unknown | 0.00 KM |
Nearby Properties
| Address | Price | Distance |
|---|---|---|
| 13 Darlington Street | £ 170,250 | 0.02 KM |
| 1 Darlington Street | £ 93,000 | 0.02 KM |
| 6 Darlington Street | £ 92,500 | 0.02 KM |
| 4 Darlington Street | £ 87,500 | 0.02 KM |
| 10 Darlington Street | £ 92,000 | 0.02 KM |