Cartington Terrace, Heaton, Newcastle Upon Tyne
By Cloud Estates
£ 165,000
Reviews
2 out of 5 stars
Cloud Estates says ..
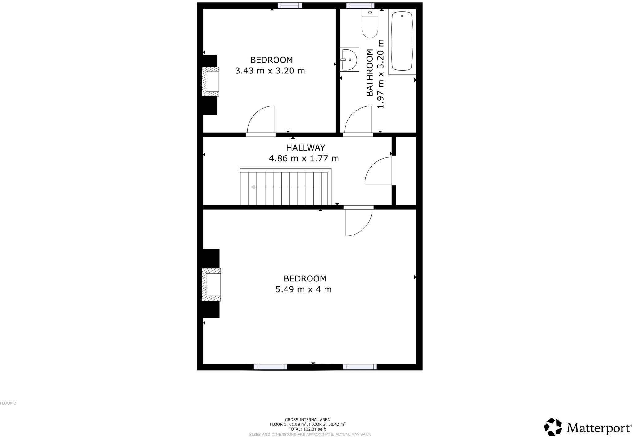
** NO ONWARD CHAIN ** EXCITING OPPORTUNITY ** HEATON ** CHECK OUT 360 DEGREES TOUR ** Cloud Estates are excited to bring to the market this two bedroom terraced house situated in the popular street of Cartington Terrace in the heart of Heaton. Are you se...
Property Oracle says ..
This is a two-bedroom terraced house in Heaton, Newcastle Upon Tyne. The property requires significant renovation but offers an opportunity to add value. The location is good, with access to local amenities and schools. The price reflects the condition of the property.
Therefore, we give this property 5 / 10. *Disclaimer: This is our option and does constitute a recommendation or financial advice. Do your own research. *
- Price
- 7
- Condition
- 3
- Location
- 7
- Land
- 4
- Bedrooms
- 2
- Bathrooms
- 1
The heatmap indicates the level of crime in the area. The color of the heatmap indicates the crime severity and recency.
Metrics Year-on-Year
- Average area value
- 297,629.00 £Increased by 0.56 %
- Average area rental value
- 1,009.00 £/moDecreased by 1.85 %
- Est rental Yield
- 4.07 %Decreased by 2.40 %
- Crime Rate
- 6.00 %Unchanged by 0.00 %
Agent Activity
Cloud Estates created the listing.
Nearby Schools
| Name | Type | Ofsted | Distance |
|---|---|---|---|
| Ravenswood Primary School | Foundation School | Good | 0.29 KM |
| South Heaton | Children's Centre Linked Site | 0.51 KM | |
| Chillingham Road Primary School | Foundation School | Good | 0.56 KM |
| St Teresa'S Catholic Primary School, Heaton | Academy Converter | 0.80 KM | |
| Sure Start Woodlands Children'S Centre | Children's Centre Linked Site | 1.29 KM |
Images
Nearby Streets
| Name | Average Price | Average Sqft | Distance |
|---|---|---|---|
| East Cheap | £ 0 | 0 | 0.00 KM |
| Addycombe Terrace | £ 0 | 0 | 0.00 KM |
| Murray Close | £ 0 | 0 | 0.00 KM |
| Fourth Avenue | £ 0 | 0 | 0.00 KM |
| Crompton Road | £ 465,000 | 0 | 0.00 KM |
Nearby Transport
| Name | NLC | TLC | Distance |
|---|---|---|---|
| Manors | 7603 | MAS | 3.61 KM |
| Heworth | 7766 | HEW | 4.73 KM |
| Newcastle | 7728 | NCL | 5.06 KM |
| Dunston | 7744 | DOT | 8.45 KM |
Nearby Listings
| Address | Price | Type | Score | Distance |
|---|---|---|---|---|
| Cartington Terrace, Heaton, Newcastle Upon Tyne | £ 165,000 | BUY | 5 / 10 | 0.00 KM |
| Cartington Terrace, Heaton | £ 300,000 | BUY | Unknown | 0.03 KM |
| Cartington Terrace, Heaton | £ 201,000 | BUY | Unknown | 0.03 KM |
| Cartington Terrace, Heaton, Newcastle Upon Tyne, NE6 | £ 250,000 | BUY | 7 / 10 | 0.04 KM |
| Tosson Terrace, Heaton, Newcastle Upon Tyne | £ 175,000 | BUY | 6 / 10 | 0.06 KM |
Nearby Properties
| Address | Price | Distance |
|---|---|---|
| 71 Cartington Terrace | £ 149,500 | 0.03 KM |
| 50 Cartington Terrace | £ 55,000 | 0.03 KM |
| 40 Cartington Terrace | £ 309,000 | 0.03 KM |
| 61 Cartington Terrace | £ 250,000 | 0.03 KM |
| 69 Cartington Terrace | £ 123,600 | 0.03 KM |