Petworth Road, Haslemere, Surrey, GU27
By Keats
£ 394,000
Reviews
3 out of 5 stars
Keats says ..
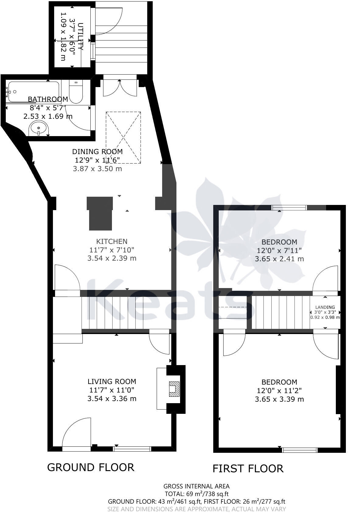
This charming two-bedroom character property combines the convenience of modern living with traditional styling, retaining many of its original features. Situated in the heart of the popular town of Haslemere, it is within walking distance of the High Street, yet within easy reach of the stunni...
Property Oracle says ..
The property is located in Haslemere, Surrey, a town known for its attractive setting and convenient access to transport links. The proximity to Haslemere train station (1.23km) provides a direct link to London and other major towns. Several schools are within a reasonable distance, including St Bartholomew’s Cofe Aided Primary School (0.98km), which received a ‘Good’ Ofsted rating. The area also benefits from local amenities, although the specific proximity of shops and other facilities to this property is not detailed. Based on the images and the surrounding properties, the location score is reasonable. The property appears to be in good condition. The provided images showcase a recently renovated interior with a modern kitchen and bathroom. The exterior also presents well, suggesting that the property has been maintained to a good standard. There is no evidence of significant repairs or renovations needed, leading to a positive condition score. The property includes a small, enclosed rear garden, as seen in the provided images. While not extensive, the garden offers some outdoor space, which is a desirable feature for many buyers. The size is not specified, but it appears to be relatively compact. The list price of £394,000 is significantly lower than the average house price in the area (£938,395). However, this discrepancy is likely due to the smaller size of the property compared to the average. The lack of square footage information for the subject property and the nearby listings prevents a precise price per square foot comparison. However, considering the property’s condition, location, and the inclusion of a garden, the list price might be considered reasonable, relative to other properties on Petworth Road, especially considering the lower prices of nearby properties such as 6a and 14b Petworth Road. Further information regarding the property’s square footage would allow for a more precise evaluation of the price.
Therefore, we give this property 6 / 10. *Disclaimer: This is our option and does constitute a recommendation or financial advice. Do your own research. *
- Price
- 7
- Condition
- 8
- Location
- 7
- Land
- 4
- Bedrooms
- 2
- Bathrooms
- 1
- Sqft (est)
- 742.71
The heatmap indicates the level of crime in the area. The color of the heatmap indicates the crime severity and recency.
Metrics Year-on-Year
- Average area value
- 1,062,273.00 £Increased by 17.03 %
- Est sale value
- 214,643.19 £Decreased by 72.18 %
- Average area rental value
- 2,072.00 £/moDecreased by 5.86 %
- Est letting value
- 0.00 £/moDecreased by 100.00 %
- Est rental Yield
- 2.34 %Decreased by 19.59 %
- Crime Rate
- 21.00 %Unchanged by 0.00 %
Agent Activity
Keats created the listing.
Nearby Schools
| Name | Type | Ofsted | Distance |
|---|---|---|---|
| St Bartholomew'S Cofe Aided Primary School | Voluntary Aided School | Good | 0.98 KM |
| Tennyson'S Sure Start Children'S Centre | Children's Centre | 1.08 KM | |
| St Ives School | Other Independent School | 1.33 KM | |
| The Royal School | Other Independent School | 2.64 KM | |
| Shottermill Infant School | Community School | Outstanding | 2.66 KM |
Images
Nearby Streets
| Name | Average Price | Average Sqft | Distance |
|---|---|---|---|
| A286 | £ 0 | 0 | 0.00 KM |
| Penfold Manor | £ 617,475 | 0 | 0.00 KM |
| George Denyer Close | £ 0 | 0 | 0.00 KM |
| Fieldway | £ 0 | 0 | 0.00 KM |
| Scotland Lane | £ 1,200,357 | 0 | 0.00 KM |
Nearby Transport
| Name | NLC | TLC | Distance |
|---|---|---|---|
| Haslemere | 5633 | HSL | 1.23 KM |
| Witley | 5640 | WTY | 8.63 KM |
Nearby Listings
| Address | Price | Type | Score | Distance |
|---|---|---|---|---|
| Petworth Road, Haslemere, Surrey, GU27 | £ 394,000 | BUY | 6 / 10 | 0.00 KM |
| Petworth Road, Haslemere, Surrey, GU27 | £ 415,000 | BUY | 7 / 10 | 0.01 KM |
| Petworth Road, Haslemere, Surrey, GU27 | £ 200,000 | BUY | 5 / 10 | 0.05 KM |
| Petworth Road, Haslemere, GU27 | £ 325,000 | BUY | 6 / 10 | 0.05 KM |
| The Old Bake House Mews, Haslemere, GU27 | £ 399,999 | BUY | 6 / 10 | 0.07 KM |
Nearby Properties
| Address | Price | Distance |
|---|---|---|
| 26 Petworth Road | £ 535,000 | 0.05 KM |
| 14a Petworth Road | £ 352,000 | 0.06 KM |
| 8a Petworth Road | £ 125,000 | 0.06 KM |
| 14c Petworth Road | £ 247,500 | 0.06 KM |
| 20 Petworth Road | £ 83,000 | 0.06 KM |