Park Row Properties says ..
ATTENTION FIRST TIME BUYERS and INVESTORS
Property Oracle says ..
This four-bedroom terraced house located on Kingsway in Goole, East Riding of Yorkshire, presents a mixed bag of features. The property boasts four bedrooms, offering ample space, and is conveniently situated close to the Goole train station as well as several schools, including Kingsway Primary, which has a ‘Good’ Ofsted rating. The proximity of these amenities represents a significant positive factor for potential buyers. The property includes a small, manageable garden and boasts a seemingly updated kitchen. However, the bathrooms appear to be in need of modernisation, and whilst habitable, some cosmetic updates would enhance the overall appeal of the house. The available photographs give a sense of the property’s layout and condition, revealing a property that is largely habitable and comfortable but with room for improvement. The listing price of £125,000 appears to fall within the typical range for similar properties in the immediate area, especially when considering the number of bedrooms. The absence of detailed information regarding plot size for comparable properties and square footage for this property, makes a comprehensive comparative price analysis challenging. Overall, this property presents an opportunity for a first-time buyer or investor seeking a relatively affordable property in a convenient location, though some renovation and modernisation may be considered by future owners.
Therefore, we give this property 5 / 10. *Disclaimer: This is our option and does constitute a recommendation or financial advice. Do your own research. *
- Price
- 7
- Condition
- 6
- Location
- 6
- Land
- 4
- Bedrooms
- 4
- Bathrooms
- 1
- Sqft (est)
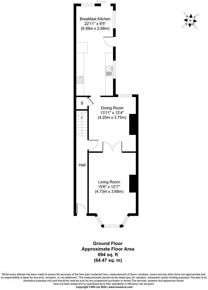
- 694.00
The heatmap indicates the level of crime in the area. The color of the heatmap indicates the crime severity and recency.
Metrics Year-on-Year
- Average area value
- 181,556.00 £Increased by 4.49 %
- Est sale value
- 117,980.00 £Decreased by 14.14 %
- Average area rental value
- 683.00 £/moIncreased by 6.72 %
- Est letting value
- 0.00 £/mo
- Est rental Yield
- 4.51 %Increased by 2.04 %
- Crime Rate
- 16.00 %Unchanged by 0.00 %
Agent Activity
Park Row Properties created the listing.
Nearby Schools
| Name | Type | Ofsted | Distance |
|---|---|---|---|
| Sure Start Children'S Centre Goole (Kingsway) | Children's Centre | 0.32 KM | |
| Kingsway Primary School | Community School | Good | 0.58 KM |
| Riverside Special School | Community Special School | Good | 0.60 KM |
| St Joseph'S Catholic Primary School | Academy Converter | 0.80 KM | |
| Sure Start Children'S Centre Goole (Marshlands Old Goole) | Children's Centre | 1.68 KM |
Images
Nearby Streets
| Name | Average Price | Average Sqft | Distance |
|---|---|---|---|
| Sutton Street | £ 0 | 0 | 0.00 KM |
| Mendip Avenue | £ 125,000 | 0 | 0.00 KM |
| Windermere Drive | £ 0 | 0 | 0.00 KM |
| East Gate | £ 0 | 0 | 0.00 KM |
| Wesley Square | £ 0 | 0 | 0.00 KM |
Nearby Transport
| Name | NLC | TLC | Distance |
|---|---|---|---|
| Goole | 8025 | GOO | 1.03 KM |
| Saltmarshe | 8033 | SAM | 6.38 KM |
| Howden | 8071 | HOW | 6.52 KM |
| Wressle | 8123 | WRS | 9.90 KM |
Nearby Listings
| Address | Price | Type | Score | Distance |
|---|---|---|---|---|
| Kingsway, Goole | £ 125,000 | BUY | 5 / 10 | 0.00 KM |
| Kingsway, Goole | £ 120,000 | BUY | 6 / 10 | 0.07 KM |
| Queensway, Goole, DN14 | £ 95,000 | BUY | 6 / 10 | 0.09 KM |
| Marshfield Road, Goole, East Yorkshire, DN14 | £ 80,000 | BUY | 6 / 10 | 0.10 KM |
| Marshfield Road, Goole, DN14 | £ 95,000 | BUY | Unknown | 0.10 KM |
Nearby Properties
| Address | Price | Distance |
|---|---|---|
| 33 Kingsway | £ 95,000 | 0.09 KM |
| 78 Kingsway | £ 105,000 | 0.09 KM |
| 55 Kingsway | £ 95,000 | 0.09 KM |
| 51 Kingsway | £ 131,000 | 0.09 KM |
| 37 Kingsway | £ 140,000 | 0.09 KM |