Seaman Road, Liverpool, Merseyside, L15
By Venmore
£ 130,000
Reviews
3 out of 5 stars
Venmore says ..
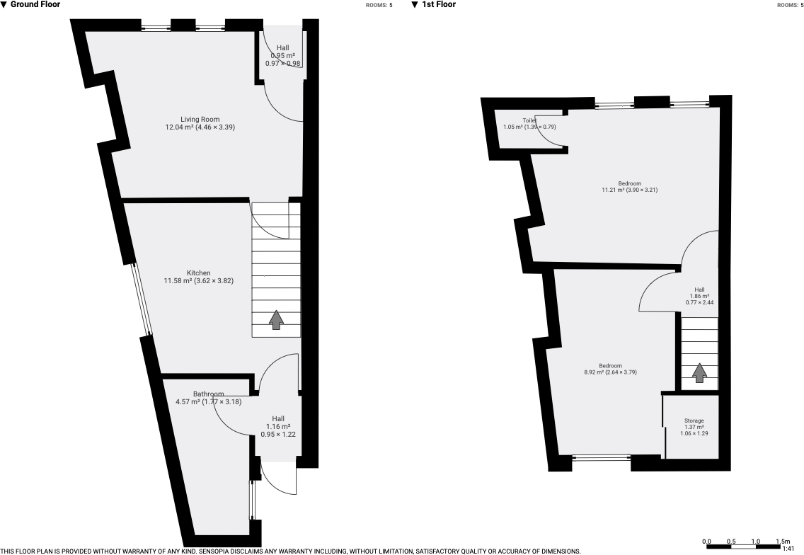
Charming 2-Bed End-Terrace – Ideal for First-Time Buyers
Property Oracle says ..
Therefore, we give this property 6 / 10. *Disclaimer: This is our option and does constitute a recommendation or financial advice. Do your own research. *
- Price
- 8
- Condition
- 7
- Location
- 7
- Land
- 3
- Bedrooms
- 2
- Bathrooms
- 0
The heatmap indicates the level of crime in the area. The color of the heatmap indicates the crime severity and recency.
Metrics Year-on-Year
- Average area value
- 189,000.00 £Increased by 41.69 %
- Average area rental value
- 477.00 £/moDecreased by 41.33 %
- Est rental Yield
- 3.03 %Decreased by 58.55 %
- Crime Rate
- 10.00 %Unchanged by 0.00 %
from 133,389.00 £
from 813.00 £/mo
from 7.31 %
from 10.00 %
Agent Activity
Venmore created the listing.
Nearby Schools
| Name | Type | Ofsted | Distance |
|---|---|---|---|
| St Clare'S Catholic Primary School | Voluntary Aided School | Good | 0.12 KM |
| Lawrence Community Primary School | Community School | Requires improvement | 0.33 KM |
| Wavertree Childwall & Woolton Children'S Centre | Children's Centre | 0.80 KM | |
| Heygreen Primary School | Academy Sponsor Led | Good | 0.88 KM |
| St Hugh'S Catholic Primary School | Voluntary Aided School | Good | 0.95 KM |
Images
Nearby Streets
| Name | Average Price | Average Sqft | Distance |
|---|---|---|---|
| Garmoyle Road | £ 0 | 0 | 0.00 KM |
| Ormsby Street | £ 0 | 0 | 0.00 KM |
| Liberty Street | £ 0 | 0 | 0.00 KM |
| Lawrence Road | £ 225,000 | 0 | 0.00 KM |
| Wauchope Street | £ 0 | 0 | 0.00 KM |
Nearby Transport
| Name | NLC | TLC | Distance |
|---|---|---|---|
| Wavertree Technology Park | 8589 | WAV | 1.53 KM |
| Edge Hill | 2169 | EDG | 1.79 KM |
| Mossley Hill | 2171 | MSH | 2.57 KM |
| St Michaels | 2248 | STM | 3.13 KM |
| Aigburth | 2255 | AIG | 3.43 KM |
Nearby Listings
| Address | Price | Type | Score | Distance |
|---|---|---|---|---|
| Seaman Road, Liverpool, Merseyside, L15 | £ 130,000 | BUY | 6 / 10 | 0.00 KM |
| Jamieson Road, Liverpool, L15 | £ 160,000 | BUY | 6 / 10 | 0.09 KM |
| Gordon Street, Wavertree, Liverpool, Merseyside, L15 | £ 150,000 | BUY | 6 / 10 | 0.09 KM |
| Wellington Avenue, Wavertree, Liverpool, L15 | £ 180,000 | BUY | 7 / 10 | 0.12 KM |
| 120 LAWRENCE ROAD, LIVERPOOL | £ 150,000 | BUY | 5 / 10 | 0.12 KM |
Nearby Properties
| Address | Price | Distance |
|---|---|---|
| 4 Seaman Road | £ 107,000 | 0.01 KM |
| 10 Seaman Road | £ 92,000 | 0.01 KM |
| 9 Seaman Road | £ 119,000 | 0.01 KM |
| 13 Seaman Road | £ 102,500 | 0.01 KM |
| 1 Seaman Road | £ 190,000 | 0.01 KM |