Rhiwbina Hill, Cardiff
KE

Rhiwbina Hill, Cardiff

By Key Executive Sales

£ 1,100,000

Reviews

3 out of 5 stars

Key Executive Sales says ..

Introducing Ty Mynydd House — an exceptional detached residence in the highly sought-after suburb of Rhiwbina, Cardiff. Designed with architectural flair and built to an impeccable standard, this striking home perfectly balances contemporary luxury with generous family living. Every elem...

Property Oracle says ..

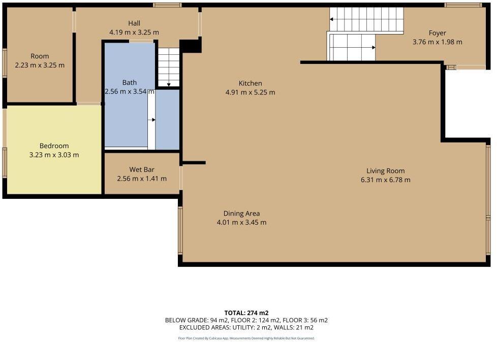
This detached property on Rhiwbina Hill, Cardiff, presents a modern living space with six bedrooms and four bathrooms. The house is situated in a sought-after residential area known for its good schools and local amenities. The interior is well-maintained with modern fixtures, and the property benefits from a garden with a patio. The property includes a modern kitchen, multiple bathrooms, and a large living space. The top floor includes a large studio space with great natural light. The property is well-located, being close to schools and transport links. The asking price is on the higher end for the area, reflecting the size and features of the property.

Therefore, we give this property 7 / 10. *Disclaimer: This is our option and does constitute a recommendation or financial advice. Do your own research. *

Price
6
Condition
8
Location
8
Land
7
Bedrooms
6
Bathrooms
4

The heatmap indicates the level of crime in the area. The color of the heatmap indicates the crime severity and recency.

Metrics Year-on-Year

Average area value
467,143.00 £
Increased by 10.55 %
from 422,572.00 £
Average area rental value
2,500.00 £/mo
Increased by 113.31 %
from 1,172.00 £/mo
Est rental Yield
6.42 %
Increased by 92.79 %
from 3.33 %
Crime Rate
4.00 %
Unchanged by 0.00 %
from 4.00 %

Agent Activity

  • Key Executive Sales created the listing.

Nearby Schools

NameTypeOfstedDistance
Greenhill Special SchoolWelsh Establishment0.73 KM
Rhiwbeina Primary SchoolWelsh Establishment1.34 KM
Coryton Primary SchoolWelsh Establishment1.59 KM
Llanishen Fach Primary SchoolWelsh Establishment1.91 KM
Whitchurch High SchoolWelsh Establishment2.02 KM

Images

46-A7408271.jpg 38-A7408198.jpg 33-A7408180.jpg 37-A7408195.jpg 54-A7408153.jpg 48-DJI_20251001161006_0245_D.jpg 32-A7408177.jpg 60-A7408174.jpg 52-A7408147.jpg 53-A7408150.jpg 55-A7408159.jpg 57-A7408165.jpg 09-A7408123.jpg 11-A7408132.jpg 07-A7408117.jpg 12-A7408135.jpg 56-A7408162.jpg 43-A7408213.jpg 22-A7408240.jpg 41-A7408207.jpg 30-A7408090.jpg 31-A7408093.jpg 62-A7408105_vertualy staged.jpg 01-A7408096.jpg 13-A7408138.jpg 14-A7408141.jpg 29-A7408261.jpg 28-A7408258.jpg 39-A7408201.jpg 40-A7408204.jpg 15-A7408216.jpg 16-A7408219.jpg 17-A7408222.jpg 18-A7408225.jpg 19-A7408228.jpg 02-A7408102.jpg 03-A7408105.jpg 06-A7408114.jpg 23-A7408243.jpg 24-A7408246.jpg 25-A7408249.jpg 26-A7408252.jpg 27-A7408255.jpg

Nearby Streets

NameAverage PriceAverage SqftDistance
Lisnagarvey Court £ 155,00000.00 KM
Lon Ysgybor £ 000.00 KM
Maes yr Haf £ 694,98800.00 KM
Clos y Craig £ 000.00 KM
Northern Avenue £ 358,33300.00 KM

Nearby Transport

NameNLCTLCDistance
Whitchurch (Cardiff)3896WHT1.21 KM
Coryton3905COY1.40 KM
Rhiwbina3906RHI1.72 KM
Llandaf3844LLN2.58 KM
Birchgrove3907BCG2.84 KM

Nearby Listings

AddressPriceTypeScoreDistance
Rhiwbina Hill, Cardiff £ 1,100,000BUY7 / 100.00 KM
Rhiwbina Hill, Rhiwbina, Cardiff £ 1,100,000BUY8 / 100.06 KM
Rhiwbina Hill, Cardiff £ 825,000BUY6 / 100.06 KM
Troed-Y-Rhiw, Cardiff £ 550,000BUY6 / 100.07 KM
Brooklyn Close, Cardiff. CF14 £ 635,000BUY7 / 100.23 KM

Nearby Properties

AddressPriceDistance
66 Rhiwbina Hill £ 400,0000.02 KM
Nestleton £ 538,0000.02 KM
Hollybanks £ 675,0000.02 KM
68 Rhiwbina Hill £ 455,0000.04 KM
5 Llwyn Onn £ 195,0000.12 KM