BR
Beehive Road, Binfield, Bracknell, Berkshire, RG12
By Bridges Estate Agents
£ 390,000
Reviews
3 out of 5 stars
Bridges Estate Agents says ..
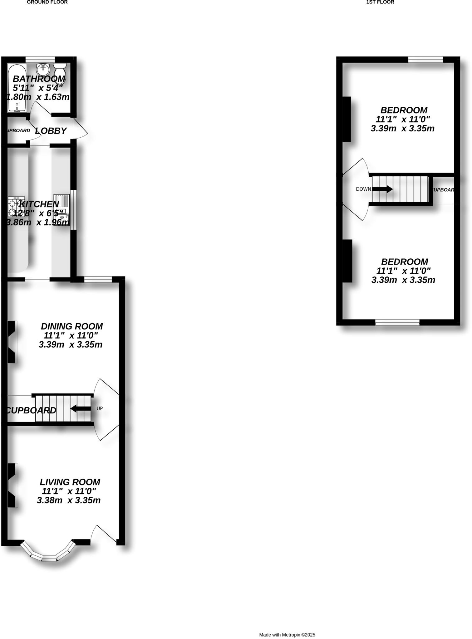
Located tucked away in the desirable area of Binfield is this two double bedroom character cottage with a modern twist. Ideally positioned with easy access to Pope's Meadow Country Park, transport and travel links including, Twyford Elizabeth/Paddington lines, Bracknell Station to Waterloo and A3...
Property Oracle says ..
Therefore, we give this property 6 / 10. *Disclaimer: This is our option and does constitute a recommendation or financial advice. Do your own research. *
- Price
- 6
- Condition
- 6
- Location
- 7
- Land
- 7
- Bedrooms
- 2
- Bathrooms
- 1
- Sqft (est)
- 602.56
The heatmap indicates the level of crime in the area. The color of the heatmap indicates the crime severity and recency.
Metrics Year-on-Year
- Average area value
- 561,863.00 £Decreased by 2.75 %
- Est sale value
- 406,125.44 £Increased by 15.21 %
- Average area rental value
- 3,222.00 £/moIncreased by 22.09 %
- Est letting value
- 1,807.68 £/moIncreased by 50.00 %
- Est rental Yield
- 6.88 %Increased by 25.55 %
- Crime Rate
- 3.00 %Unchanged by 0.00 %
from 577,775.00 £
from 352,497.60 £
from 2,639.00 £/mo
from 1,205.12 £/mo
from 5.48 %
from 3.00 %
Agent Activity
Bridges Estate Agents created the listing.
Nearby Schools
| Name | Type | Ofsted | Distance |
|---|---|---|---|
| Newbold School | Other Independent School | Good | 0.80 KM |
| King'S Academy Oakwood | Free Schools | 1.06 KM | |
| King'S Academy Binfield | Free Schools | 1.21 KM | |
| Cressex Lodge School | Other Independent Special School | Good | 1.38 KM |
| Binfield Church Of England Primary School | Voluntary Aided School | Good | 1.66 KM |
Images
Nearby Streets
| Name | Average Price | Average Sqft | Distance |
|---|---|---|---|
| Kings Quarter Queens Quarter | £ 0 | 0 | 0.00 KM |
| Queens Quarter | £ 303,000 | 0 | 0.00 KM |
| Harrier Way cycle path (north) | £ 430,000 | 0 | 0.00 KM |
| Duncan Road | £ 330,000 | 0 | 0.00 KM |
| A329(M) | £ 0 | 0 | 0.00 KM |
Nearby Transport
| Name | NLC | TLC | Distance |
|---|---|---|---|
| Bracknell | 5693 | BCE | 3.77 KM |
| Wokingham | 5696 | WKM | 6.32 KM |
| Crowthorne | 5628 | CRN | 6.65 KM |
| Martins Heron | 5692 | MAO | 6.85 KM |
| Sandhurst (Berks) | 5646 | SND | 8.00 KM |
Nearby Listings
| Address | Price | Type | Score | Distance |
|---|---|---|---|---|
| Beehive Road, Binfield, Bracknell, Berkshire, RG12 | £ 390,000 | BUY | 6 / 10 | 0.00 KM |
| Beehive Road, Binfield, Bracknell, Berkshire, RG12 | £ 595,000 | BUY | 7 / 10 | 0.09 KM |
| Beehive Road, BRACKNELL | £ 1,400,000 | BUY | 5 / 10 | 0.09 KM |
| Beehive Road, BRACKNELL | £ 1,300,000 | BUY | 7 / 10 | 0.09 KM |
| Pocket Close, Binfield, Bracknell, RG12 | £ 700,000 | BUY | 7 / 10 | 0.11 KM |
Nearby Properties
| Address | Price | Distance |
|---|---|---|
| Three Bees | £ 475,000 | 0.08 KM |
| Redlands | £ 342,000 | 0.09 KM |
| Keildon | £ 340,000 | 0.09 KM |
| Silver Birches | £ 725,000 | 0.09 KM |
| 5 Pocket Close | £ 651,000 | 0.10 KM |