163 Ashbourne Road, Derby, DE22 3AJ
By Bond Wolfe
£ 75,000
Reviews
2 out of 5 stars
Bond Wolfe says ..
For Sale By Public Auction 10 December 2025 A vacant freehold mid terraced property
Property Oracle says ..
This is a two-bedroom terraced house located on Ashbourne Road in Derby. The property requires renovation, particularly in the kitchen and bathroom. The garden also needs attention. The property is located close to local schools and transport links. The asking price of £75,000 appears to be good value when compared to the average price per square foot in the area, likely reflecting the condition of the property.
Therefore, we give this property 5 / 10. *Disclaimer: This is our option and does constitute a recommendation or financial advice. Do your own research. *
- Price
- 9
- Condition
- 4
- Location
- 6
- Land
- 3
- Bedrooms
- 2
- Bathrooms
- 0
- Sqft (est)
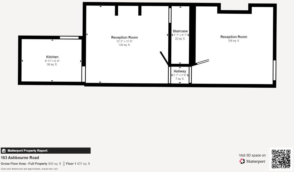
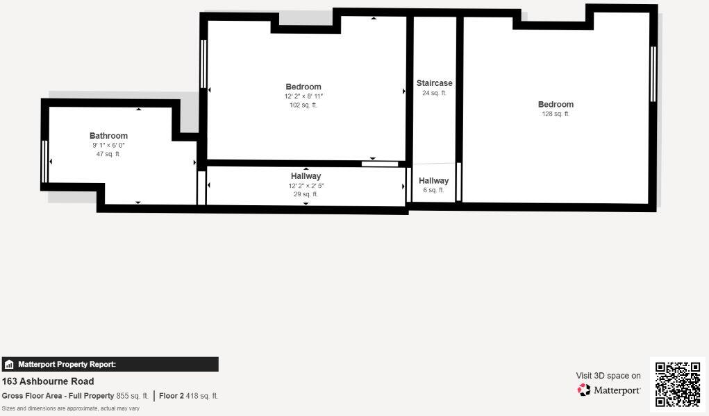
- 353.00
The heatmap indicates the level of crime in the area. The color of the heatmap indicates the crime severity and recency.
Metrics Year-on-Year
- Average area value
- 200,000.00 £Increased by 1.02 %
- Est sale value
- 94,251.00 £Decreased by 5.32 %
- Average area rental value
- 674.00 £/moDecreased by 6.91 %
- Est letting value
- 0.00 £/moDecreased by 100.00 %
- Est rental Yield
- 4.04 %Decreased by 7.97 %
- Crime Rate
- 6.00 %Unchanged by 0.00 %
Agent Activity
Bond Wolfe created the listing.
Nearby Schools
| Name | Type | Ofsted | Distance |
|---|---|---|---|
| Royal School For The Deaf Derby | Non-maintained Special School | Good | 0.15 KM |
| Ashgate Primary School | Community School | Good | 0.54 KM |
| Ashgate Nursery School | Local Authority Nursery School | Good | 0.77 KM |
| Jasmine Hall School | Other Independent Special School | 0.79 KM | |
| Newton'S Walk | Pupil Referral Unit | Good | 1.07 KM |
Images
Nearby Streets
| Name | Average Price | Average Sqft | Distance |
|---|---|---|---|
| Noel Street | £ 0 | 0 | 0.00 KM |
| Bright Street | £ 190,000 | 0 | 0.00 KM |
| Stepping Close | £ 0 | 0 | 0.00 KM |
| Markeaton Brook Walk | £ 0 | 0 | 0.00 KM |
| Thurcroft Close | £ 0 | 0 | 0.00 KM |
Nearby Transport
| Name | NLC | TLC | Distance |
|---|---|---|---|
| Derby | 1823 | DBY | 4.26 KM |
| Peartree | 1687 | PEA | 4.54 KM |
| Duffield | 1691 | DFI | 6.94 KM |
Nearby Listings
| Address | Price | Type | Score | Distance |
|---|---|---|---|---|
| 163 Ashbourne Road, Derby, DE22 3AJ | £ 75,000 | BUY | 5 / 10 | 0.00 KM |
| Land lying on the south west side of Ashbourne Road, Derby, Derbyshire, DE22 3AJ | £ 38,000 | BUY | 5 / 10 | 0.02 KM |
| Windmill Hill Lane, Derby, Derbyshire | £ 170,000 | BUY | 6 / 10 | 0.03 KM |
| Windmill Hill Lane, Derby | £ 160,000 | BUY | 6 / 10 | 0.03 KM |
| Windmill Hill Lane, Derby | £ 140,000 | BUY | 6 / 10 | 0.05 KM |
Nearby Properties
| Address | Price | Distance |
|---|---|---|
| 17 Windmill Hill Lane | £ 182,000 | 0.05 KM |
| 7 Windmill Hill Lane | £ 120,000 | 0.05 KM |
| 16 Windmill Hill Lane | £ 213,500 | 0.05 KM |
| 8 Windmill Hill Lane | £ 90,000 | 0.05 KM |
| 2 Windmill Hill Lane | £ 105,000 | 0.05 KM |