Harbour Reach, Vulcan Close, CT5
By Miles & Barr
£ 450,000
Reviews
3 out of 5 stars
Miles & Barr says ..
The Beckett Harbour Reach
Property Oracle says ..
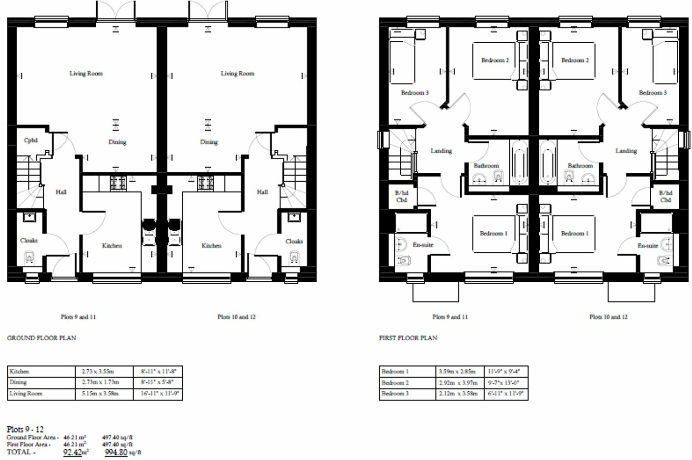
This newly built three-bedroom semi-detached property in Seasalter, near Whitstable, presents a desirable offering. The modern design and high-quality finishings are evident in the images provided; modern kitchen, bathrooms, and overall aesthetic all contribute to a feeling of quality. The property benefits from a convenient location close to good primary schools, including Joy Lane Primary Foundation School, which is rated ‘Good’ by Ofsted. The property’s proximity to Whitstable offers easy access to the town’s amenities and the coast, making it an attractive option for families and those seeking a seaside lifestyle. However, the limited plot size may be a drawback for buyers looking for larger gardens. The pricing of £450,000 appears relatively competitive considering nearby listings, but without definitive square footage details for comparable properties, an exact price-per-square-foot analysis cannot be conducted. Furthermore, access to transport is available with Whitstable train station at 1.69KM distance. The lack of precise plot size information is a key missing element to make a more complete analysis.
Therefore, we give this property 6 / 10. *Disclaimer: This is our option and does constitute a recommendation or financial advice. Do your own research. *
- Price
- 7
- Condition
- 9
- Location
- 7
- Land
- 4
- Bedrooms
- 3
- Bathrooms
- 2
- Sqft (est)
- 994.80
The heatmap indicates the level of crime in the area. The color of the heatmap indicates the crime severity and recency.
Metrics Year-on-Year
- Average area value
- 970,000.00 £Increased by 100.79 %
- Est sale value
- 904,273.20 £Increased by 168.14 %
- Average area rental value
- 1,600.00 £/moDecreased by 26.03 %
- Est letting value
- 994.80 £/moUnchanged by 0.00 %
- Est rental Yield
- 1.98 %Decreased by 63.13 %
- Crime Rate
- 10.00 %Unchanged by 0.00 %
Agent Activity
Miles & Barr created the listing.
Nearby Schools
| Name | Type | Ofsted | Distance |
|---|---|---|---|
| Joy Lane Children'S Centre | Children's Centre | 0.40 KM | |
| Joy Lane Primary Foundation School | Foundation School | Good | 0.47 KM |
| Whitstable Junior School | Foundation School | Good | 0.88 KM |
| St Alphege Church Of England Infant School | Voluntary Controlled School | Good | 0.89 KM |
| Whitstable And Seasalter Endowed Church Of England Junior School | Voluntary Aided School | Outstanding | 1.15 KM |
Images
Nearby Streets
| Name | Average Price | Average Sqft | Distance |
|---|---|---|---|
| Tollgate Close | £ 0 | 0 | 0.00 KM |
| Alexandra Road (CW54A) | £ 837,500 | 0 | 0.00 KM |
| Millers Court | £ 0 | 0 | 0.00 KM |
| Orchard Grove | £ 550,000 | 0 | 0.00 KM |
| Portway | £ 600,000 | 0 | 0.00 KM |
Nearby Transport
| Name | NLC | TLC | Distance |
|---|---|---|---|
| Whitstable | 5196 | WHI | 1.69 KM |
| Chestfield And Swalecliffe | 5200 | CSW | 5.28 KM |
| Canterbury West | 5007 | CBW | 9.45 KM |
Nearby Listings
| Address | Price | Type | Score | Distance |
|---|---|---|---|---|
| Vulcan Close, Whitstable | £ 350,000 | BUY | 7 / 10 | 0.05 KM |
| Vulcan Close,, Whitstable, Kent, CT5 | £ 425,000 | BUY | Unknown | 0.07 KM |
| Vulcan Close,, Whitstable, Kent, CT5 | £ 450,000 | BUY | 7 / 10 | 0.07 KM |
| Vulcan Close,, Whitstable, Kent, CT5 | £ 425,000 | BUY | 8 / 10 | 0.07 KM |
| Vulcan Close,, Whitstable, Kent, CT5 | £ 600,000 | BUY | 8 / 10 | 0.07 KM |
Nearby Properties
| Address | Price | Distance |
|---|---|---|
| 4 Cages Close | £ 359,950 | 0.05 KM |
| 17 Cages Close | £ 165,000 | 0.06 KM |
| 2 Cages Close | £ 158,000 | 0.06 KM |
| 11 Cages Close | £ 299,995 | 0.06 KM |
| 3 Borstal Hill | £ 607,500 | 0.08 KM |