Conrad Close, Liden
By Ridgeway Estate Agents
£ 249,950
Reviews
3 out of 5 stars
Ridgeway Estate Agents says ..
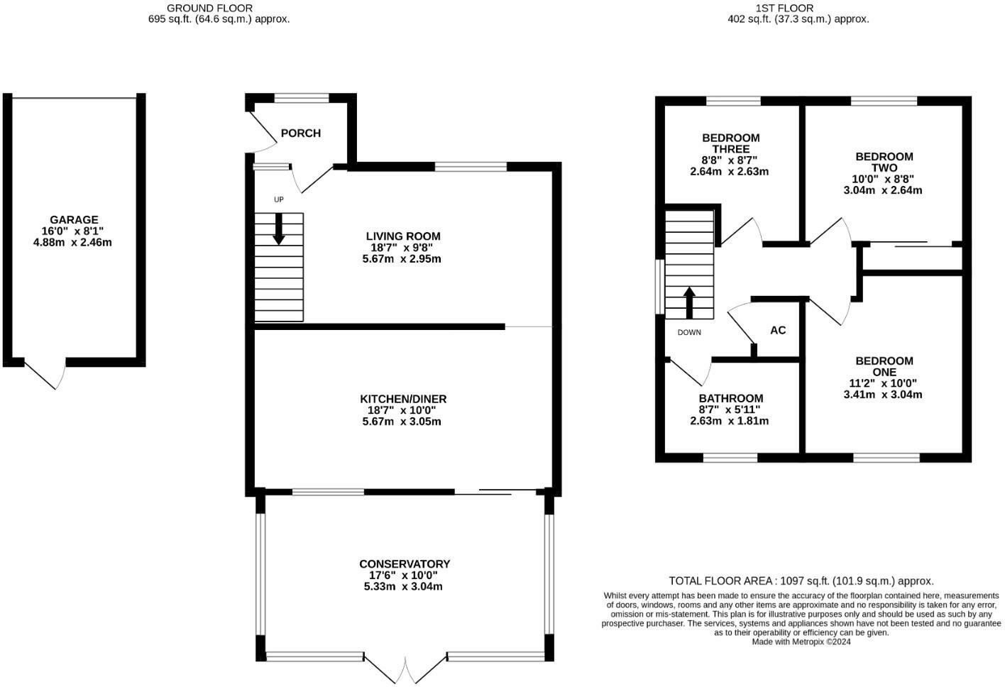
Ridgeway are delighted to offer the market a well positioned Three Bedroom Family Home that benefits from being sold with No Onward Chain and is situated within the much popular area of Liden. The accommodation comprises; Entrance Porch, Living Room, Modern Kitchen/Dining Room with Range Cooker, ...
Property Oracle says ..
This three-bedroom, end-of-terrace house in Liden, Swindon, presents a mixed bag. The property is located in a generally desirable residential area close to local schools like Liden Academy and The Chalet School (Ofsted reports needed for a proper assessment). Access to major roads such as the A419 and M4 is advantageous. The property’s internal condition displays some inconsistencies. The kitchen and bathroom appear well maintained and modern, while other rooms, particularly bedrooms, show evidence of ongoing renovation or refurbishment work, such as exposed sub-flooring. The property benefits from a relatively small garden and a detached garage, which may appeal to some but is nothing particularly exceptional in the area. The listing price, while slightly above some properties on Conrad Close, does not seem excessively high considering recent sales on nearby streets. Overall, this property requires careful consideration: its potential is good given the location and nearby amenities, but the current state requires a degree of additional investment before it reaches optimal condition.
Therefore, we give this property 6 / 10. *Disclaimer: This is our option and does constitute a recommendation or financial advice. Do your own research. *
- Price
- 7
- Condition
- 6
- Location
- 7
- Land
- 4
- Bedrooms
- 3
- Bathrooms
- 1
- Sqft (est)
- 1,097.00
The heatmap indicates the level of crime in the area. The color of the heatmap indicates the crime severity and recency.
Metrics Year-on-Year
- Average area value
- 481,967.00 £Increased by 28.07 %
- Est sale value
- 438,800.00 £Decreased by 15.97 %
- Average area rental value
- 1,254.00 £/moIncreased by 10.97 %
- Est letting value
- 1,097.00 £/moUnchanged by 0.00 %
- Est rental Yield
- 3.12 %Decreased by 13.33 %
- Crime Rate
- 10.00 %Unchanged by 0.00 %
Agent Activity
Ridgeway Estate Agents created the listing.
Nearby Schools
| Name | Type | Ofsted | Distance |
|---|---|---|---|
| The Chalet School | Academy Special Sponsor Led | 0.59 KM | |
| Liden Academy | Academy Converter | 0.59 KM | |
| Eldene Nursery And Primary School | Community School | Requires improvement | 0.75 KM |
| The Dorcan Academy | Academy Converter | Requires improvement | 0.90 KM |
| Covingham Park Primary School | Community School | Good | 1.58 KM |
Images
Nearby Streets
| Name | Average Price | Average Sqft | Distance |
|---|---|---|---|
| Grundys | £ 100,000 | 0 | 0.00 KM |
| Liden Drive | £ 303,333 | 0 | 0.00 KM |
| Sutton Road | £ 270,000 | 0 | 0.00 KM |
| Collingsmead | £ 240,000 | 0 | 0.00 KM |
| Wick Lane | £ 250,000 | 0 | 0.00 KM |
Nearby Transport
| Name | NLC | TLC | Distance |
|---|---|---|---|
| Swindon (Wilts) | 3333 | SWI | 6.28 KM |
Nearby Listings
| Address | Price | Type | Score | Distance |
|---|---|---|---|---|
| Conrad Close, Liden | £ 249,950 | BUY | 6 / 10 | 0.00 KM |
| Conrad Close, Liden, Swindon | £ 270,000 | BUY | 7 / 10 | 0.04 KM |
| Conrad Close, Swindon, Wiltshire, SN3 | £ 365,000 | BUY | 7 / 10 | 0.09 KM |
| Conan Doyle Walk, Liden, Swindon | £ 240,000 | BUY | 7 / 10 | 0.09 KM |
| Wainwright Close, Swindon | £ 280,000 | BUY | 7 / 10 | 0.13 KM |
Nearby Properties
| Address | Price | Distance |
|---|---|---|
| 9 Conrad Close | £ 130,000 | 0.02 KM |
| 21 Conrad Close | £ 215,000 | 0.02 KM |
| 16 Conrad Close | £ 150,000 | 0.02 KM |
| 11 Conrad Close | £ 170,000 | 0.02 KM |
| 6 Conrad Close | £ 310,000 | 0.02 KM |